Praha 1, zařízený mezonetový byt k pronájmu, 3+1, 120 m2, ul. Havelská, výhled na Hradčany
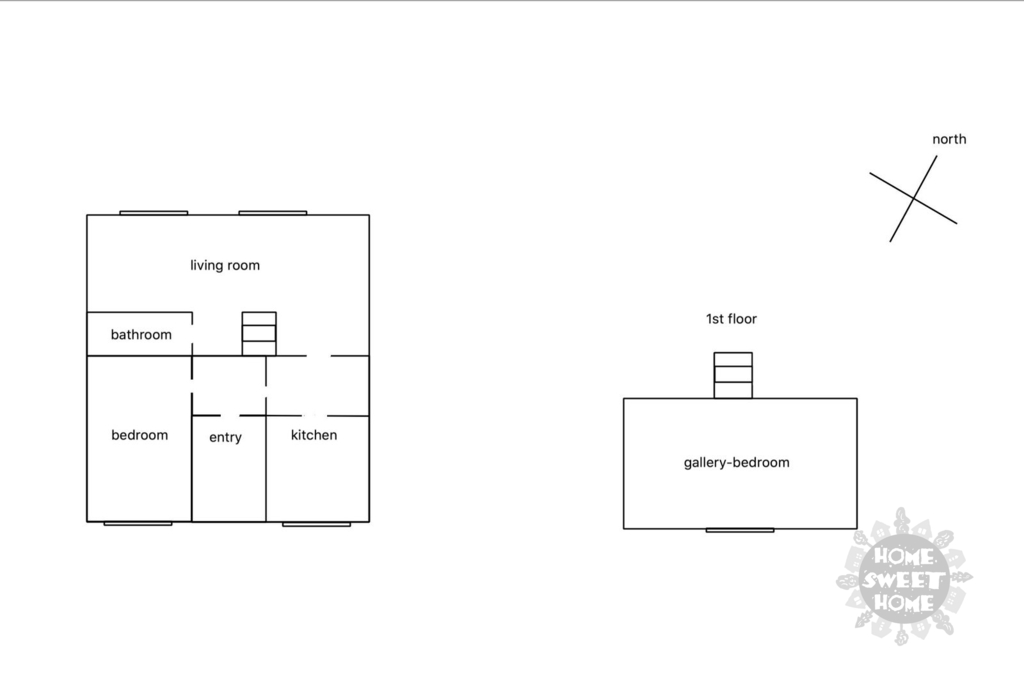
Zařízený mezonetový byt s mnoha původními prvky v atraktivní lokalitě Starého Města s okouzlujícím výhledem až na Pražský hrad. Celková výměra bytu je 120 m2. Byt se nachází v pátém patře historického domu bez výtahu. Byt 3+1 je je zcela zařízený. Byt je složen z jednoho menšího pokoje, jednoho velkého pokoje s manželskou postelí v otevřeném podkrovním patře, kuchyně a dvou koupelen a je zcela zařízený včetně vestavěné skříně, s dřevěnou podlahou a dlažbou. Kuchyň je vybavena elektrickými spotřebiči. Součástí bytu je pokoj pro hosty s vlastní koupelnou se sprchovým koutem. V jedné ze dvou koupelen je masážní vana. Dům je zabezpečen a napojen na bezpečnostní pult. Ideální umístění v centru Prahy, stanice metra Můstek je vzdálena 2. minuty chůze od domu.
Pouze na dlouhodobý pronájem (min. doba pronájmu je jeden rok). Vratná kauce majiteli je v hodnotě 40.000 Kč. Byt je ihned dostupný k pronájmu.
Uživatel serveru RealityMIX.cz (dále jen „Server“) dostupného na internetové adrese (URL) https://www.realitymix.cz, který provozuje společnost DALTEN media s.r.o., se sídlem Na Harfě 916/9a, Praha 9, 190 00, IČO: 271 35 306 (dále jen „Správce“) jako provozovateli tohoto Serveru uděluje svůj výslovný souhlas v souladu s ustanovením § 5 zákona č. 101/2000 Sb. O ochraně osobních údajů a o změně některých zákonů, v platném znění (dále jen „zákon o ochraně osobních údajů“), se zpracováním uživatelem poskytnutých osobních údajů a dalších dat.
Uživatel poskytuje Správci osobní údaje v rozsahu: jméno, příjmení, e-mailová adresa, telefonický kontakt a další data, a to z důvodu projeveného zájmu o nemovitost, kde prostřednictvím služby Serveru Správce osloví Uživatel inzerenta uvedeného v detailu
nemovitosti - Home Sweet Home (IČ 24141496) se zájmem o jeho služby. Tato společnost je součástí seskupení/sítě/franšízového modelu realitních kanceláří, jejich seznam můžete zobrazit kliknutím na tento odkaz.
Home sweet home Plzeň (IČ 63916258) , Home Sweet Home (IČ 24141496)
Uživatel tyto osobní údaje poskytuje dobrovolně a bere na vědomí, že součástí služeb Správce, které Správce Uživateli poskytuje, je vyhledání všech Uživateli vyhovujících (dle parametrů - cena, typ nemovitosti, lokalita atd.) nemovitostí. Správce za tímto účelem provozuje aplikace Hlídací pes a newsletter. Tyto služby je možné z každého zaslaného emailu odhlásit. Souhlas se zpracováním osobních údajů Uživatel poskytuje Správci na dobu neurčitou s tím, že svůj udělený souhlas může Uživatel kdykoliv na drese správce info@realitymix.cz odvolat. Správce garantuje Uživateli i další práva uvedené v ustanovení §11 a §21 zákoba č. 101/200 Sb. Ve znění pozdějších předpisů.
Více informací o zpracování údajů získáte zde (realitymix.cz/zasady-ochrany-osobnich-udaju)