Bytová jednotka se nachází na adrese Pujmanové 879/31, Praha – Pankrác. 100 metrů od domu Centrální park Pankrác, přes který je možné pokračovat na Kavčí Hory, další oblíbené místo k procházkám! 300 metrů od domu Arkády Pankrác (nákupní centrum) nebo 500 metrů od domu vstup do stanice metra C Pankrác!
Byt prošel úplnou rekonstrukcí, která byla dokončena v roce 2022. Byt je vybavený moderní kuchyňskou linkou (pračka – umístěná v kuchyňské lince – je kombinovaná se sušičkou; v kuchyňské lince se též nachází myčka nádobí), dále vlastník byt dovybaví moderní volně stojící chladničkou. V předsíni se nachází velká vestavěná skříň, okna je možné zastínit žaluziemi, byt je kompletně vybavený moderním LED osvětlením. Přímo u vstupu do bytu se nachází praktická komora (možnost uložení úklidových prostředků apod.). Byt je určen k dlouhodobému nájmu.
Nájemné činí 19.700 Kč / měsíc. Služby v domě 3.200 Kč / měsíc + spotřeba elektřiny a plynu, které si nájemce hradí samostatně (lze očekávat měsíční náklad v součtu okolo 1.500 Kč za obě energie). K dispozici dva poskytovatelé kabelové televize a internetu. Jistota (kauce) 30.000 Kč, odměna realitní kanceláře 19.700 Kč.
Cena:
19 700 Kč / (za měsíc)
Datum k nastěhování:
14.02.2026
Dispozice/podlahová plocha:
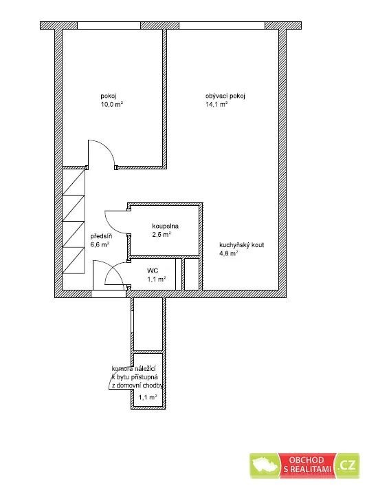
2+kk/39 m²
Číslo zakázky:
REALITYMIX-974654
Podrobné informace
Dispozice bytu:2+kk
Číslo podlaží v domě:6
Počet podlaží objektu:8
Celková podlahová plocha:39 m²
Druh objektu:panelová
Stav objektu:velmi dobrý
Vlastnictví:osobní
Druh bytu:V panelovém domě
Sklep:1 m²
Vybaveno:ano
Elektřina:Elektro - 230 V
Voda:Zdroj pro celý objekt, Voda - dálkový vodovod
Uživatel serveru RealityMIX.cz (dále jen „Server“) dostupného na internetové adrese (URL) https://www.realitymix.cz, který provozuje společnost DALTEN media s.r.o., se sídlem Na Harfě 916/9a, Praha 9, 190 00, IČO: 271 35 306 (dále jen „Správce“) jako provozovateli tohoto Serveru uděluje svůj výslovný souhlas v souladu s ustanovením § 5 zákona č. 101/2000 Sb. O ochraně osobních údajů a o změně některých zákonů, v platném znění (dále jen „zákon o ochraně osobních údajů“), se zpracováním uživatelem poskytnutých osobních údajů a dalších dat.
Uživatel poskytuje Správci osobní údaje v rozsahu: jméno, příjmení, e-mailová adresa, telefonický kontakt a další data, a to z důvodu projeveného zájmu o nemovitost, kde prostřednictvím služby Serveru Správce osloví Uživatel inzerenta uvedeného v detailu
nemovitosti - Obchod s realitami.cz (IČ 23253932) se zájmem o jeho služby.
Uživatel tyto osobní údaje poskytuje dobrovolně a bere na vědomí, že součástí služeb Správce, které Správce Uživateli poskytuje, je vyhledání všech Uživateli vyhovujících (dle parametrů - cena, typ nemovitosti, lokalita atd.) nemovitostí. Správce za tímto účelem provozuje aplikace Hlídací pes a newsletter. Tyto služby je možné z každého zaslaného emailu odhlásit. Souhlas se zpracováním osobních údajů Uživatel poskytuje Správci na dobu neurčitou s tím, že svůj udělený souhlas může Uživatel kdykoliv na drese správce info@realitymix.cz odvolat. Správce garantuje Uživateli i další práva uvedené v ustanovení §11 a §21 zákoba č. 101/200 Sb. Ve znění pozdějších předpisů.
Více informací o zpracování údajů získáte zde (realitymix.cz/zasady-ochrany-osobnich-udaju)