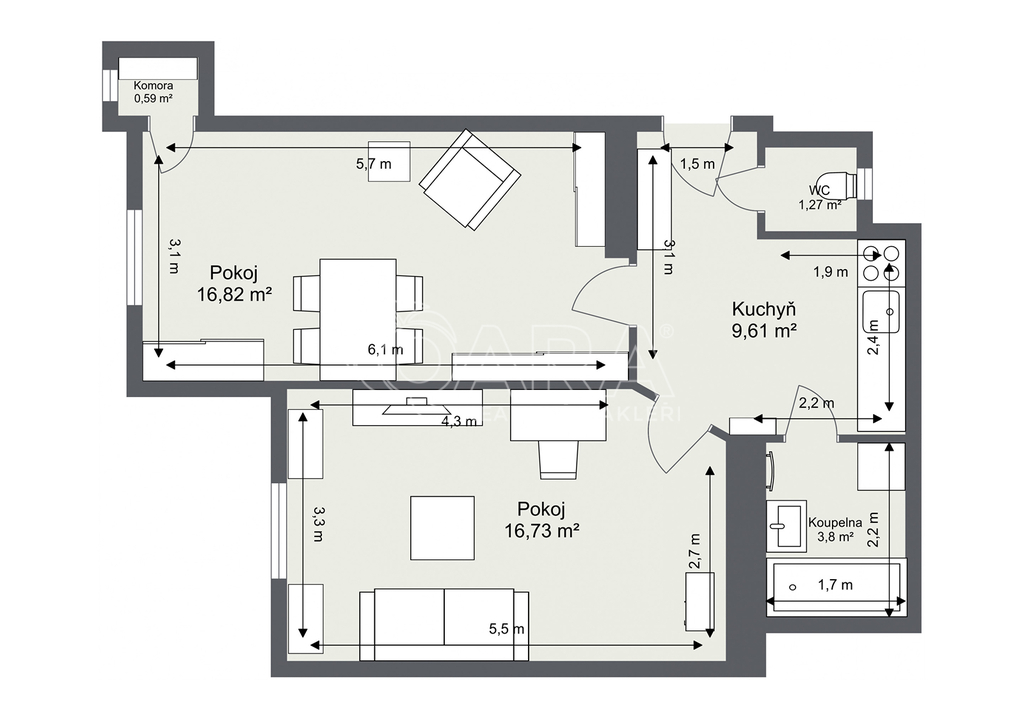
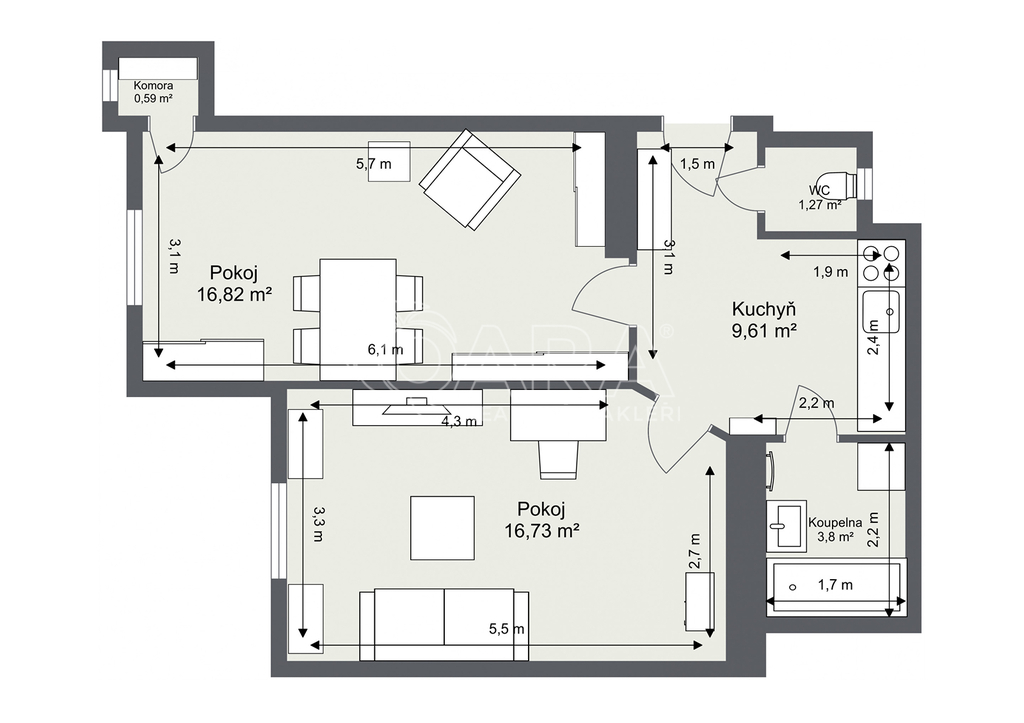
Tahle nabídka vás zaujme, pokud sháníte byt pro sebe, anebo i na investici. Byt v osobním vlastnictví o dispozici 2+kk s čistou podlahovou plochou místností 48,82 m2 se nachází v 6. nadzemním podlaží činžovního domu s výtahem v ulici Lužická na Vinohradech. Před čtyřmi lety prošla jednotka rekonstrukcí, při níž byla kuchyňská linka přesunuta do chodby, aby byl prostor v bytě využit na maximum. Dále došlo k renovaci elektra, plynu, oken, omítek, výměně podlahových krytin a zařizovacích předmětů.
Pokud bych však měl vypíchnout jednu věc, kterou se tento byt opravdu liší od ostatních, tak je to klid, který v něm najdete. Bydlet v centru Vinohrad a mít okna orientována do tak krásného vnitrobloku, ve kterém vás navíc nebude nic rušit, je opravdu unikátní.
Měsíční náklady se pohybují okolo 2 000 Kč + elektřina a plyn (cca 2500 Kč). PENB sk. D.
Vinohrady se dlouhodobě řadí mezi nejžádanější místa k bydlení v Praze a nic nenasvědčuje tomu, že by tomu mělo být v budoucnu jinak. Jsou proslulé bohatou nabídkou skvělých kaváren, bister a restaurací, které uspokojí i ty nejnáročnější. V pěší dostupnosti budete mít metro Náměstí Míru popř. Náměstí Jiřího z Poděbrad, a nebo tramvaj Jana Masaryka. Kousek to ale budete mít i do městských parků Grébovky či Riegrových sadů. Jednoduše řečeno, Vinohrady nabízí dokonalou kombinaci pohodlí, stylu a kvalitního městského života.
Byt lze financovat hypotečním úvěrem se kterým vám rádi pomůžeme.
Pokud vás tedy naše nabídka zaujala, tak mne kontaktujte a domluvíme se na osobní prohlídce.
Pomocí naší hypoteční kalkulačky si můžete udělat orientační představu o výši měsíčních splátek hypotéky. O vše ostatní se pak postaráme my ve spolupráci s našimi obchodními partnery.
40 475 Kč
* Odhadovaná měsíční splátka vychází z výše úvěru Kč s pevnou úrokovou sazbou % po celou dobu trvání úvěru.
Prodáváte nemovitost a potřebujete zjistit její reálnou hodnotu?
Uživatel serveru RealityMIX.cz (dále jen „Server“) dostupného na internetové adrese (URL) https://www.realitymix.cz, který provozuje společnost DALTEN media s.r.o., se sídlem Na Harfě 916/9a, Praha 9, 190 00, IČO: 271 35 306 (dále jen „Správce“) jako provozovateli tohoto Serveru uděluje svůj výslovný souhlas v souladu s ustanovením § 5 zákona č. 101/2000 Sb. O ochraně osobních údajů a o změně některých zákonů, v platném znění (dále jen „zákon o ochraně osobních údajů“), se zpracováním uživatelem poskytnutých osobních údajů a dalších dat.
Uživatel poskytuje Správci osobní údaje v rozsahu: jméno, příjmení, e-mailová adresa, telefonický kontakt a další data, a to z důvodu projeveného zájmu o nemovitost, kde prostřednictvím služby Serveru Správce osloví Uživatel inzerenta uvedeného v detailu
nemovitosti - QARA s.r.o. (IČ 01740113) se zájmem o jeho služby. Tato společnost je součástí seskupení/sítě/franšízového modelu realitních kanceláří, jejich seznam můžete zobrazit kliknutím na tento odkaz.
QARA s.r.o. Ostrava (IČ 01740113) , QARA s.r.o. Brno (IČ 01740113) , QARA s.r.o. (IČ 01740113)
Uživatel tyto osobní údaje poskytuje dobrovolně a bere na vědomí, že součástí služeb Správce, které Správce Uživateli poskytuje, je vyhledání všech Uživateli vyhovujících (dle parametrů - cena, typ nemovitosti, lokalita atd.) nemovitostí. Správce za tímto účelem provozuje aplikace Hlídací pes a newsletter. Tyto služby je možné z každého zaslaného emailu odhlásit. Souhlas se zpracováním osobních údajů Uživatel poskytuje Správci na dobu neurčitou s tím, že svůj udělený souhlas může Uživatel kdykoliv na drese správce info@realitymix.cz odvolat. Správce garantuje Uživateli i další práva uvedené v ustanovení §11 a §21 zákoba č. 101/200 Sb. Ve znění pozdějších předpisů.
Více informací o zpracování údajů získáte zde (realitymix.cz/zasady-ochrany-osobnich-udaju)