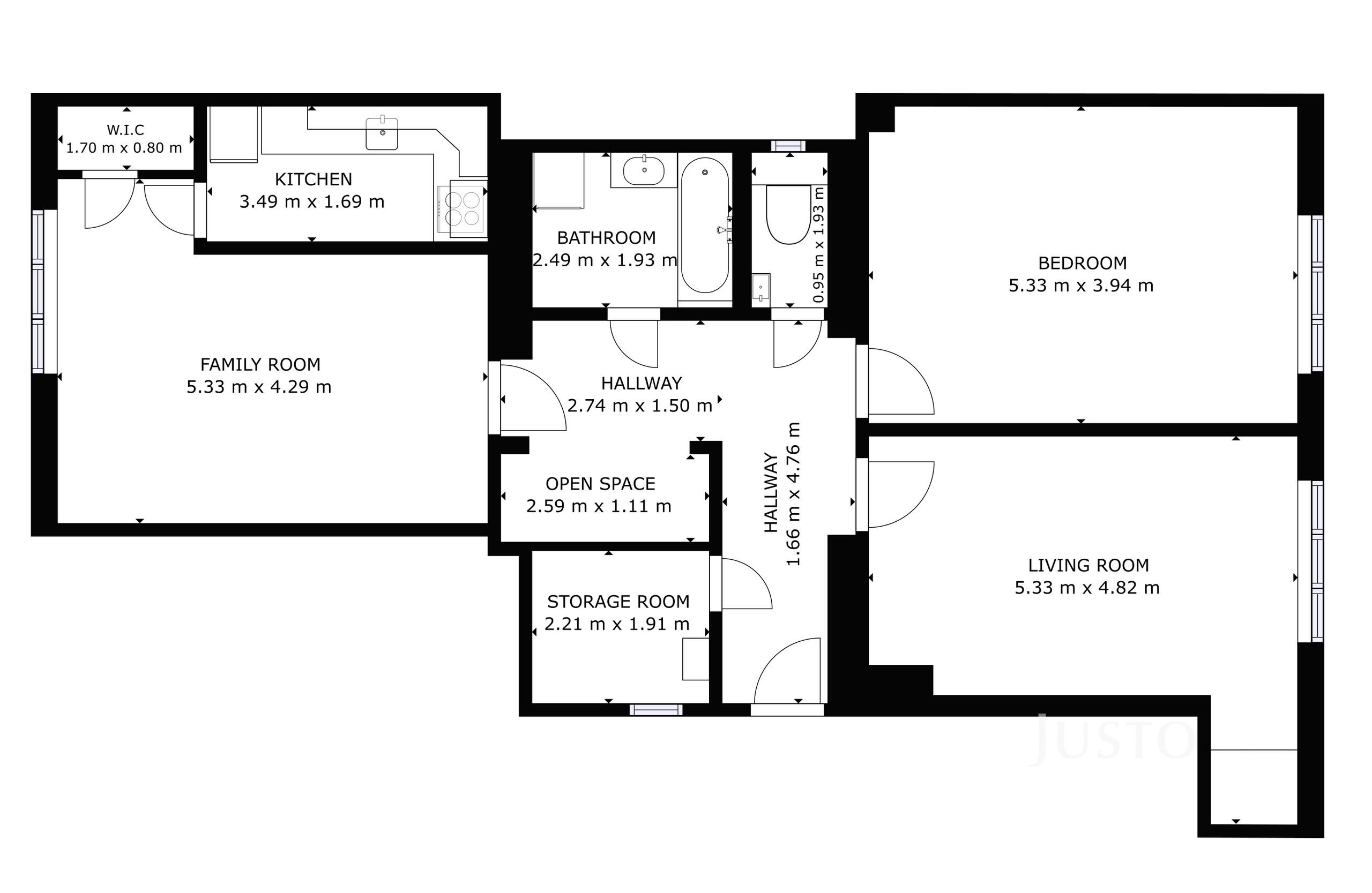
Ve výhradním zastoupení majitele Vám nabízím zprostředkování prodeje velmi příjemného světlého bytu po kompletní rekonstrukci. Byt má dispozici 3+1, plochu 88 m² a nachází se v posledním 5. patře cihlové budovy bez výtahu ve vyhledávané městské části Praha 3 – Žižkov v ulici Biskupcova.
Klíčové informace k nemovitosti:
- plocha bytu 88 m², šatna v bytě
- dispozice 3+1 s velmi praktickou dispozicí
- byt je po celkové rekonstrukci
- jednotka se nachází v posledním 5. patře cihlové budovy bez výtahu
- společný vnitroblok k užívání
- jižní orientace dvou pokojů do rozlehlého vnitrobloku se vzrostlou zelení
- severně orientovaná obývací část s kuchyní směrem do ulice
Klíčové informace k lokalitě:
- skvělá občanská vybavenost a dopravní dostupnost
- mateřská i základní škola,
- sportovní a dětská hřiště, místní kavárny, restaurace, kino Aero a Lidl
- parky Parukářka a Židovské pece, které jsou vhodné k relaxaci či sportování
- tramvajová zastávka Biskupcova a Vozovna Žižkov jsou vzdáleny pouhých 200 m
- návaznost na stanici metra Jana Želivského a Flora a centrum města
Důležité informace k prodeji:
- zájemce nehradí provizi RK!
- majitelka si vyhrazuje právo výběru nejvýhodnější nabídky v případě více zájemců
- možnost zprostředkování atraktivního financování
Průkaz energetické náročnosti není k dispozici, proto je uváděn stupeň "G".
Pokud Vás tato nemovitost zaujala, neváhejte mě kontaktovat, rád Vám tento byt osobně představím.
Pomocí naší hypoteční kalkulačky si můžete udělat orientační představu o výši měsíčních splátek hypotéky. O vše ostatní se pak postaráme my ve spolupráci s našimi obchodními partnery.
52 593 Kč
* Odhadovaná měsíční splátka vychází z výše úvěru Kč s pevnou úrokovou sazbou % po celou dobu trvání úvěru.
Prodáváte nemovitost a potřebujete zjistit její reálnou hodnotu?
Uživatel serveru RealityMIX.cz (dále jen „Server“) dostupného na internetové adrese (URL) https://www.realitymix.cz, který provozuje společnost DALTEN media s.r.o., se sídlem Na Harfě 916/9a, Praha 9, 190 00, IČO: 271 35 306 (dále jen „Správce“) jako provozovateli tohoto Serveru uděluje svůj výslovný souhlas v souladu s ustanovením § 5 zákona č. 101/2000 Sb. O ochraně osobních údajů a o změně některých zákonů, v platném znění (dále jen „zákon o ochraně osobních údajů“), se zpracováním uživatelem poskytnutých osobních údajů a dalších dat.
Uživatel poskytuje Správci osobní údaje v rozsahu: jméno, příjmení, e-mailová adresa, telefonický kontakt a další data, a to z důvodu projeveného zájmu o nemovitost, kde prostřednictvím služby Serveru Správce osloví Uživatel inzerenta uvedeného v detailu
nemovitosti - JUSTO Česká republika (IČ 04419995) se zájmem o jeho služby.
Uživatel tyto osobní údaje poskytuje dobrovolně a bere na vědomí, že součástí služeb Správce, které Správce Uživateli poskytuje, je vyhledání všech Uživateli vyhovujících (dle parametrů - cena, typ nemovitosti, lokalita atd.) nemovitostí. Správce za tímto účelem provozuje aplikace Hlídací pes a newsletter. Tyto služby je možné z každého zaslaného emailu odhlásit. Souhlas se zpracováním osobních údajů Uživatel poskytuje Správci na dobu neurčitou s tím, že svůj udělený souhlas může Uživatel kdykoliv na drese správce info@realitymix.cz odvolat. Správce garantuje Uživateli i další práva uvedené v ustanovení §11 a §21 zákoba č. 101/200 Sb. Ve znění pozdějších předpisů.
Více informací o zpracování údajů získáte zde (realitymix.cz/zasady-ochrany-osobnich-udaju)