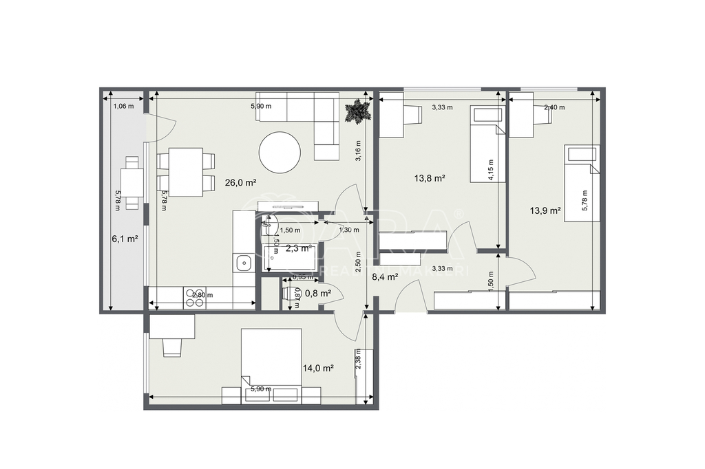
Pokud hledáte prostorné bydlení pro rodinu v širším centru Prahy, tahle nabídka by vás mohla zaujmout. Tento kompletně zrekonstruovaný byt v osobním vlastnictví o dispozici 4+kk o podlahové ploše 81 m2 s lodžií o velikosti dalších 6 m2 se nachází v 7. nadzemním podlaží udržovaného panelového domu v lokalitě Prahy 3 – Žižkov, v ulici U Kněžské louky, a nabízí ideální kombinaci komfortu, prostoru a skvělé dostupnosti do centra města.
Dominantou bytu je světlý obývací pokoj s moderním kuchyňským koutem a přímým vstupem na lodžii. Byt dále disponuje třemi samostatnými neprůchozími pokoji o velikosti cca 14 m², které poskytují dostatek soukromí pro každého člena rodiny.
Celý byt prošel kompletní rekonstrukcí ve světlých neutrálních tónech, které podtrhují jeho vzdušnost a moderní charakter. Koupelna je s vanou a sprchovou zástěnou, toaleta je oddělena.
Dům je ve velmi dobrém stavu, má dva výtahy a fungující SVJ bez dluhů. Předpis měsíčních záloh činí cca 5 870 Kč + elektřina.
K bytu náleží sklep. Velkým benefitem je také možnost dokoupení samostatné garáže přímo v domě za částku 1 mil. Kč.
Lokalita nabízí výbornou dopravní dostupnost i kompletní občanskou vybavenost. Tramvajová zastávka Kněžská luka je přímo před domem, takže centrum města máte na dosah. V okolí najdete školy, školky, restaurace, dětská hřiště i parky pro volnočasové aktivity.
Pokud vás tato nabídka zaujala, neváhejte mne kontaktovat a domluvte si osobní prohlídku.
Pomocí naší hypoteční kalkulačky si můžete udělat orientační představu o výši měsíčních splátek hypotéky. O vše ostatní se pak postaráme my ve spolupráci s našimi obchodními partnery.
48 573 Kč
* Odhadovaná měsíční splátka vychází z výše úvěru Kč s pevnou úrokovou sazbou % po celou dobu trvání úvěru.
Prodáváte nemovitost a potřebujete zjistit její reálnou hodnotu?
Uživatel serveru RealityMIX.cz (dále jen „Server“) dostupného na internetové adrese (URL) https://www.realitymix.cz, který provozuje společnost DALTEN media s.r.o., se sídlem Na Harfě 916/9a, Praha 9, 190 00, IČO: 271 35 306 (dále jen „Správce“) jako provozovateli tohoto Serveru uděluje svůj výslovný souhlas v souladu s ustanovením § 5 zákona č. 101/2000 Sb. O ochraně osobních údajů a o změně některých zákonů, v platném znění (dále jen „zákon o ochraně osobních údajů“), se zpracováním uživatelem poskytnutých osobních údajů a dalších dat.
Uživatel poskytuje Správci osobní údaje v rozsahu: jméno, příjmení, e-mailová adresa, telefonický kontakt a další data, a to z důvodu projeveného zájmu o nemovitost, kde prostřednictvím služby Serveru Správce osloví Uživatel inzerenta uvedeného v detailu
nemovitosti - QARA s.r.o. (IČ 01740113) se zájmem o jeho služby. Tato společnost je součástí seskupení/sítě/franšízového modelu realitních kanceláří, jejich seznam můžete zobrazit kliknutím na tento odkaz.
QARA s.r.o. Ostrava (IČ 01740113) , QARA s.r.o. Brno (IČ 01740113) , QARA s.r.o. (IČ 01740113)
Uživatel tyto osobní údaje poskytuje dobrovolně a bere na vědomí, že součástí služeb Správce, které Správce Uživateli poskytuje, je vyhledání všech Uživateli vyhovujících (dle parametrů - cena, typ nemovitosti, lokalita atd.) nemovitostí. Správce za tímto účelem provozuje aplikace Hlídací pes a newsletter. Tyto služby je možné z každého zaslaného emailu odhlásit. Souhlas se zpracováním osobních údajů Uživatel poskytuje Správci na dobu neurčitou s tím, že svůj udělený souhlas může Uživatel kdykoliv na drese správce info@realitymix.cz odvolat. Správce garantuje Uživateli i další práva uvedené v ustanovení §11 a §21 zákoba č. 101/200 Sb. Ve znění pozdějších předpisů.
Více informací o zpracování údajů získáte zde (realitymix.cz/zasady-ochrany-osobnich-udaju)