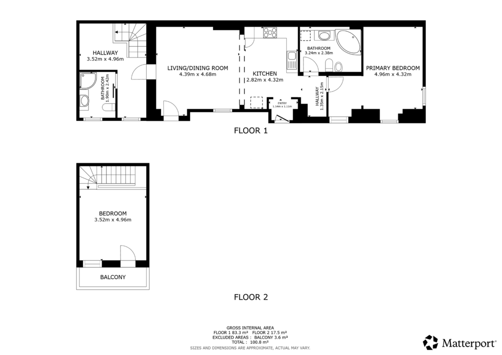
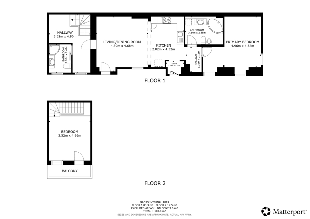
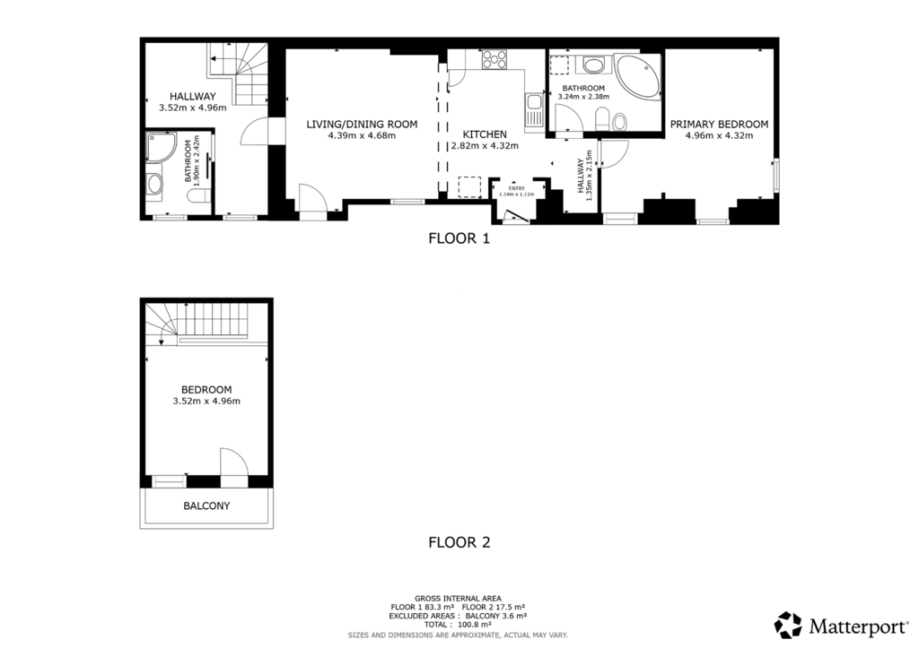
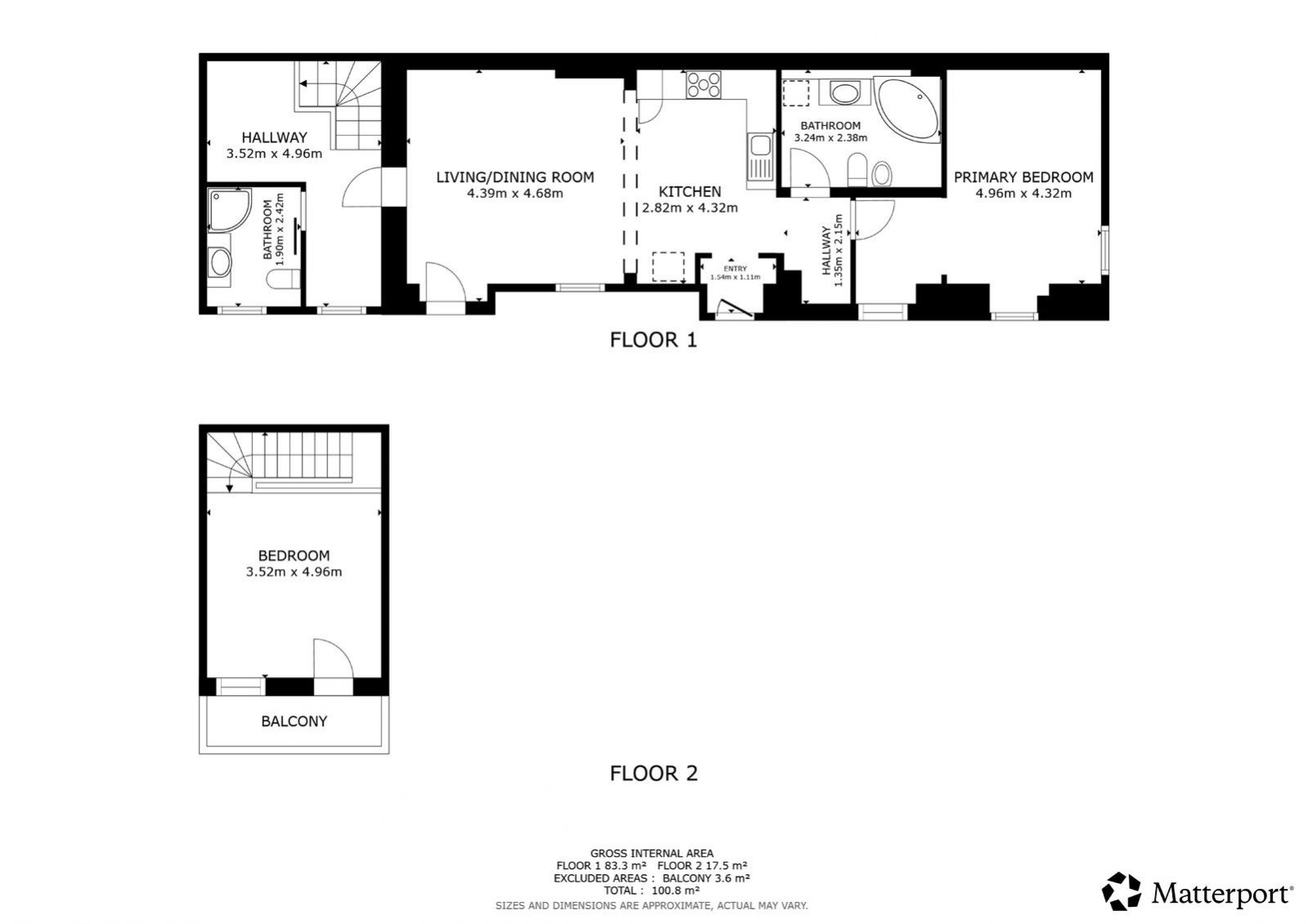
V jedné z nejžádanějších částí Prahy – v samotném srdci Karlína – nabízíme výjimečný mezonetový byt 4+kk o celkové ploše 92,29 m² (včetně balkonu), situovaný v 1. a 2. nadzemním podlaží kompletně rekonstruovaného secesního činžovního domu.
Tady nejde jen o metry čtvereční.
Tady jde o atmosféru.
Byt je orientován do klidné dvorní části domu, mimo ruch ulice, což mu dodává téměř až překvapivé ticho a intimitu. Vstup do domu je z přední části, takže dvůr zůstává komorním prostorem s minimálním provozem – bezpečný, klidný, s možností krátkodobého parkování a po dohodě i pronájmu parkovacího stání.
Tento byt byl domovem umělců. A je to znát.
Interiér vznikal s citem, kreativitou a respektem k prostoru.
Ručně vyráběné mozaiky v kuchyni i na parapetech, práce se dřevem, krbová kamna, promyšlené detaily, které nepůsobí okázale, ale přirozeně. Velkorysá knihovna, chytré úložné prostory, světlo proudící do dvorního ticha – všechno dohromady vytváří harmonii, která se dnes hledá jen těžko.
Byt působí autenticky, živě a zároveň klidně.
Je to prostor, kde se tvoří, čte, hraje na piano, vaří s přáteli a večer sedí u krbových kamen.
Po dohodě je možné ponechat kompletní vybavení včetně piana – a převzít tak nejen byt, ale i jeho atmosféru.
Karlín není jen adresa. Je to komunita, energie, kombinace historie a moderního městského života.
Metro i tramvaj jsou dvě minuty chůze. Kavárny, restaurace, školy, školky, designové obchody i řeka s cyklostezkou – vše je doslova za rohem. Ráno běh podél Vltavy, dopoledne práce v centru, večer víno v oblíbeném bistru.
Zde bydlíte v centru dění, ale spíte v klidu dvora.
Dispozice bytu umožňuje stavební rozdělení na dvě jednotky 2+kk, což otevírá zajímavé investiční možnosti.
Díky lokalitě, dispozici i charakteru prostoru je byt ideální nejen pro rodinné bydlení, ale i pro krátkodobé či střednědobé pronajímání. Karlín dlouhodobě patří mezi nejžádanější pražské čtvrti jak mezi expaty, tak mezi turisty hledající autentické bydlení mimo hotelový standard.
Satelitní připojení, bezpečnostní kamerový systém v domě a bezproblémové SVJ bez dluhů jsou samozřejmostí.
Základní informace
4+kk, 92,29 m² včetně balkonu
osobní vlastnictví, možnost financování hypotékou
služby (4 osoby): 3 823 Kč
elektřina: 1 530 Kč
plyn: 2 260 Kč
dům po kompletní rekonstrukci
Tento byt není sterilní novostavba.
Je to prostor s příběhem. A ten může pokračovat.
Ozvěte se mi, rád Vám osobně představím Váš budoucí domov.
Pomocí naší hypoteční kalkulačky si můžete udělat orientační představu o výši měsíčních splátek hypotéky. O vše ostatní se pak postaráme my ve spolupráci s našimi obchodními partnery.
56 561 Kč
* Odhadovaná měsíční splátka vychází z výše úvěru Kč s pevnou úrokovou sazbou % po celou dobu trvání úvěru.
Prodáváte nemovitost a potřebujete zjistit její reálnou hodnotu?
Uživatel serveru RealityMIX.cz (dále jen „Server“) dostupného na internetové adrese (URL) https://www.realitymix.cz, který provozuje společnost DALTEN media s.r.o., se sídlem Na Harfě 916/9a, Praha 9, 190 00, IČO: 271 35 306 (dále jen „Správce“) jako provozovateli tohoto Serveru uděluje svůj výslovný souhlas v souladu s ustanovením § 5 zákona č. 101/2000 Sb. O ochraně osobních údajů a o změně některých zákonů, v platném znění (dále jen „zákon o ochraně osobních údajů“), se zpracováním uživatelem poskytnutých osobních údajů a dalších dat.
Uživatel poskytuje Správci osobní údaje v rozsahu: jméno, příjmení, e-mailová adresa, telefonický kontakt a další data, a to z důvodu projeveného zájmu o nemovitost, kde prostřednictvím služby Serveru Správce osloví Uživatel inzerenta uvedeného v detailu
nemovitosti - QARA s.r.o. (IČ 01740113) se zájmem o jeho služby. Tato společnost je součástí seskupení/sítě/franšízového modelu realitních kanceláří, jejich seznam můžete zobrazit kliknutím na tento odkaz.
QARA s.r.o. Ostrava (IČ 01740113) , QARA s.r.o. Brno (IČ 01740113) , QARA s.r.o. (IČ 01740113)
Uživatel tyto osobní údaje poskytuje dobrovolně a bere na vědomí, že součástí služeb Správce, které Správce Uživateli poskytuje, je vyhledání všech Uživateli vyhovujících (dle parametrů - cena, typ nemovitosti, lokalita atd.) nemovitostí. Správce za tímto účelem provozuje aplikace Hlídací pes a newsletter. Tyto služby je možné z každého zaslaného emailu odhlásit. Souhlas se zpracováním osobních údajů Uživatel poskytuje Správci na dobu neurčitou s tím, že svůj udělený souhlas může Uživatel kdykoliv na drese správce info@realitymix.cz odvolat. Správce garantuje Uživateli i další práva uvedené v ustanovení §11 a §21 zákoba č. 101/200 Sb. Ve znění pozdějších předpisů.
Více informací o zpracování údajů získáte zde (realitymix.cz/zasady-ochrany-osobnich-udaju)