Nabízíme k prodeji byt 3+kk o velikosti 60,3 m v 5. patře cihlového domu, který vznikl jako půdní nadstavba v roce 2021. Díky tomu má byt moderní provedení, čisté linie a zároveň zůstává v klasickém prvorepublikovém domě s charakterem. Bonus? Nad vámi už nikdo nebydlí klid a soukromí je tedy zaručeno.
Dispozice a vybavení:
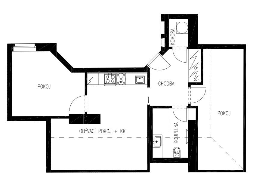
Obývací pokoj s kuchyňským koutem + dva samostatné pokoje.
Koupelna se sprchovým koutem, topným žebříkem a obkladem po celé výšce stěn, WC.
Vlastní plynový kotel v technické místnosti (vytápění radiátory, v koupelně topný žebřík) + pračka.
Podlahy: velkoformátová dlažba v koupelně, v ostatních místnostech PVC lamely v dekoru dřeva.
Chlazení venkovní jednotka na střeše + vnitřní jednotka v obývacím pokoji, ochladí spolehlivě celý byt.
K dispozici je i sklep v suterénu domu.
Náklady na bydlení:
Měsíční zálohy na služby: 2.262 Kč
elektřina a plyn dle vlastní spotřeby
Dům a okolí:
Dům kompletně zrekonstruován (výtah, okna, rozvody, vymalované společné prostory).
Sklep se nachází v suterénu domu, v domě jsou společné úložné prostory.
Lokalita, která má šmrnc:
4 minuty pěšky na Náměstí Bratří Synků (tram, bus, obchody, kavárny)
1 zastávka tramvají na metro C Vyšehrad
Grébovka, Nuselské schody i Folimanka v docházce.
Byt je v současné době užíván, více fotek a informací vám rád poskytnu na vyžádání.
Cena:
8 990 000 Kč
Poznámka:
Včetně provize a právního servisu, měsíční zálohy 2.262,- Kč včetně fondu oprav
Pomocí naší hypoteční kalkulačky si můžete udělat orientační představu o výši měsíčních splátek hypotéky. O vše ostatní se pak postaráme my ve spolupráci s našimi obchodními partnery.
36 398 Kč
* Odhadovaná měsíční splátka vychází z výše úvěru Kč s pevnou úrokovou sazbou % po celou dobu trvání úvěru.
Prodáváte nemovitost a potřebujete zjistit její reálnou hodnotu?
Uživatel serveru RealityMIX.cz (dále jen „Server“) dostupného na internetové adrese (URL) https://www.realitymix.cz, který provozuje společnost DALTEN media s.r.o., se sídlem Na Harfě 916/9a, Praha 9, 190 00, IČO: 271 35 306 (dále jen „Správce“) jako provozovateli tohoto Serveru uděluje svůj výslovný souhlas v souladu s ustanovením § 5 zákona č. 101/2000 Sb. O ochraně osobních údajů a o změně některých zákonů, v platném znění (dále jen „zákon o ochraně osobních údajů“), se zpracováním uživatelem poskytnutých osobních údajů a dalších dat.
Uživatel poskytuje Správci osobní údaje v rozsahu: jméno, příjmení, e-mailová adresa, telefonický kontakt a další data, a to z důvodu projeveného zájmu o nemovitost, kde prostřednictvím služby Serveru Správce osloví Uživatel inzerenta uvedeného v detailu
nemovitosti - Jan Pavlis (IČ 01107798) se zájmem o jeho služby.
Uživatel tyto osobní údaje poskytuje dobrovolně a bere na vědomí, že součástí služeb Správce, které Správce Uživateli poskytuje, je vyhledání všech Uživateli vyhovujících (dle parametrů - cena, typ nemovitosti, lokalita atd.) nemovitostí. Správce za tímto účelem provozuje aplikace Hlídací pes a newsletter. Tyto služby je možné z každého zaslaného emailu odhlásit. Souhlas se zpracováním osobních údajů Uživatel poskytuje Správci na dobu neurčitou s tím, že svůj udělený souhlas může Uživatel kdykoliv na drese správce info@realitymix.cz odvolat. Správce garantuje Uživateli i další práva uvedené v ustanovení §11 a §21 zákoba č. 101/200 Sb. Ve znění pozdějších předpisů.
Více informací o zpracování údajů získáte zde (realitymix.cz/zasady-ochrany-osobnich-udaju)