Prodej bytu 1+kk, 30m2, Praha 4 - Modřany, ul. Pejevové
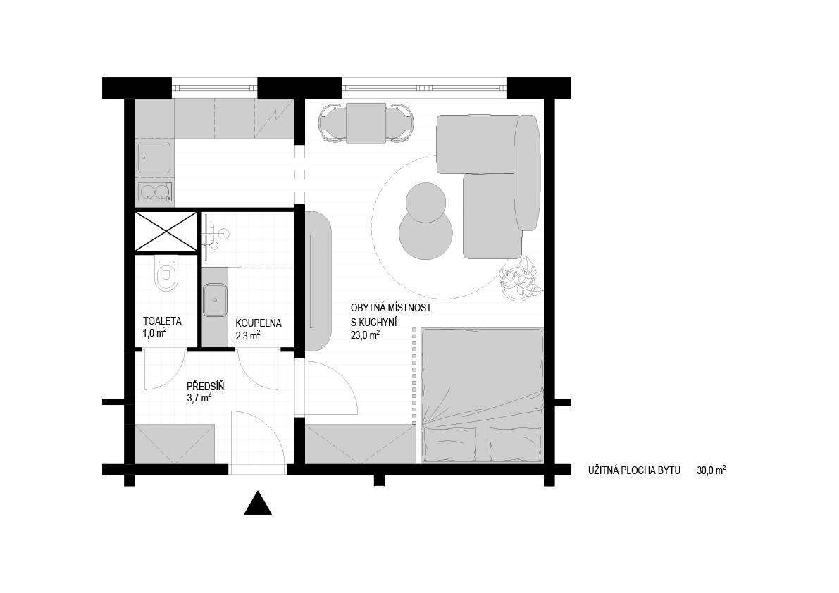
Nabízíme k prodeji útulný byt 1+kk, 6. patro (ze sedmi) revitalizovaného panelového domu s výtahem. Celková užitná plocha bytu je 30m2, výhodou bytu je, že kuchyňka není součástí obytné místnosti.
Byt je v původním, udržovaném stavu, má nová okna s trojskly, orientace na jih. Dům prošel kompletní revitalizací – nová, zateplená fasáda, vnitřní prostory domu, sklepní prostory, nový výtah. Dům má bezbariérový přístup.
K bytu patří sklep v 1. podzemním podlaží.
Byt je v družstevním vlastnictví, je možné ho financovat úvěrem ze stavebního spoření, hypotékou pouze v případě ručení jinou nemovitostí.
Výborná dostupnost do centra města – tramvají cca 20 min., autobusem na metro B, nebo C 15 min. jízdy. Zastávka je cca 5 minut chůze od domu. Parkování před domem.
Veškerá občanská vybavenost v nejbližším okolí, supermarket Billa, lékárna, poliklinika, pošta, OC Modřany je vzdáleno od domu 8 min. chůze.
Parkování před domem.
Bližší informace v RK, prohlídky možné po dohodě.
Pomocí naší hypoteční kalkulačky si můžete udělat orientační představu o výši měsíčních splátek hypotéky. O vše ostatní se pak postaráme my ve spolupráci s našimi obchodními partnery.
17 733 Kč
* Odhadovaná měsíční splátka vychází z výše úvěru Kč s pevnou úrokovou sazbou % po celou dobu trvání úvěru.
Prodáváte nemovitost a potřebujete zjistit její reálnou hodnotu?
Uživatel serveru RealityMIX.cz (dále jen „Server“) dostupného na internetové adrese (URL) https://www.realitymix.cz, který provozuje společnost DALTEN media s.r.o., se sídlem Na Harfě 916/9a, Praha 9, 190 00, IČO: 271 35 306 (dále jen „Správce“) jako provozovateli tohoto Serveru uděluje svůj výslovný souhlas v souladu s ustanovením § 5 zákona č. 101/2000 Sb. O ochraně osobních údajů a o změně některých zákonů, v platném znění (dále jen „zákon o ochraně osobních údajů“), se zpracováním uživatelem poskytnutých osobních údajů a dalších dat.
Uživatel poskytuje Správci osobní údaje v rozsahu: jméno, příjmení, e-mailová adresa, telefonický kontakt a další data, a to z důvodu projeveného zájmu o nemovitost, kde prostřednictvím služby Serveru Správce osloví Uživatel inzerenta uvedeného v detailu
nemovitosti - VERTIGO REALITY (IČ 45752338) se zájmem o jeho služby.
Uživatel tyto osobní údaje poskytuje dobrovolně a bere na vědomí, že součástí služeb Správce, které Správce Uživateli poskytuje, je vyhledání všech Uživateli vyhovujících (dle parametrů - cena, typ nemovitosti, lokalita atd.) nemovitostí. Správce za tímto účelem provozuje aplikace Hlídací pes a newsletter. Tyto služby je možné z každého zaslaného emailu odhlásit. Souhlas se zpracováním osobních údajů Uživatel poskytuje Správci na dobu neurčitou s tím, že svůj udělený souhlas může Uživatel kdykoliv na drese správce info@realitymix.cz odvolat. Správce garantuje Uživateli i další práva uvedené v ustanovení §11 a §21 zákoba č. 101/200 Sb. Ve znění pozdějších předpisů.
Více informací o zpracování údajů získáte zde (realitymix.cz/zasady-ochrany-osobnich-udaju)