Nabízíme k prodeji prostorný a světlý byt o dispozici 1+kk a užitné ploše 39 m², který se nachází ve 3. nadzemním podlaží moderní novostavby z roku 2024 od renomovaného developera Sekyra Group. Dům se nachází v žádané lokalitě Prahy 5 – Smíchov, v těsné blízkosti metra a plné občanské vybavenosti.
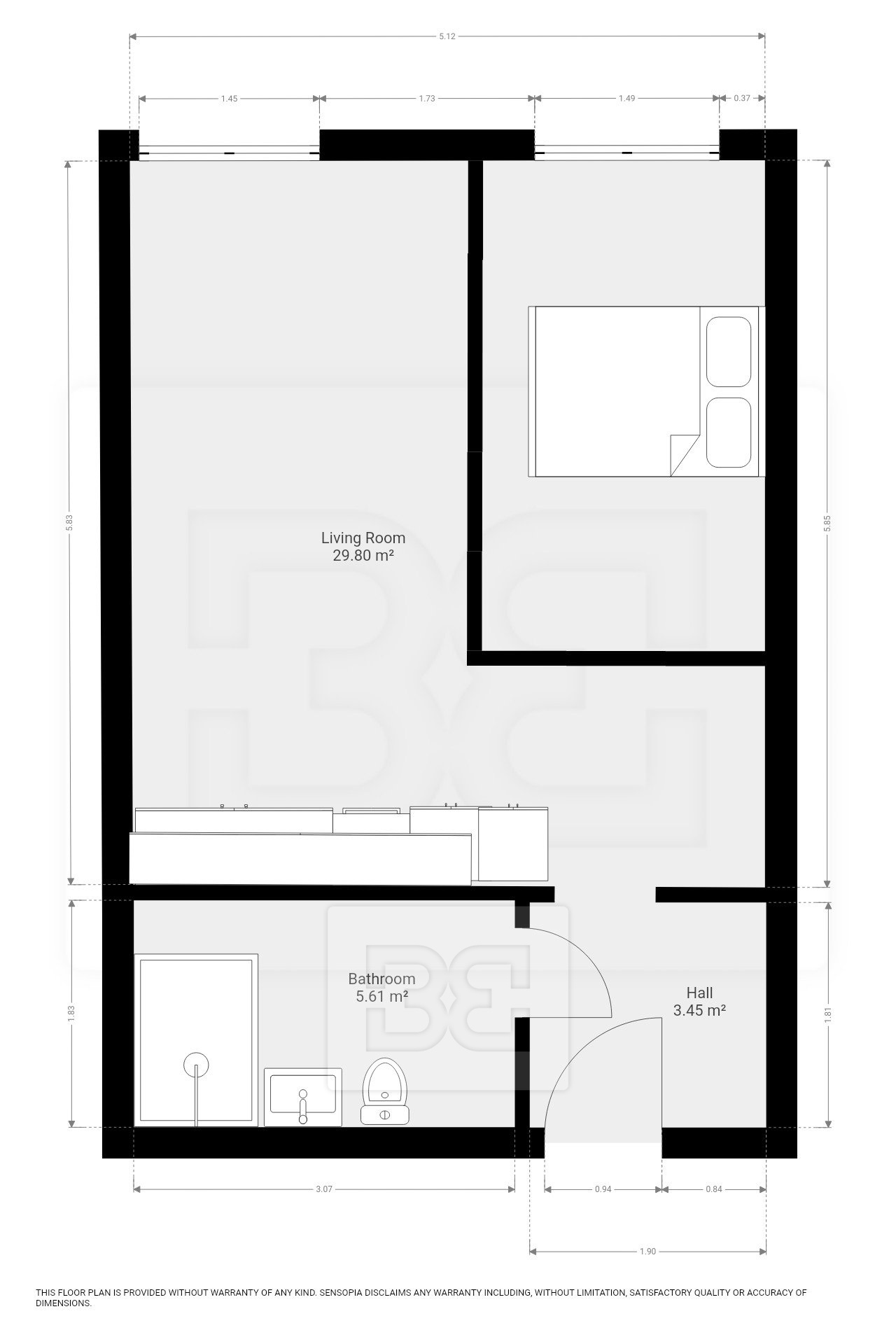
Byt je orientovaný na západ a nabízí příjemnou atmosféru i dostatek denního světla. Dispozice zahrnuje obývací pokoj s moderně vybavenou kuchyňskou linkou (lednice, myčka, trouba, indukční varná deska a digestoř), prostorná s a koupelnu se sprchovým koutem a toaletou. V koupelně najdeme dále i bidetovou sprchu, topný žebřík a prostor na pračku a sušičku. K bytu náleží i sklepní kóje o výměře 1,8m2.
Byt díky šikovné dispozici a dvou oknům se dá rozdělit až na 2+kk.
Lokalita Smíchov nabízí veškeré pohodlí městského života – v docházkové vzdálenosti naleznete kavárny, obchody, lékárny i obchodní centrum. Výborná dopravní dostupnost: pár kroků od metra B (Smíchovské nádraží), tramvajových i autobusových zastávek, s přímým napojením i na vlakové spoje.
Pro volnočasové aktivity je k dispozici oblíbená náplavka či nedaleké Prokopské údolí.
V případě zájmu Vám rád pošlu odkaz na virtuální prohlídku, abyste měli úplnou představu o nabízené nemovitosti (360C prohlídka s možností orientace ve videu dle vašich představ).
Cena:
Cena na vyžádání
Poznámka:
dohodou, včetně provize a právního servisu, včetně DPH, včetně provize, včetně právního servisu
Datum k nastěhování:
01.10.2025
Dispozice/podlahová plocha:
1+kk/42 m²
Číslo zakázky:
REALITYMIX-N08945
Podrobné informace
Bezbariérový byt:ano
Dispozice bytu:1+kk
Číslo podlaží v domě:3
Počet podlaží objektu:5
Celková podlahová plocha:42 m²
Druh objektu:cihlová
Stav objektu:novostavba
Stáří objektu:2024
Vlastnictví:osobní
Sklep:1 m²
Umístění objektu:klidná část obce
Doprava:vlak, dálnice, silnice, MHD, autobus
Elektřina:Elektro - 230 V
Voda:Voda - dálkový vodovod
Telekomunikace:Internet
Topení:Ústřední - dálkové
Energetická náročnost budovy:B - Velmi úsporná
Ukazatel energetické náročnosti budovy:58 kWh/m²
Energetický ukazatel podle vyhlášky:č. 264/2020 Sb.
Uživatel serveru RealityMIX.cz (dále jen „Server“) dostupného na internetové adrese (URL) https://www.realitymix.cz, který provozuje společnost DALTEN media s.r.o., se sídlem Na Harfě 916/9a, Praha 9, 190 00, IČO: 271 35 306 (dále jen „Správce“) jako provozovateli tohoto Serveru uděluje svůj výslovný souhlas v souladu s ustanovením § 5 zákona č. 101/2000 Sb. O ochraně osobních údajů a o změně některých zákonů, v platném znění (dále jen „zákon o ochraně osobních údajů“), se zpracováním uživatelem poskytnutých osobních údajů a dalších dat.
Uživatel poskytuje Správci osobní údaje v rozsahu: jméno, příjmení, e-mailová adresa, telefonický kontakt a další data, a to z důvodu projeveného zájmu o nemovitost, kde prostřednictvím služby Serveru Správce osloví Uživatel inzerenta uvedeného v detailu
nemovitosti - Bohemian Estates International s. r. o. (IČ 27889394) se zájmem o jeho služby.
Uživatel tyto osobní údaje poskytuje dobrovolně a bere na vědomí, že součástí služeb Správce, které Správce Uživateli poskytuje, je vyhledání všech Uživateli vyhovujících (dle parametrů - cena, typ nemovitosti, lokalita atd.) nemovitostí. Správce za tímto účelem provozuje aplikace Hlídací pes a newsletter. Tyto služby je možné z každého zaslaného emailu odhlásit. Souhlas se zpracováním osobních údajů Uživatel poskytuje Správci na dobu neurčitou s tím, že svůj udělený souhlas může Uživatel kdykoliv na drese správce info@realitymix.cz odvolat. Správce garantuje Uživateli i další práva uvedené v ustanovení §11 a §21 zákoba č. 101/200 Sb. Ve znění pozdějších předpisů.
Více informací o zpracování údajů získáte zde (realitymix.cz/zasady-ochrany-osobnich-udaju)