Nabídka bytu 2+1 v klidné lokalitě v ulici Káranská, Praha 10 - Malešice.
Byt je v družstevním vlastnictví o užitné ploše 57 m² se nachází v 6.NP v revitalizovaném panelovém domě s výtahem.
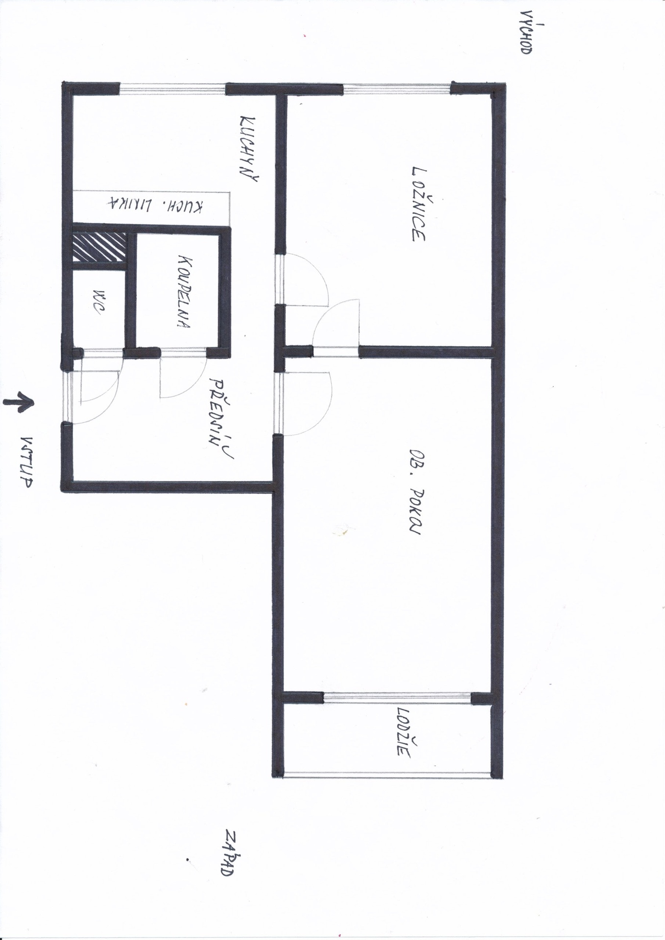
Bytová jednotka je v dobrém stavu a nabízí praktickou dispozici s obývacím pokojem, ložnicí, kuchyní, předsíní, koupelnou a samostatným WC. Z obývacího pokoje se vchází na zasklenou lodžii s výhledem do parkové zeleně. Ideální pro pár či malou rodinu hledající pohodlné bydlení.
WC i koupelna prošla zdařilou rekonstrukcí, zděné jádro. Kuchyně je starší, ale plně funkční. Na předsíni je původní vestavná prostorná šatní skříň. Podlahy v pokojích jsou původní kazetové dřevěné parkety, v kuchyni je položen vinil, v koupelně a WC nová dlažba. Okna jsou v plastu, radiátory mají samostatné měřiče. K bytu náleží také sklep.
Družstevní vlastnictví se splacenou anuitou. Měsíční částka BD za služby bytu je 6 349,-Kč z toho činí fond oprav 2 266,-Kč.
Byt je ihned volný i k nastěhování.
Malešice jsou vyhledávanou lokalitou pro přístupné klidné rodinné bydlení i investici. V okolí je veškerá občanská vybavenost s dobrou dostupností MHD. Parkování v okolí je placené - rezidenční zóna.
Možnost zajištění vizualizace a rekonstrukce na zakázku dle domluvy a představ.
Nemovitost je určena výhradně přímým zájemcům. Pro více informací mne kontaktujte.
Pomocí naší hypoteční kalkulačky si můžete udělat orientační představu o výši měsíčních splátek hypotéky. O vše ostatní se pak postaráme my ve spolupráci s našimi obchodními partnery.
26 924 Kč
* Odhadovaná měsíční splátka vychází z výše úvěru Kč s pevnou úrokovou sazbou % po celou dobu trvání úvěru.
Prodáváte nemovitost a potřebujete zjistit její reálnou hodnotu?
Uživatel serveru RealityMIX.cz (dále jen „Server“) dostupného na internetové adrese (URL) https://www.realitymix.cz, který provozuje společnost DALTEN media s.r.o., se sídlem Na Harfě 916/9a, Praha 9, 190 00, IČO: 271 35 306 (dále jen „Správce“) jako provozovateli tohoto Serveru uděluje svůj výslovný souhlas v souladu s ustanovením § 5 zákona č. 101/2000 Sb. O ochraně osobních údajů a o změně některých zákonů, v platném znění (dále jen „zákon o ochraně osobních údajů“), se zpracováním uživatelem poskytnutých osobních údajů a dalších dat.
Uživatel poskytuje Správci osobní údaje v rozsahu: jméno, příjmení, e-mailová adresa, telefonický kontakt a další data, a to z důvodu projeveného zájmu o nemovitost, kde prostřednictvím služby Serveru Správce osloví Uživatel inzerenta uvedeného v detailu
nemovitosti - RSQ CZ s.r.o. (IČ 07836619) se zájmem o jeho služby.
Uživatel tyto osobní údaje poskytuje dobrovolně a bere na vědomí, že součástí služeb Správce, které Správce Uživateli poskytuje, je vyhledání všech Uživateli vyhovujících (dle parametrů - cena, typ nemovitosti, lokalita atd.) nemovitostí. Správce za tímto účelem provozuje aplikace Hlídací pes a newsletter. Tyto služby je možné z každého zaslaného emailu odhlásit. Souhlas se zpracováním osobních údajů Uživatel poskytuje Správci na dobu neurčitou s tím, že svůj udělený souhlas může Uživatel kdykoliv na drese správce info@realitymix.cz odvolat. Správce garantuje Uživateli i další práva uvedené v ustanovení §11 a §21 zákoba č. 101/200 Sb. Ve znění pozdějších předpisů.
Více informací o zpracování údajů získáte zde (realitymix.cz/zasady-ochrany-osobnich-udaju)