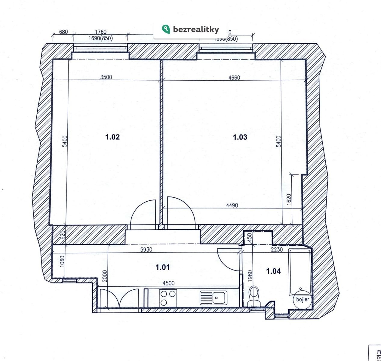
Přímý vlastník nabízí k prodeji luxusní, kompletně zrekonstruovaný byt 2+1 v osobním vlastnictví o celkové ploše 65 m² ( dle nařízení vlády se započtením vnitřních příček a zabudovaných předmětů, užitná plocha bytu je 61,2 ). Byt je situovaný ve 2. patře cihlového domu s výtahem v prestižní lokalitě Praha 3 – Vinohrady, ulice Boleslavská. K bytu patří dále sklep o výměře 2,5 m2 a spoluvlastnický podíl o velikosti 624/13083 na společných částech budovy včetně nevyužitých půdních prostor. Byt prošel na přelomu roku 2025 kompletní rekonstrukcí a je připraven k okamžitému nastěhování bez dalších investic. Nabízí neprůchozí pokoje, vysoké stropy, velká okna orientovaná na jihozápad (okna vedou do ulice Boleslavská). zachovalé dobové prvky jako masivní dřevěné podlahy, secesní kamna a moderní komfort v podobě nové plně vybavené kuchyně a prostorné koupelny s vanou. Součástí bytu je praktická komora s přípravou na pračku a sušičku. Dům je udržovaný, postupně prochází modernizací. Skvělá poloha pár kroků od metra Flora a Jiřího z Poděbrad, obchodního centra i množství restaurací, kaváren a parků činí byt ideálním jak pro vlastní bydlení, tak jako investice na dlouhodobý nebo krátkodobý pronájem. Tato nemovitost je určena výhradně přímým zájemcům o koupi. Na inzerát můžete také reagovat přímo na webu Bezrealitky.
Pomocí naší hypoteční kalkulačky si můžete udělat orientační představu o výši měsíčních splátek hypotéky. O vše ostatní se pak postaráme my ve spolupráci s našimi obchodními partnery.
44 334 Kč
* Odhadovaná měsíční splátka vychází z výše úvěru Kč s pevnou úrokovou sazbou % po celou dobu trvání úvěru.
Prodáváte nemovitost a potřebujete zjistit její reálnou hodnotu?
* Umístění na mapě je na základě GPS informací dodaných realitní kanceláří.
* Pozice na mapě je pouze orientační.
Souhlas se zpracováním osobních údajů
Uživatel serveru RealityMIX.cz (dále jen „Server“) dostupného na internetové adrese (URL) https://www.realitymix.cz, který provozuje společnost DALTEN media s.r.o., se sídlem Na Harfě 916/9a, Praha 9, 190 00, IČO: 271 35 306 (dále jen „Správce“) jako provozovateli tohoto Serveru uděluje svůj výslovný souhlas v souladu s ustanovením § 5 zákona č. 101/2000 Sb. O ochraně osobních údajů a o změně některých zákonů, v platném znění (dále jen „zákon o ochraně osobních údajů“), se zpracováním uživatelem poskytnutých osobních údajů a dalších dat.
Uživatel poskytuje Správci osobní údaje v rozsahu: jméno, příjmení, e-mailová adresa, telefonický kontakt a další data, a to z důvodu projeveného zájmu o nemovitost, kde prostřednictvím služby Serveru Správce osloví Uživatel inzerenta uvedeného v detailu
nemovitosti - Bezrealitky s.r.o. (IČ 08063168) se zájmem o jeho služby.
Uživatel tyto osobní údaje poskytuje dobrovolně a bere na vědomí, že součástí služeb Správce, které Správce Uživateli poskytuje, je vyhledání všech Uživateli vyhovujících (dle parametrů - cena, typ nemovitosti, lokalita atd.) nemovitostí. Správce za tímto účelem provozuje aplikace Hlídací pes a newsletter. Tyto služby je možné z každého zaslaného emailu odhlásit. Souhlas se zpracováním osobních údajů Uživatel poskytuje Správci na dobu neurčitou s tím, že svůj udělený souhlas může Uživatel kdykoliv na drese správce info@realitymix.cz odvolat. Správce garantuje Uživateli i další práva uvedené v ustanovení §11 a §21 zákoba č. 101/200 Sb. Ve znění pozdějších předpisů.
Více informací o zpracování údajů získáte zde (realitymix.cz/zasady-ochrany-osobnich-udaju)