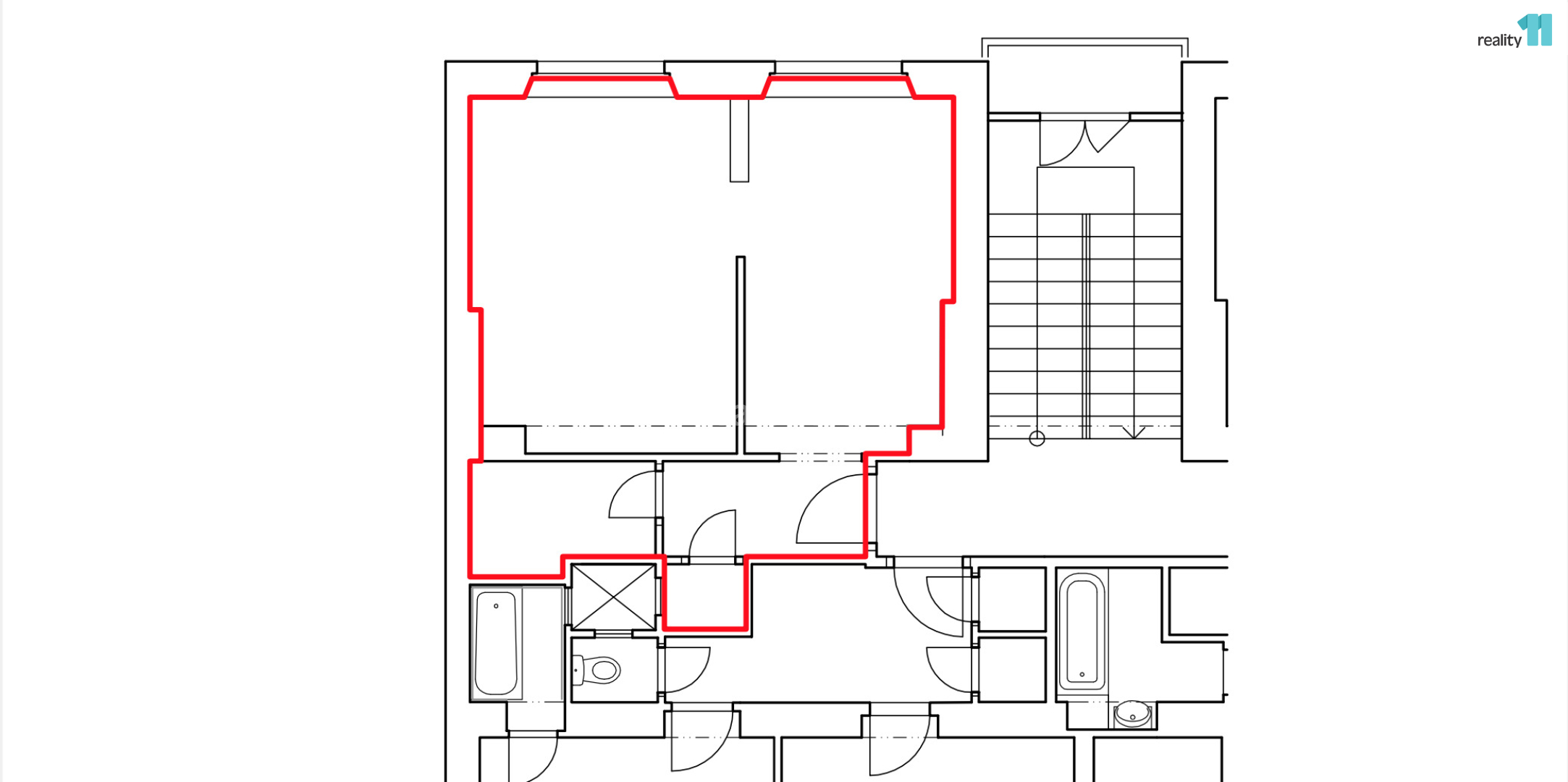
Nabízíme zděný byt 2+kk o celkové ploše 38,42 m², ve 3. patře v klidné lokalitě širšího centra Prahy 5 - Smíchov. Byt je v současnosti užíván jako 1+kk a je vhodný k částečné rekonstrukci. S okny do klidného dvora na západ. V mezipatře domu jsou balkóny, např. pro věšení prádla. Ze zadního vchodu domu je vstup na menší zahradu, kterou lze využívat. Dům je v klidné ulici.
Rozměry místností: předsíň 3,53 m², obývací pokoj s KK 13,40 m², koupelna s WC 3,51 m², pokoj 16,97 m², komora 1,01 m². Vytápění je elektrickými přímotopy. Příprava teplé vody v elektrickém zásobníku. Koupelna je s vanou, umyvadlem a WC, vejde se tam i pračka.
Výborná dostupnost. Metro a tramvaj do 10 min pěšky na stanici Anděl. 150 m je zastávka autobusu. Rychlé spojení na dálnici D5 a Pražský okruh. Smíchov disponuje vlakovým i autobusovým nádražím i pro příměstské spoje.
V docházkové vzdálenosti je ZŠ i MŠ, supermarket Albert, restaurace, ostatní občanská vybavenost v nedalekém centru Smíchova, kde je i obchodní centrum Nový Smíchov. V blízkosti je zimní stadion Nikolajka. Parkování je možné v okolních komunikacích. V blízkosti lokality jsou přírodní oblasti Šalamounka, Měchurka, sportovní areál Santoška.
Ideální pro mladé páry nebo investory, kteří hledají bydlení s potenciálem v atraktivní lokalitě s výbornou dopravní dostupností. Byt je aktuálně pronajatý s možností pokračování nájmu. Ev. číslo: 27941.
Pomocí naší hypoteční kalkulačky si můžete udělat orientační představu o výši měsíčních splátek hypotéky. O vše ostatní se pak postaráme my ve spolupráci s našimi obchodními partnery.
24 697 Kč
* Odhadovaná měsíční splátka vychází z výše úvěru Kč s pevnou úrokovou sazbou % po celou dobu trvání úvěru.
Prodáváte nemovitost a potřebujete zjistit její reálnou hodnotu?
Uživatel serveru RealityMIX.cz (dále jen „Server“) dostupného na internetové adrese (URL) https://www.realitymix.cz, který provozuje společnost DALTEN media s.r.o., se sídlem Na Harfě 916/9a, Praha 9, 190 00, IČO: 271 35 306 (dále jen „Správce“) jako provozovateli tohoto Serveru uděluje svůj výslovný souhlas v souladu s ustanovením § 5 zákona č. 101/2000 Sb. O ochraně osobních údajů a o změně některých zákonů, v platném znění (dále jen „zákon o ochraně osobních údajů“), se zpracováním uživatelem poskytnutých osobních údajů a dalších dat.
Uživatel poskytuje Správci osobní údaje v rozsahu: jméno, příjmení, e-mailová adresa, telefonický kontakt a další data, a to z důvodu projeveného zájmu o nemovitost, kde prostřednictvím služby Serveru Správce osloví Uživatel inzerenta uvedeného v detailu
nemovitosti - Reality 11 (IČ 29132886) se zájmem o jeho služby. Tato společnost je součástí seskupení/sítě/franšízového modelu realitních kanceláří, jejich seznam můžete zobrazit kliknutím na tento odkaz.
Dumrealit.cz (IČ 00537861) , HOME 4 PEOPLE (IČ 29132886) , Reality 11 (IČ 29132886) , REAL ESTATE CZECH REPUBLIC a.s. (IČ 29132886) , Národní Realitní Holding a.s. (IČ 02918897)
Uživatel tyto osobní údaje poskytuje dobrovolně a bere na vědomí, že součástí služeb Správce, které Správce Uživateli poskytuje, je vyhledání všech Uživateli vyhovujících (dle parametrů - cena, typ nemovitosti, lokalita atd.) nemovitostí. Správce za tímto účelem provozuje aplikace Hlídací pes a newsletter. Tyto služby je možné z každého zaslaného emailu odhlásit. Souhlas se zpracováním osobních údajů Uživatel poskytuje Správci na dobu neurčitou s tím, že svůj udělený souhlas může Uživatel kdykoliv na drese správce info@realitymix.cz odvolat. Správce garantuje Uživateli i další práva uvedené v ustanovení §11 a §21 zákoba č. 101/200 Sb. Ve znění pozdějších předpisů.
Více informací o zpracování údajů získáte zde (realitymix.cz/zasady-ochrany-osobnich-udaju)