Exkluzivně nabízíme ke koupi bytovou jednotku v oblíbené městské části Praha – Kamýk, jen pár kroků od autobusové zastávky. Lokalita je strategicky velmi dobře situovaná a ideální zejména pro rodinné bydlení. Nedaleko je plánována nová stanice metra D. V bezprostředním okolí se nachází několik mateřských a základních škol, včetně prestižní Britské mezinárodní školy. Milovníci přírody ocení blízkost Lhoteckého lesa a přírodního parku Modřanská rokle, které jsou ideálním místem pro procházky, sport i relaxaci.
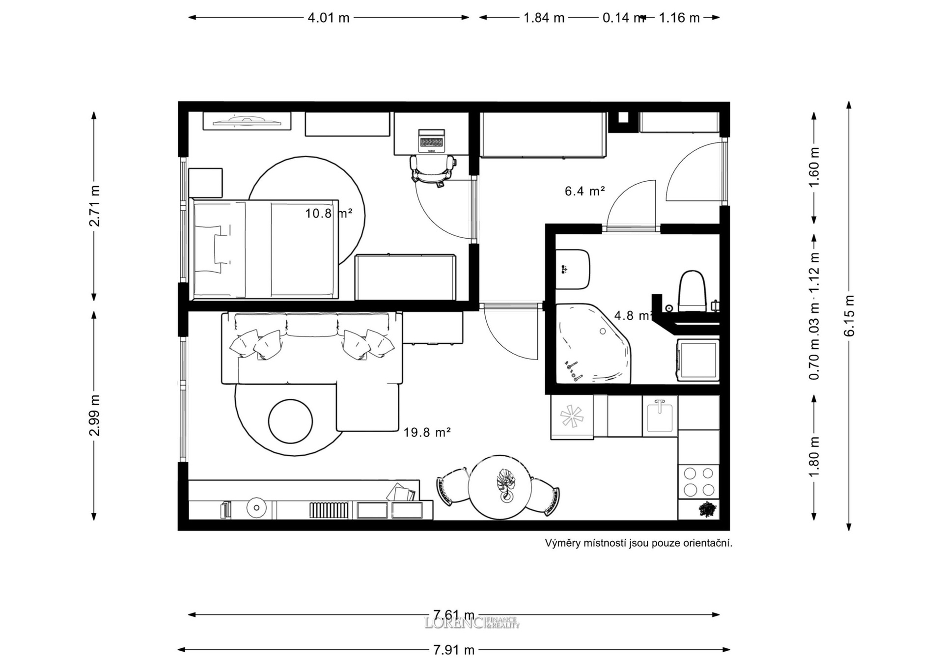
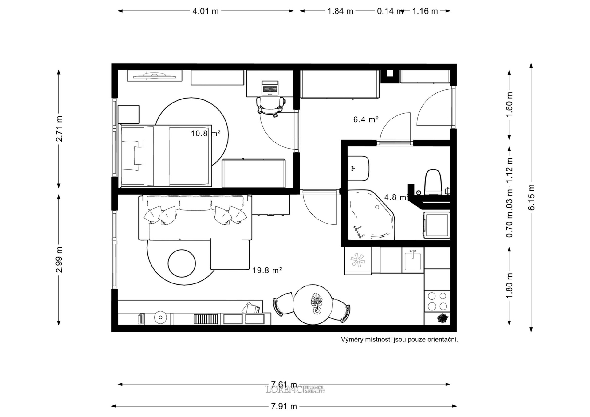
Byt má dispozici 2+kk a užitnou plochu 43 m². Nachází se v 2. nadzemním podlaží udržovaného bytového domu s výtahem.
Dispozice bytu je velmi praktická – vstupní prostorná předsíň (6,4 m²) vybavená vestavěnými skříněmi. Po levé straně se nachází samostatná koupelna s toaletou (4,8 m²), která prošla rekonstrukcí.
Dominantou bytu je světlý obývací pokoj s kuchyňským koutem o velikosti 19,8 m², orientovaný tak, aby poskytoval dostatek denního světla. Naproti vstupu do bytu se nachází samostatný pokoj o velikosti 10,8 m², ideální jako ložnice nebo dětský pokoj.
Měsíční poplatky spojené s užíváním bytu činí 6.721 Kč, z toho fond oprav 1.300 Kč. Elektřina přibližně 1.000 Kč.
Prohlídky jsou možné kdykoliv po předchozí domluvě.
Uvedená kupní cena je stanovena včetně provize a kompletního právního servisu.
Pomocí naší hypoteční kalkulačky si můžete udělat orientační představu o výši měsíčních splátek hypotéky. O vše ostatní se pak postaráme my ve spolupráci s našimi obchodními partnery.
26 519 Kč
* Odhadovaná měsíční splátka vychází z výše úvěru Kč s pevnou úrokovou sazbou % po celou dobu trvání úvěru.
Prodáváte nemovitost a potřebujete zjistit její reálnou hodnotu?
Uživatel serveru RealityMIX.cz (dále jen „Server“) dostupného na internetové adrese (URL) https://www.realitymix.cz, který provozuje společnost DALTEN media s.r.o., se sídlem Na Harfě 916/9a, Praha 9, 190 00, IČO: 271 35 306 (dále jen „Správce“) jako provozovateli tohoto Serveru uděluje svůj výslovný souhlas v souladu s ustanovením § 5 zákona č. 101/2000 Sb. O ochraně osobních údajů a o změně některých zákonů, v platném znění (dále jen „zákon o ochraně osobních údajů“), se zpracováním uživatelem poskytnutých osobních údajů a dalších dat.
Uživatel poskytuje Správci osobní údaje v rozsahu: jméno, příjmení, e-mailová adresa, telefonický kontakt a další data, a to z důvodu projeveného zájmu o nemovitost, kde prostřednictvím služby Serveru Správce osloví Uživatel inzerenta uvedeného v detailu
nemovitosti - Finance & Reality Lorenc (IČ 06366201) se zájmem o jeho služby.
Uživatel tyto osobní údaje poskytuje dobrovolně a bere na vědomí, že součástí služeb Správce, které Správce Uživateli poskytuje, je vyhledání všech Uživateli vyhovujících (dle parametrů - cena, typ nemovitosti, lokalita atd.) nemovitostí. Správce za tímto účelem provozuje aplikace Hlídací pes a newsletter. Tyto služby je možné z každého zaslaného emailu odhlásit. Souhlas se zpracováním osobních údajů Uživatel poskytuje Správci na dobu neurčitou s tím, že svůj udělený souhlas může Uživatel kdykoliv na drese správce info@realitymix.cz odvolat. Správce garantuje Uživateli i další práva uvedené v ustanovení §11 a §21 zákoba č. 101/200 Sb. Ve znění pozdějších předpisů.
Více informací o zpracování údajů získáte zde (realitymix.cz/zasady-ochrany-osobnich-udaju)