© 1999–2026 DALTEN media s.r.o.
Drimlova, Praha 13, Stodůlky
5 999 000 KčDrimlova, Praha 13, Stodůlky
| Cena: | 5 999 000 Kč |
| Hypotéka: | od 24 288 Kč/měsíc |
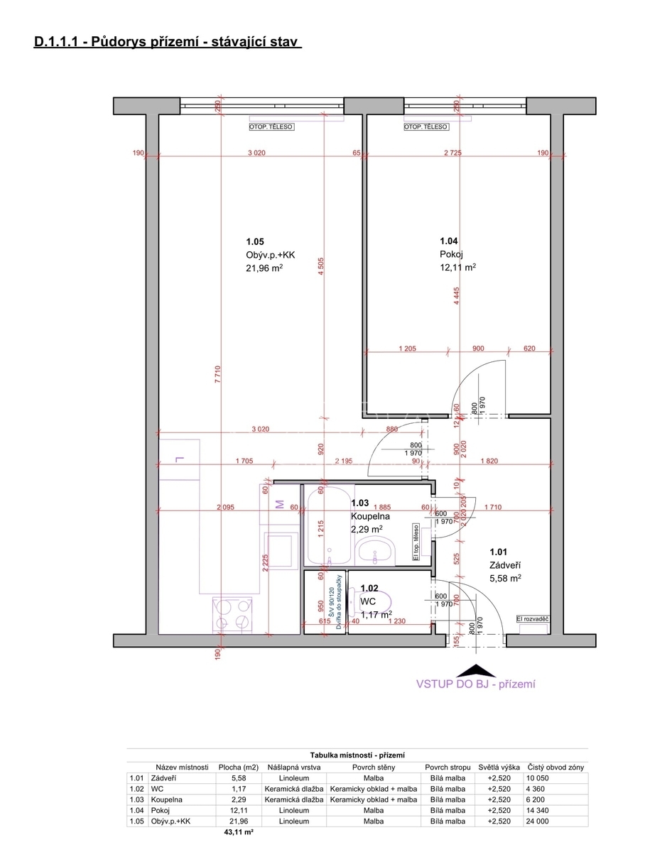
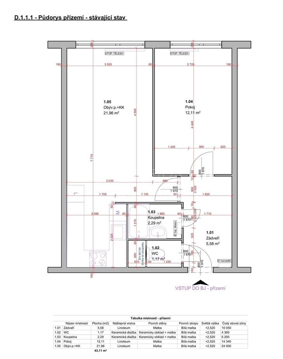
| Dispozice/podlahová plocha: | 2+kk/46 m² |
| Číslo zakázky: | REALITYMIX-18232 |
Pomocí naší hypoteční kalkulačky si můžete udělat orientační představu o výši měsíčních splátek hypotéky. O vše ostatní se pak postaráme my ve spolupráci s našimi obchodními partnery.