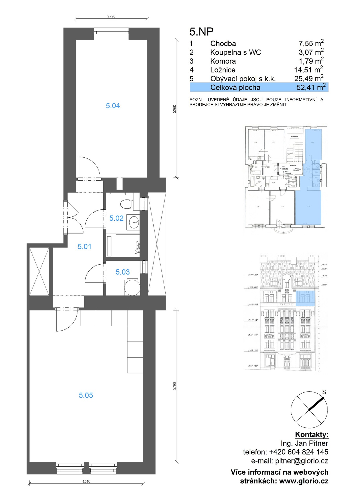
Nabízíme Vám ke koupi slunný byt v osobním vlastnictví v 5.NP s výtahem. Byt se nachází v krásném historickém domě v žádané lokalitě Praha – Nusle nedaleko parku Jezerka. Dispozičně je řešen jako 2+kk o celkové ploše 52,41m2 – obývací pokoj, ložnice, chodba, koupelna s WC a praktická komora přímo v bytě.
Byt prošel v roce 2019 kompletní nákladnou rekonstrukcí – podlahy, stěny, podhledy, elektroinstalace, interiérové dveře, koupelna, bojler, přímotopy a kuchyňská linka kompletně vybavena spotřebiči. V letošním roce byla vyměněna plovoucí podlaha za novou vinylovou podlahu a proběhla nová celková výmalba. Byt je tedy ideálně připraven k okamžitému nastěhování nebo pronajmutí. Provoz bytu není nijak nákladný – pro 3 člennou rodinu činila záloha na elektřinu 2.300Kč/měsíc (vč. topení a ohřevu teplé vody), zálohy pro SVJ 5.300Kč/měsíc.
Bytový dům je ve velmi dobrém stavu – zateplení fasády do dvora s plastovými okny, opravená historická fasáda do ulice se zdvojenými dřevěná okna do ulice Nuselská, plastová okna do vnitrobloku. Nespornou výhodou bytu je pronajaté parkovací místo přímo u výtahu ve vnitrobloku domu za 2.800Kč/měsíc. Tento pronájem od SVJ je možné po měsíci zrušit nebo prodloužit dle přání nových majitelů. Další parkování je možné v okolních ulicích na parkovacích zónách.
Jedná se o velmi zajímavou kombinace městského bydlení s kompletní vybaveností a výbornou dostupností do centra (zastávka tramvaje je přímo před domem), klidu (5.NP, ložnice s okem do vnitrobloku a nová zdvojená okna do ulice) a možnosti relaxace (park Jezerka, Havlíčkovy sady, Nuselský park). V okolí je veškerá občanská vybavenost, nedaleko zastávka vlaku Praha – Vršovice. Velkým benefitem do budoucnosti bude stanice metra linky D na náměstí Bratří Synků, které je vzdálené pouze 10 min pěšky nebo 1 stanici tramvají.
Vyřízení hypotéky je samozřejmostí. Vřele doporučuji prohlídku.
Pomocí naší hypoteční kalkulačky si můžete udělat orientační představu o výši měsíčních splátek hypotéky. O vše ostatní se pak postaráme my ve spolupráci s našimi obchodními partnery.
38 422 Kč
* Odhadovaná měsíční splátka vychází z výše úvěru Kč s pevnou úrokovou sazbou % po celou dobu trvání úvěru.
Prodáváte nemovitost a potřebujete zjistit její reálnou hodnotu?
Uživatel serveru RealityMIX.cz (dále jen „Server“) dostupného na internetové adrese (URL) https://www.realitymix.cz, který provozuje společnost DALTEN media s.r.o., se sídlem Na Harfě 916/9a, Praha 9, 190 00, IČO: 271 35 306 (dále jen „Správce“) jako provozovateli tohoto Serveru uděluje svůj výslovný souhlas v souladu s ustanovením § 5 zákona č. 101/2000 Sb. O ochraně osobních údajů a o změně některých zákonů, v platném znění (dále jen „zákon o ochraně osobních údajů“), se zpracováním uživatelem poskytnutých osobních údajů a dalších dat.
Uživatel poskytuje Správci osobní údaje v rozsahu: jméno, příjmení, e-mailová adresa, telefonický kontakt a další data, a to z důvodu projeveného zájmu o nemovitost, kde prostřednictvím služby Serveru Správce osloví Uživatel inzerenta uvedeného v detailu
nemovitosti - GLORIO, s.r.o. (IČ 27925510) se zájmem o jeho služby.
Uživatel tyto osobní údaje poskytuje dobrovolně a bere na vědomí, že součástí služeb Správce, které Správce Uživateli poskytuje, je vyhledání všech Uživateli vyhovujících (dle parametrů - cena, typ nemovitosti, lokalita atd.) nemovitostí. Správce za tímto účelem provozuje aplikace Hlídací pes a newsletter. Tyto služby je možné z každého zaslaného emailu odhlásit. Souhlas se zpracováním osobních údajů Uživatel poskytuje Správci na dobu neurčitou s tím, že svůj udělený souhlas může Uživatel kdykoliv na drese správce info@realitymix.cz odvolat. Správce garantuje Uživateli i další práva uvedené v ustanovení §11 a §21 zákoba č. 101/200 Sb. Ve znění pozdějších předpisů.
Více informací o zpracování údajů získáte zde (realitymix.cz/zasady-ochrany-osobnich-udaju)