PRODEJ DVOU BYTŮ 2+kk – PROJEKT PSÁRSKÁ, NOVOSTAVBA (KOLAUDACE 07/2024), PRAHA 4 – MICHLE
Nabízíme k prodeji dva moderní byty v nově dokončeném rezidenčním projektu Psárská, který navazuje na úspěšný developerský záměr v sousedním domě. Jedná se o komorní bytový dům s pouhými 10 jednotkami a výtahem, což zajišťuje klidné a komfortní bydlení. Oba byty je možné dispozičně upravit na 3+kk, a to díky praktickému řešení prostoru.
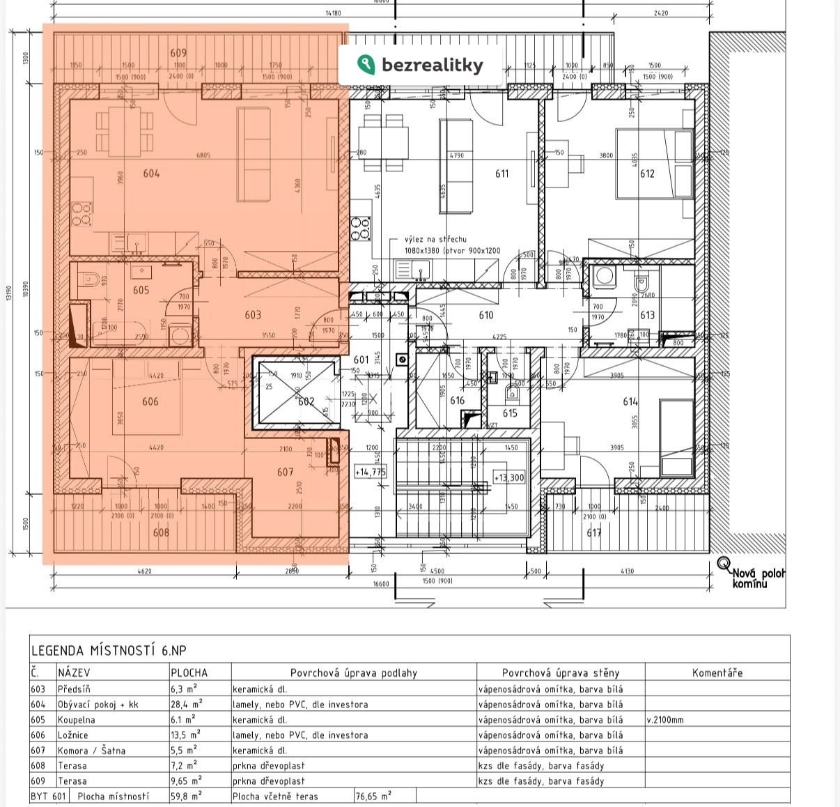
Byt č. 1 – 4. nadzemní podlaží
* dispozice: 2+kk
* podlahová plocha bytu: 65,6 m²
* lodžie 8,7 m²
* celková plocha včetně lodžie: 74,3 m²
* umístění: 4. patro
Byt č. 2 – 5. nadzemní podlaží
* dispozice: 2+kk
* podlahová plocha bytu: 61,5 m²
* dvě lodžie o ploše: 16,85 m²
* celková plocha včetně lodžií: 78,35 m²
* umístění: poslední (5.) patro
Standard a technologie
Každý byt je vybaven moderním systémem rekuperace vzduchu, který zajišťuje čistý vzduch a výraznou úsporu nákladů na vytápění – dle výrobce až 30 000 Kč ročně. Energetickou efektivitu dále zvyšuje vlastní plynová kotelna s kvalitními kotli značky Bosch.
Díky oknům s trojskly, vlastní kotelně, rekuperaci vzduchu a opláštění budovy minerální vatou Weber (16 cm) dosahuje budova energetické náročnosti třídy A+, což zajišťuje nízké provozní náklady a maximální komfort.
⸻
Konstrukce a kvalita provedení
Při výstavbě domu byly použity kvalitní materiály a technologie, které zajišťují vysoký standard bydlení i do budoucna:
* železobetonové stropy s protihlukovou izolací
* vnitřní příčky z AKU cihel (12 cm)
* mezibytové stěny z AKU cihel (24 cm)
* obvodové zdivo (24 cm) se zateplením minerální vatou Weber (16 cm)
⸻
Lokalita – Praha 4, Michle
Michle je ideální lokalitou pro klidné bydlení s výbornou dostupností do centra.
V okolí se nachází Arkády Pankrác a OC DBK s kompletní občanskou vybaveností.
Dopravní dostupnost zajišťují autobusové linky 124, 139 a 150 a stanice metra Kačerov.
V blízkosti se nachází také fitness centrum Balance Club Brumlovka.
Parkování
* venkovní parkovací stání: 300 000 Kč
* nebo rezidenční parkování (modré zóny): cca 1 200 Kč/rok
⸻
Dostupnost
Oba byty jsou momentálně pronajaté, s možností uvolnění do 2 měsíců od podpisu kupní smlouvy.
Projekt Psárská nabízí moderní bydlení v komorním domě s důrazem na kvalitu, energetickou úspornost a klidné prostředí.
V případě zájmu o více informací nebo sjednání prohlídky neváhejte kontaktovat telefonicky nebo emailem. RK prosím nekontaktovat. Tato nemovitost je určena výhradně přímým zájemcům o koupi. Na inzerát můžete také reagovat přímo na webu Bezrealitky.
Pomocí naší hypoteční kalkulačky si můžete udělat orientační představu o výši měsíčních splátek hypotéky. O vše ostatní se pak postaráme my ve spolupráci s našimi obchodními partnery.
43 686 Kč
* Odhadovaná měsíční splátka vychází z výše úvěru Kč s pevnou úrokovou sazbou % po celou dobu trvání úvěru.
Prodáváte nemovitost a potřebujete zjistit její reálnou hodnotu?
* Umístění na mapě je na základě GPS informací dodaných realitní kanceláří.
* Pozice na mapě je pouze orientační.
Souhlas se zpracováním osobních údajů
Uživatel serveru RealityMIX.cz (dále jen „Server“) dostupného na internetové adrese (URL) https://www.realitymix.cz, který provozuje společnost DALTEN media s.r.o., se sídlem Na Harfě 916/9a, Praha 9, 190 00, IČO: 271 35 306 (dále jen „Správce“) jako provozovateli tohoto Serveru uděluje svůj výslovný souhlas v souladu s ustanovením § 5 zákona č. 101/2000 Sb. O ochraně osobních údajů a o změně některých zákonů, v platném znění (dále jen „zákon o ochraně osobních údajů“), se zpracováním uživatelem poskytnutých osobních údajů a dalších dat.
Uživatel poskytuje Správci osobní údaje v rozsahu: jméno, příjmení, e-mailová adresa, telefonický kontakt a další data, a to z důvodu projeveného zájmu o nemovitost, kde prostřednictvím služby Serveru Správce osloví Uživatel inzerenta uvedeného v detailu
nemovitosti - Bezrealitky s.r.o. (IČ 08063168) se zájmem o jeho služby.
Uživatel tyto osobní údaje poskytuje dobrovolně a bere na vědomí, že součástí služeb Správce, které Správce Uživateli poskytuje, je vyhledání všech Uživateli vyhovujících (dle parametrů - cena, typ nemovitosti, lokalita atd.) nemovitostí. Správce za tímto účelem provozuje aplikace Hlídací pes a newsletter. Tyto služby je možné z každého zaslaného emailu odhlásit. Souhlas se zpracováním osobních údajů Uživatel poskytuje Správci na dobu neurčitou s tím, že svůj udělený souhlas může Uživatel kdykoliv na drese správce info@realitymix.cz odvolat. Správce garantuje Uživateli i další práva uvedené v ustanovení §11 a §21 zákoba č. 101/200 Sb. Ve znění pozdějších předpisů.
Více informací o zpracování údajů získáte zde (realitymix.cz/zasady-ochrany-osobnich-udaju)