Prodej prostorného bytu 3+1 (71,5 m²) v původním stavu – ideální příležitost k moderní rekonstrukci
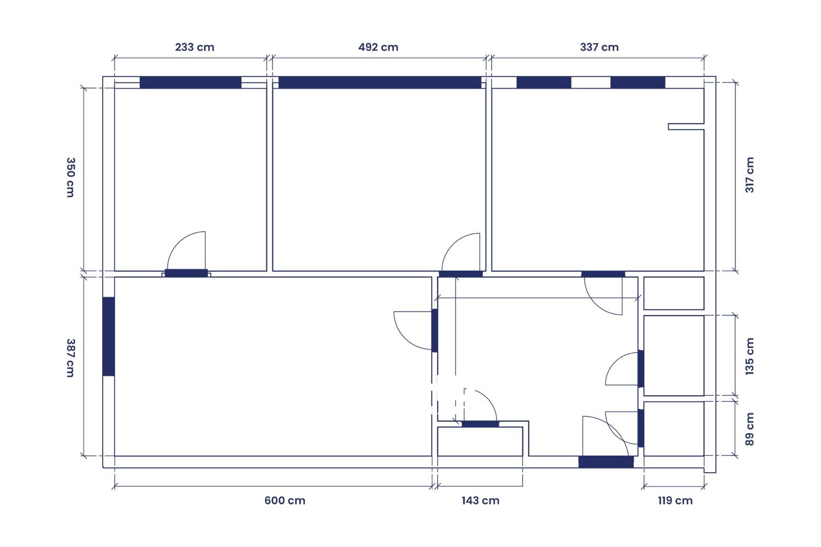
Nabízíme k prodeji světlý a prostorný byt o dispozici 3+1 a podlahové ploše 71,5 m², který se nachází ve 3. nadzemním podlaží zatepleného bytového domu s novou fasádou, plastovými okny a výtahem.
K bytu náleží také sklepní koje.
Byt je v původním, udržovaném stavu, což představuje skvělou příležitost pro ty, kteří si chtějí bydlení upravit podle vlastních představ.
Současně je byt řešen jako 3+1, nicméně pro lepší představu o možnostech prostoru jsme připravili vizualizace, které ukazují, jak by bylo možné byt propojením obývacího pokoje s kuchyní upravit na moderní 3+kk.
V tomto návrhu by na místě současné kuchyně vznikla komfortní a prostorná ložnice.
Díky velkorysé výměře obývacího pokoje (24 m²) se ale nabízí i další varianta – úprava na 4+kk, kdy by vznikly tři samostatné ložnice a prostorný obývací pokoj s kuchyňským koutem. Tento byt tak nabízí neomezené možnosti uspořádání, ať už hledáte praktické rodinné bydlení, nebo prostorný byt s velkým společenským prostorem.
Celý byt působí vzdušně a prosvětleně, s dostatkem denního světla po celý den.
Dům prošel kompletní revitalizací – zateplení, nová fasáda, plastová okna, moderní vstup na čipový systém a nový výtah.
Byt je v družstevním vlastnictví se zcela splacenou anuitou, tedy bez jakýchkoli dalších finančních závazků vůči družstvu.
Měsíční náklady (fond oprav a správa domu): 2 590 Kč.
Lokalita a občanská vybavenost
Byt se nachází na velmi klidné adrese Nad Strouhou, Praha 4 – Braník, v příjemné zeleni s výbornou dopravní dostupností i občanskou vybaveností.
Zastávka MHD U Staré pošty (linky 106, 196, 197, 170, 121) je jen pár minut chůze, odkud se během 10 minut dostanete na metro C – Budějovická nebo Kačerov, případně tramvají na Nádraží Braník s přímým spojením do centra.
Autem jste na Jižní spojce nebo Barrandovském mostě do 3 minut.
V okolí najdete supermarket Albert, lékárnu, poštu, základní i mateřskou školu a několik restaurací a kaváren. Pro aktivní odpočinek je ideální Branické nábřeží, cyklostezka A2 podél Vltavy, nebo oblíbený areál Hamr Braník s tenisovými kurty, fitness centrem a restaurací.
Milovníci přírody ocení i Kunratický les a modřanskou rokli, které jsou v dojezdové vzdálenosti pár minut.
Shrnutí:
• aktuální dispozice: 3+1, možnost úpravy na 3+kk nebo 4+kk
• 71,5 m² + sklepní koje
• 3. NP s výtahem
• dům po kompletní rekonstrukci
• vstup na čipový systém
• družstevní vlastnictví, anuita splacena
• měsíční náklady: 2 590 Kč (fond oprav + správa domu)
• byt v původním stavu – ideální k rekonstrukci
• vizualizace možného řešení dispozic součástí prezentace
• vhodné i pro vícečlennou rodinu díky promyšleným dispozicím.
V případě zájmu mě neváhejte kontaktovat – velmi ráda vás bytem osobně provedu a zodpovím všechny vaše dotazy.
Majitel si vyhrazuje právo vybrat kupujícího podle vlastních kritérií.
Pomocí naší hypoteční kalkulačky si můžete udělat orientační představu o výši měsíčních splátek hypotéky. O vše ostatní se pak postaráme my ve spolupráci s našimi obchodními partnery.
33 564 Kč
* Odhadovaná měsíční splátka vychází z výše úvěru Kč s pevnou úrokovou sazbou % po celou dobu trvání úvěru.
Prodáváte nemovitost a potřebujete zjistit její reálnou hodnotu?
Uživatel serveru RealityMIX.cz (dále jen „Server“) dostupného na internetové adrese (URL) https://www.realitymix.cz, který provozuje společnost DALTEN media s.r.o., se sídlem Na Harfě 916/9a, Praha 9, 190 00, IČO: 271 35 306 (dále jen „Správce“) jako provozovateli tohoto Serveru uděluje svůj výslovný souhlas v souladu s ustanovením § 5 zákona č. 101/2000 Sb. O ochraně osobních údajů a o změně některých zákonů, v platném znění (dále jen „zákon o ochraně osobních údajů“), se zpracováním uživatelem poskytnutých osobních údajů a dalších dat.
Uživatel poskytuje Správci osobní údaje v rozsahu: jméno, příjmení, e-mailová adresa, telefonický kontakt a další data, a to z důvodu projeveného zájmu o nemovitost, kde prostřednictvím služby Serveru Správce osloví Uživatel inzerenta uvedeného v detailu
nemovitosti - Středočeské Bydlení s.r.o. (IČ 08273049) se zájmem o jeho služby.
Uživatel tyto osobní údaje poskytuje dobrovolně a bere na vědomí, že součástí služeb Správce, které Správce Uživateli poskytuje, je vyhledání všech Uživateli vyhovujících (dle parametrů - cena, typ nemovitosti, lokalita atd.) nemovitostí. Správce za tímto účelem provozuje aplikace Hlídací pes a newsletter. Tyto služby je možné z každého zaslaného emailu odhlásit. Souhlas se zpracováním osobních údajů Uživatel poskytuje Správci na dobu neurčitou s tím, že svůj udělený souhlas může Uživatel kdykoliv na drese správce info@realitymix.cz odvolat. Správce garantuje Uživateli i další práva uvedené v ustanovení §11 a §21 zákoba č. 101/200 Sb. Ve znění pozdějších předpisů.
Více informací o zpracování údajů získáte zde (realitymix.cz/zasady-ochrany-osobnich-udaju)