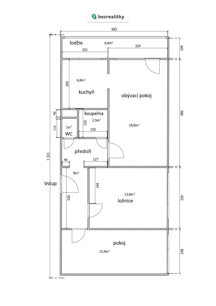
Exkluzivní nabídka moderně zrekonstruovaného 3+1 73 m² v atraktivní rezidenční lokalitě jen pár minut chůze od metra Strašnická.
Byt má 66 m² podlahové plochy, 6,6 m² lodžii, 2 m² sklep. Díky své poloze v 7. patře nabízí úchvatný výhled na Prahu, díky jižní i západní orientaci.
Dům má devět pater, dva výtahy a je po kompletní revitalizaci, byla dělána fasáda a jsou zde plastová okna, právě dodělané chodby a vstupy do budovy.
Byt má nové rozvody vody a elektřiny, zasklená lodžie, nové bezpečnostní vchodové dveře, závěsné WC.
Prostor koupelny je připravený na vanu, nebo sprchový kout a kuchyň je taktéž připravena na vybavení podle vkusu nového majitele.
Pozor!!! Vyberete si koupelnu a kuchyň jakou si přejete a instalaci máte od nás zdarma!!!
Podlahy v obytných místnostech jsou z voděodolného premium lamina.
Parkování je možné přímo před domem, jsou zde modré zóny.
Jedná se o žádanou lokalitu s kompletní občanskou vybaveností, v docházkové vzdálenosti jsou školy, obchody, restaurace, kavárny, hřiště, park Gutovka, lanové centrum, skatepark, minigolf, cyklostezky apod. Výborná dostupnost do centra, zastávka metra Strašnická je cca 5 minut chůze, zastávka tramvaje pak jen 30 sekund od domu. Atraktivní poloha a dobrá dostupnost z něj dělají i skvělou investiční příležitost.
Osobní vlastnictví s možností financovat hypotečním úvěrem. Ukazatel energetické náročnosti: C Tato nemovitost je určena výhradně přímým zájemcům o koupi. Na inzerát můžete také reagovat přímo na webu Bezrealitky: https://www.bezrealitky.cz/nemovitosti-byty-domy/973546-nabidka-prodej-bytu-prubezna-praha
Pomocí naší hypoteční kalkulačky si můžete udělat orientační představu o výši měsíčních splátek hypotéky. O vše ostatní se pak postaráme my ve spolupráci s našimi obchodními partnery.
38 410 Kč
* Odhadovaná měsíční splátka vychází z výše úvěru Kč s pevnou úrokovou sazbou % po celou dobu trvání úvěru.
Prodáváte nemovitost a potřebujete zjistit její reálnou hodnotu?
* Umístění na mapě je na základě GPS informací dodaných realitní kanceláří.
* Pozice na mapě je pouze orientační.
Souhlas se zpracováním osobních údajů
Uživatel serveru RealityMIX.cz (dále jen „Server“) dostupného na internetové adrese (URL) https://www.realitymix.cz, který provozuje společnost DALTEN media s.r.o., se sídlem Na Harfě 916/9a, Praha 9, 190 00, IČO: 271 35 306 (dále jen „Správce“) jako provozovateli tohoto Serveru uděluje svůj výslovný souhlas v souladu s ustanovením § 5 zákona č. 101/2000 Sb. O ochraně osobních údajů a o změně některých zákonů, v platném znění (dále jen „zákon o ochraně osobních údajů“), se zpracováním uživatelem poskytnutých osobních údajů a dalších dat.
Uživatel poskytuje Správci osobní údaje v rozsahu: jméno, příjmení, e-mailová adresa, telefonický kontakt a další data, a to z důvodu projeveného zájmu o nemovitost, kde prostřednictvím služby Serveru Správce osloví Uživatel inzerenta uvedeného v detailu
nemovitosti - Bezrealitky s.r.o. (IČ 08063168) se zájmem o jeho služby.
Uživatel tyto osobní údaje poskytuje dobrovolně a bere na vědomí, že součástí služeb Správce, které Správce Uživateli poskytuje, je vyhledání všech Uživateli vyhovujících (dle parametrů - cena, typ nemovitosti, lokalita atd.) nemovitostí. Správce za tímto účelem provozuje aplikace Hlídací pes a newsletter. Tyto služby je možné z každého zaslaného emailu odhlásit. Souhlas se zpracováním osobních údajů Uživatel poskytuje Správci na dobu neurčitou s tím, že svůj udělený souhlas může Uživatel kdykoliv na drese správce info@realitymix.cz odvolat. Správce garantuje Uživateli i další práva uvedené v ustanovení §11 a §21 zákoba č. 101/200 Sb. Ve znění pozdějších předpisů.
Více informací o zpracování údajů získáte zde (realitymix.cz/zasady-ochrany-osobnich-udaju)