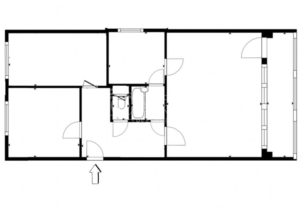
Byt 3+1 o velikosti 75 m² ve 3. patře revitalizovaného panelového domu nabízí velkorysý prostor a naprostou volnost při úpravách.
V bytě nenajdete žádné nosné příčky – všechny jsou z lehké konstrukce. Díky tomu můžete celou dispozici libovolně upravit, ať už chcete propojit kuchyň s obývákem, vytvořit další pokoj nebo zvětšit koupelnu.
Součástí bytu je lodžie o rozloze 6,96 m² přímo u obývacího pokoje a samostatná komora, která se nachází naproti vstupu do bytu – ideální na úložné prostory, sportovní vybavení nebo veškerých věcí, o které nechcete zakopávat v bytě.
Dům prochází postupnou revitalizací – má novou střechu, zateplení, nová okna, výtah a elektroinstalaci.
Lokalita:
Byt se nachází na Praze 4, ul. Novodvorská. Tato lokalita potěší především rodiny s dětmi - v docházkové vzdálenosti je koupaliště Lhotka, mateřská i základní škola, gymnázium, obchody (Albert, Penny) i zastávky MHD.
Další informace:
- Družstvo má naspořeno cca 820.000 Kč.
- Převod do OV se zatím neuvažuje, možnost financovat úvěrem pouze se zástavou jiné nemovitosti.
- Byt je ihned k dispozici, vyklizený a připravený na Vaší rekonstrukci.
Více informací naleznete ve videu a webové stránce nemovitosti.
Pomocí naší hypoteční kalkulačky si můžete udělat orientační představu o výši měsíčních splátek hypotéky. O vše ostatní se pak postaráme my ve spolupráci s našimi obchodními partnery.
28 139 Kč
* Odhadovaná měsíční splátka vychází z výše úvěru Kč s pevnou úrokovou sazbou % po celou dobu trvání úvěru.
Prodáváte nemovitost a potřebujete zjistit její reálnou hodnotu?
Uživatel serveru RealityMIX.cz (dále jen „Server“) dostupného na internetové adrese (URL) https://www.realitymix.cz, který provozuje společnost DALTEN media s.r.o., se sídlem Na Harfě 916/9a, Praha 9, 190 00, IČO: 271 35 306 (dále jen „Správce“) jako provozovateli tohoto Serveru uděluje svůj výslovný souhlas v souladu s ustanovením § 5 zákona č. 101/2000 Sb. O ochraně osobních údajů a o změně některých zákonů, v platném znění (dále jen „zákon o ochraně osobních údajů“), se zpracováním uživatelem poskytnutých osobních údajů a dalších dat.
Uživatel poskytuje Správci osobní údaje v rozsahu: jméno, příjmení, e-mailová adresa, telefonický kontakt a další data, a to z důvodu projeveného zájmu o nemovitost, kde prostřednictvím služby Serveru Správce osloví Uživatel inzerenta uvedeného v detailu
nemovitosti - QARA s.r.o. (IČ 01740113) se zájmem o jeho služby. Tato společnost je součástí seskupení/sítě/franšízového modelu realitních kanceláří, jejich seznam můžete zobrazit kliknutím na tento odkaz.
QARA s.r.o. Ostrava (IČ 01740113) , QARA s.r.o. Brno (IČ 01740113) , QARA s.r.o. (IČ 01740113)
Uživatel tyto osobní údaje poskytuje dobrovolně a bere na vědomí, že součástí služeb Správce, které Správce Uživateli poskytuje, je vyhledání všech Uživateli vyhovujících (dle parametrů - cena, typ nemovitosti, lokalita atd.) nemovitostí. Správce za tímto účelem provozuje aplikace Hlídací pes a newsletter. Tyto služby je možné z každého zaslaného emailu odhlásit. Souhlas se zpracováním osobních údajů Uživatel poskytuje Správci na dobu neurčitou s tím, že svůj udělený souhlas může Uživatel kdykoliv na drese správce info@realitymix.cz odvolat. Správce garantuje Uživateli i další práva uvedené v ustanovení §11 a §21 zákoba č. 101/200 Sb. Ve znění pozdějších předpisů.
Více informací o zpracování údajů získáte zde (realitymix.cz/zasady-ochrany-osobnich-udaju)