Jako přímý majitel Vám nabízím světlý a prostorný byt pro celou rodinu 3+1 (76 m²) včetně lodžie, nedaleko metra na Pražském Chodově
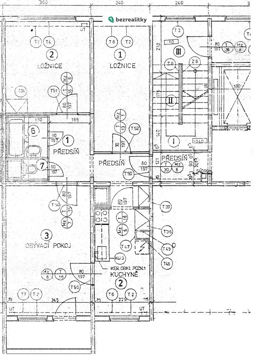
Dispozice bytu:
Byt po částečné rekonstrukci zděná koupelna a záchod, v pokojích plovoucí podlahy a elektroinstalace ve zdi. Předsíň a kuchyň v původním stavu. Byt je umístěný ve 3. NP (2. patro) perfektně udržovaného domu. K bytu přináleží i kóje pro skladování větších předmětů.
Dispozice domu:
Dům je zateplen, energetická třída B, plastová okna opravená střecha, moderní výtahy, rekonstruované interiéry,
Lokalita:
Umístění domu na Praze-Chodov spojuje klid s výbornou dostupností, 11 minut chůze na metro C – Chodov a do OC Westfield, Dále školy a školky obchody v bezprostřední blízkosti a také plavecký bazén, dále poliklinika. Blízkost Kunratického lesa nabízí aktivní odpočinek.
Typ vlastnictví a cena :
Družstevní (anuita plně splacena, převod do OV zatím nikoliv, později), cena 8.250.000,-Kč
Kontakt pro domluvení prohlídky: Tato nemovitost je určena výhradně přímým zájemcům o koupi. Na inzerát můžete také reagovat přímo na webu Bezrealitky.
Pomocí naší hypoteční kalkulačky si můžete udělat orientační představu o výši měsíčních splátek hypotéky. O vše ostatní se pak postaráme my ve spolupráci s našimi obchodními partnery.
33 402 Kč
* Odhadovaná měsíční splátka vychází z výše úvěru Kč s pevnou úrokovou sazbou % po celou dobu trvání úvěru.
Prodáváte nemovitost a potřebujete zjistit její reálnou hodnotu?
* Umístění na mapě je na základě GPS informací dodaných realitní kanceláří.
* Pozice na mapě je pouze orientační.
Souhlas se zpracováním osobních údajů
Uživatel serveru RealityMIX.cz (dále jen „Server“) dostupného na internetové adrese (URL) https://www.realitymix.cz, který provozuje společnost DALTEN media s.r.o., se sídlem Na Harfě 916/9a, Praha 9, 190 00, IČO: 271 35 306 (dále jen „Správce“) jako provozovateli tohoto Serveru uděluje svůj výslovný souhlas v souladu s ustanovením § 5 zákona č. 101/2000 Sb. O ochraně osobních údajů a o změně některých zákonů, v platném znění (dále jen „zákon o ochraně osobních údajů“), se zpracováním uživatelem poskytnutých osobních údajů a dalších dat.
Uživatel poskytuje Správci osobní údaje v rozsahu: jméno, příjmení, e-mailová adresa, telefonický kontakt a další data, a to z důvodu projeveného zájmu o nemovitost, kde prostřednictvím služby Serveru Správce osloví Uživatel inzerenta uvedeného v detailu
nemovitosti - Bezrealitky s.r.o. (IČ 08063168) se zájmem o jeho služby.
Uživatel tyto osobní údaje poskytuje dobrovolně a bere na vědomí, že součástí služeb Správce, které Správce Uživateli poskytuje, je vyhledání všech Uživateli vyhovujících (dle parametrů - cena, typ nemovitosti, lokalita atd.) nemovitostí. Správce za tímto účelem provozuje aplikace Hlídací pes a newsletter. Tyto služby je možné z každého zaslaného emailu odhlásit. Souhlas se zpracováním osobních údajů Uživatel poskytuje Správci na dobu neurčitou s tím, že svůj udělený souhlas může Uživatel kdykoliv na drese správce info@realitymix.cz odvolat. Správce garantuje Uživateli i další práva uvedené v ustanovení §11 a §21 zákoba č. 101/200 Sb. Ve znění pozdějších předpisů.
Více informací o zpracování údajů získáte zde (realitymix.cz/zasady-ochrany-osobnich-udaju)