Představte si místo, kde ráno otevřete okno a místo dalšího domu vidíte zeleň. Kde děti vyrůstají v klidném prostředí, ale vy to máte všude blízko.
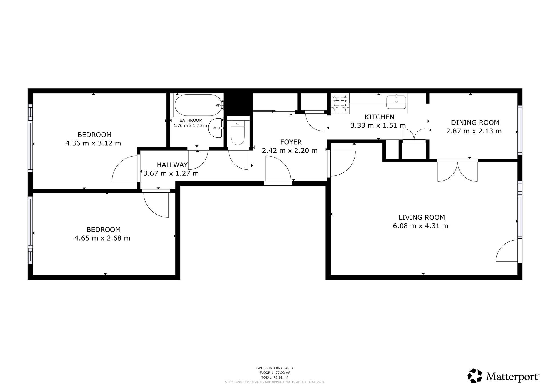
Tento byt o dispozici 3+1 a výměře 81 m² se nachází v 8. nadzemním podlaží panelového domu v ulici Toruňská. Díky vyššímu patru působí světlým a otevřeným dojmem, nabízí soukromí a příjemný odstup od ruchu města.
Z ložnice a dětského pokoje je krásný výhled do zeleně lesoparku – prostor, světlo a pocit volnosti. Zasklená lodžie po celé šířce bytu je dalším nadstandardním benefitem
Byt má zděné jádro a je připraven k finální rekonstrukci. To znamená jediné – můžete vytvořit domov přesně podle potřeb své rodiny. Navíc jednoduchou úpravou lze změnit dispozici na 4+1 a získat další pokoj pro druhé dítě nebo pracovnu.
Okolí domu je pro rodinný život ideální:
* školy a školky v docházkové vzdálenosti
* dětská hřiště přímo v okolí
* Lidl a další služby pár minut od domu
* metro C Kobylisy cca 10 minut
* rychlé napojení na D8 do 10 minut
Kombinace zeleně, klidného prostředí a skvělé dopravní dostupnosti dává tomuto bytu to nejdůležitější – potenciál stát se skutečným rodinným domovem na mnoho let.
Velkou výhodou je parkování v bezprostřední blízkosti domu, dostatek zeleně v okolí a několik dětských hřišť, které ocení především rodiny s dětmi.
K této nabídce máme připravenou kompletní dokumentaci, kterou vám rádi představíme ještě před prohlídkou.
Navíc se můžete projít bytem pomocí virtuální prohlídky z pohodlí vašeho domova.
Pokud hledáte prostor s potenciálem, přijďte se podívat osobně.
Pomocí naší hypoteční kalkulačky si můžete udělat orientační představu o výši měsíčních splátek hypotéky. O vše ostatní se pak postaráme my ve spolupráci s našimi obchodními partnery.
38 422 Kč
* Odhadovaná měsíční splátka vychází z výše úvěru Kč s pevnou úrokovou sazbou % po celou dobu trvání úvěru.
Prodáváte nemovitost a potřebujete zjistit její reálnou hodnotu?
Uživatel serveru RealityMIX.cz (dále jen „Server“) dostupného na internetové adrese (URL) https://www.realitymix.cz, který provozuje společnost DALTEN media s.r.o., se sídlem Na Harfě 916/9a, Praha 9, 190 00, IČO: 271 35 306 (dále jen „Správce“) jako provozovateli tohoto Serveru uděluje svůj výslovný souhlas v souladu s ustanovením § 5 zákona č. 101/2000 Sb. O ochraně osobních údajů a o změně některých zákonů, v platném znění (dále jen „zákon o ochraně osobních údajů“), se zpracováním uživatelem poskytnutých osobních údajů a dalších dat.
Uživatel poskytuje Správci osobní údaje v rozsahu: jméno, příjmení, e-mailová adresa, telefonický kontakt a další data, a to z důvodu projeveného zájmu o nemovitost, kde prostřednictvím služby Serveru Správce osloví Uživatel inzerenta uvedeného v detailu
nemovitosti - Prosperity Living s.r.o. (IČ 23446731) se zájmem o jeho služby. Tato společnost je součástí seskupení/sítě/franšízového modelu realitních kanceláří, jejich seznam můžete zobrazit kliknutím na tento odkaz.
Prosperity Living s.r.o. (IČ 23446731) , Prosperity Financial Services a.s. (IČ 02745836)
Uživatel tyto osobní údaje poskytuje dobrovolně a bere na vědomí, že součástí služeb Správce, které Správce Uživateli poskytuje, je vyhledání všech Uživateli vyhovujících (dle parametrů - cena, typ nemovitosti, lokalita atd.) nemovitostí. Správce za tímto účelem provozuje aplikace Hlídací pes a newsletter. Tyto služby je možné z každého zaslaného emailu odhlásit. Souhlas se zpracováním osobních údajů Uživatel poskytuje Správci na dobu neurčitou s tím, že svůj udělený souhlas může Uživatel kdykoliv na drese správce info@realitymix.cz odvolat. Správce garantuje Uživateli i další práva uvedené v ustanovení §11 a §21 zákoba č. 101/200 Sb. Ve znění pozdějších předpisů.
Více informací o zpracování údajů získáte zde (realitymix.cz/zasady-ochrany-osobnich-udaju)