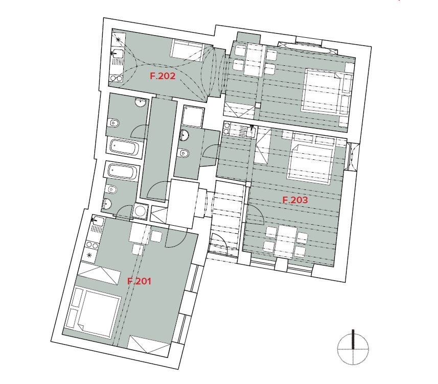
Nabízíme k prodeji unikátní bytovou jednotku situovanou v historickém centru Prahy, pouhých 80 metrů od Karlova mostu. Tato jednotka s celkovou rozlohou 108,6 m², umístěná ve druhém patře pavlačového domu, nabízí flexibilní využití: momentálně je rozdělena na tři samostatné ubytovací jednotky 1+kk s příjemnou společnou chodbou. Každá z těchto jednotek je kompletně vybavena vlastním kuchyňským koutem, základním nábytkem a moderní koupelnou.
K dispozici je nově vydané stavební povolení na změnu uspořádání do tří samostatných jednotek, ideální jak pro investici, tak pro případný další prodej. V případě potřeby je možné celou jednotku přestavět na jeden prostorný byt.
Byt se nachází v tichém vnitrobloku, daleko od hluku ulice, a je součástí památkově chráněného domu, který je ve velmi dobrém stavu, avšak bez výtahu.
K nemovitosti náleží také platná nájemní smlouva s měsíčním výnosem 61.500 Kč, platná do roku 2025.
Cena 23.780.000 Kč zahrnuje veškerý právní servis. Prohlídky jsou možné dle individuální domluvy.
Tato nabídka představuje výjimečnou příležitost pro ty, kdo hledají bydlení nebo investici na jedinečném místě v srdci Prahy, na Královské cestě pod Pražským hradem.
Pomocí naší hypoteční kalkulačky si můžete udělat orientační představu o výši měsíčních splátek hypotéky. O vše ostatní se pak postaráme my ve spolupráci s našimi obchodními partnery.
96 279 Kč
* Odhadovaná měsíční splátka vychází z výše úvěru Kč s pevnou úrokovou sazbou % po celou dobu trvání úvěru.
Prodáváte nemovitost a potřebujete zjistit její reálnou hodnotu?
Uživatel serveru RealityMIX.cz (dále jen „Server“) dostupného na internetové adrese (URL) https://www.realitymix.cz, který provozuje společnost DALTEN media s.r.o., se sídlem Na Harfě 916/9a, Praha 9, 190 00, IČO: 271 35 306 (dále jen „Správce“) jako provozovateli tohoto Serveru uděluje svůj výslovný souhlas v souladu s ustanovením § 5 zákona č. 101/2000 Sb. O ochraně osobních údajů a o změně některých zákonů, v platném znění (dále jen „zákon o ochraně osobních údajů“), se zpracováním uživatelem poskytnutých osobních údajů a dalších dat.
Uživatel poskytuje Správci osobní údaje v rozsahu: jméno, příjmení, e-mailová adresa, telefonický kontakt a další data, a to z důvodu projeveného zájmu o nemovitost, kde prostřednictvím služby Serveru Správce osloví Uživatel inzerenta uvedeného v detailu
nemovitosti - CREDITAS Real Estate Management s.r.o. (IČ 06593739) se zájmem o jeho služby.
Uživatel tyto osobní údaje poskytuje dobrovolně a bere na vědomí, že součástí služeb Správce, které Správce Uživateli poskytuje, je vyhledání všech Uživateli vyhovujících (dle parametrů - cena, typ nemovitosti, lokalita atd.) nemovitostí. Správce za tímto účelem provozuje aplikace Hlídací pes a newsletter. Tyto služby je možné z každého zaslaného emailu odhlásit. Souhlas se zpracováním osobních údajů Uživatel poskytuje Správci na dobu neurčitou s tím, že svůj udělený souhlas může Uživatel kdykoliv na drese správce info@realitymix.cz odvolat. Správce garantuje Uživateli i další práva uvedené v ustanovení §11 a §21 zákoba č. 101/200 Sb. Ve znění pozdějších předpisů.
Více informací o zpracování údajů získáte zde (realitymix.cz/zasady-ochrany-osobnich-udaju)