Nabízíme k prodeji jedinečný byt o velikosti 109 m² v jedné z nejprestižnějších ulic historického centra Prahy – v Mostecké ulici na Malé Straně, jen pár kroků od Karlova mostu a Čertovky. Lokalita je součástí Královské cesty a dlouhodobě patří mezi nejvyhledávanější adresy v Praze, a to jak pro vlastní bydlení, tak pro investici.
Byt je orientovaný do klidného vnitrobloku a nachází se ve druhém nadzemním podlaží historického pavlačového domu, což zajišťuje příjemné soukromí i přes výjimečnou polohu v samotném centru města.
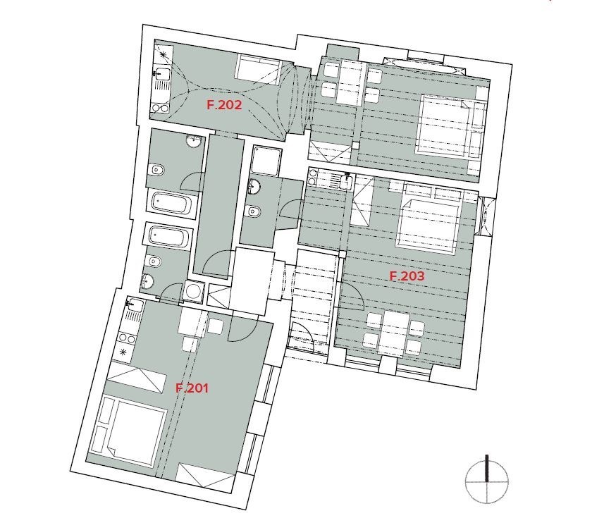
V současné době je jednotka prakticky rozdělena na tři samostatné apartmánové jednotky 1+kk se společnou vstupní chodbou, což umožňuje velmi efektivní pronájem. Dispozici je zároveň možné upravit a vytvořit jeden velkorysý byt vhodný pro komfortní bydlení v historickém centru Prahy.
Atmosféru bytu podtrhují původní trámové konstrukce a zachovaný historický charakter domu, který dodává nemovitosti jedinečný genius loci.
Prohlídky jsou možné po individuální domluvě, neváhejte nás kontaktovat.
Pomocí naší hypoteční kalkulačky si můžete udělat orientační představu o výši měsíčních splátek hypotéky. O vše ostatní se pak postaráme my ve spolupráci s našimi obchodními partnery.
96 279 Kč
* Odhadovaná měsíční splátka vychází z výše úvěru Kč s pevnou úrokovou sazbou % po celou dobu trvání úvěru.
Prodáváte nemovitost a potřebujete zjistit její reálnou hodnotu?
Uživatel serveru RealityMIX.cz (dále jen „Server“) dostupného na internetové adrese (URL) https://www.realitymix.cz, který provozuje společnost DALTEN media s.r.o., se sídlem Na Harfě 916/9a, Praha 9, 190 00, IČO: 271 35 306 (dále jen „Správce“) jako provozovateli tohoto Serveru uděluje svůj výslovný souhlas v souladu s ustanovením § 5 zákona č. 101/2000 Sb. O ochraně osobních údajů a o změně některých zákonů, v platném znění (dále jen „zákon o ochraně osobních údajů“), se zpracováním uživatelem poskytnutých osobních údajů a dalších dat.
Uživatel poskytuje Správci osobní údaje v rozsahu: jméno, příjmení, e-mailová adresa, telefonický kontakt a další data, a to z důvodu projeveného zájmu o nemovitost, kde prostřednictvím služby Serveru Správce osloví Uživatel inzerenta uvedeného v detailu
nemovitosti - CREDITAS Real Estate Management s.r.o. (IČ 06593739) se zájmem o jeho služby.
Uživatel tyto osobní údaje poskytuje dobrovolně a bere na vědomí, že součástí služeb Správce, které Správce Uživateli poskytuje, je vyhledání všech Uživateli vyhovujících (dle parametrů - cena, typ nemovitosti, lokalita atd.) nemovitostí. Správce za tímto účelem provozuje aplikace Hlídací pes a newsletter. Tyto služby je možné z každého zaslaného emailu odhlásit. Souhlas se zpracováním osobních údajů Uživatel poskytuje Správci na dobu neurčitou s tím, že svůj udělený souhlas může Uživatel kdykoliv na drese správce info@realitymix.cz odvolat. Správce garantuje Uživateli i další práva uvedené v ustanovení §11 a §21 zákoba č. 101/200 Sb. Ve znění pozdějších předpisů.
Více informací o zpracování údajů získáte zde (realitymix.cz/zasady-ochrany-osobnich-udaju)