Prodej bytu 3+kk 55 m², Praha - Radotín, pod lesem u zastávek BUS
Hledáte-li úsporný nový praktický menší byt o dispozici 3+kk v malém bytovém domě s parkováním, pod lesem, na místě mimo rušná centra, na hranici CHKO Český kras, avšak v části Prahy s kompletní občanskou vybaveností a výborným dojezdem do centra - tak takové zadání splňují 4 byty v malém BD MAJÁK na konci slepé ulice Na Krupičárně v Praze Radotíně.
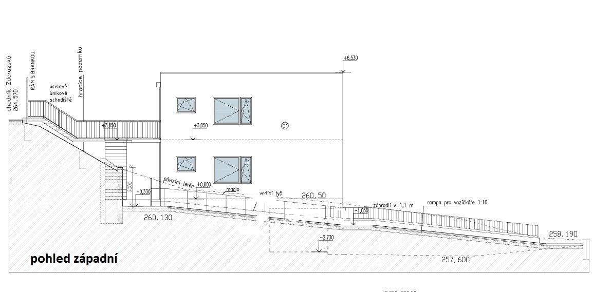
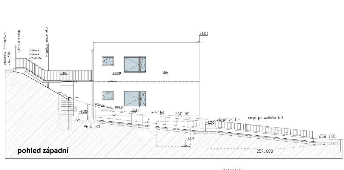
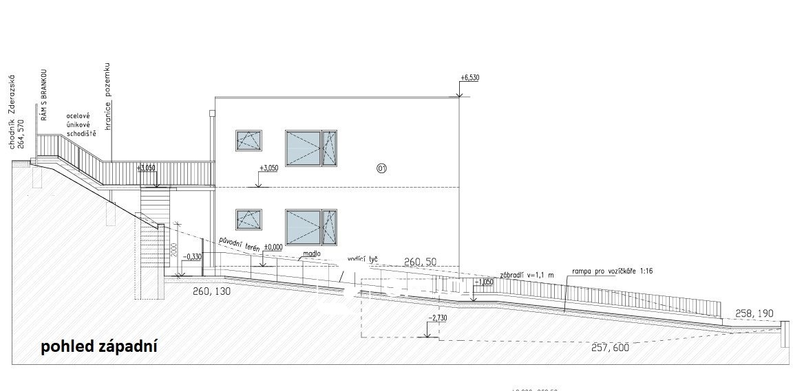
Bytový dům Maják obsahuje pouze 4byty, na úrovni ulice se nachází pro každý byt 2 parkovací stání a úložná komora(sklep) cca 5,5m2. Bezbariérově po rampě se od parkoviště dostaneme do 2bytů v 1.patře domu, každý byt má vlastní vstup zvenku. 2 byty ve druhém patře mají také své vstupy z podesty přístupné po schodišti.
Mezi klady těchto bytů patří jejich úspornost, budova bude pečlivě zateplena, každý byt si bude topit a ohřívat TUV sám vlastním plynovým kondenzačním kotlem, každý byt si zaplatí jen to, co skutečně protopí – provozní náklady budou malé. V malém bytovém domě budou i malé měsíční poplatky na provoz, žádné platby za ostrahu, úklid, výtahy apd…
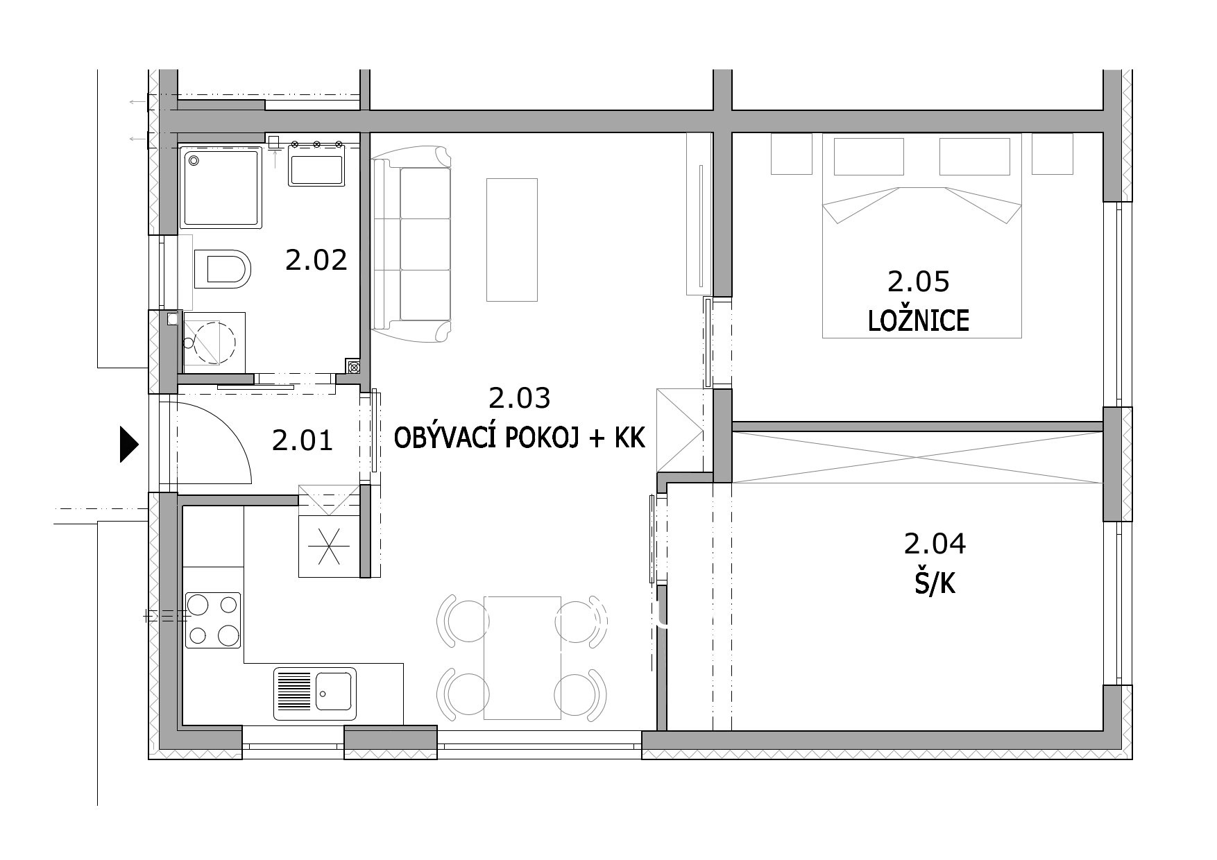
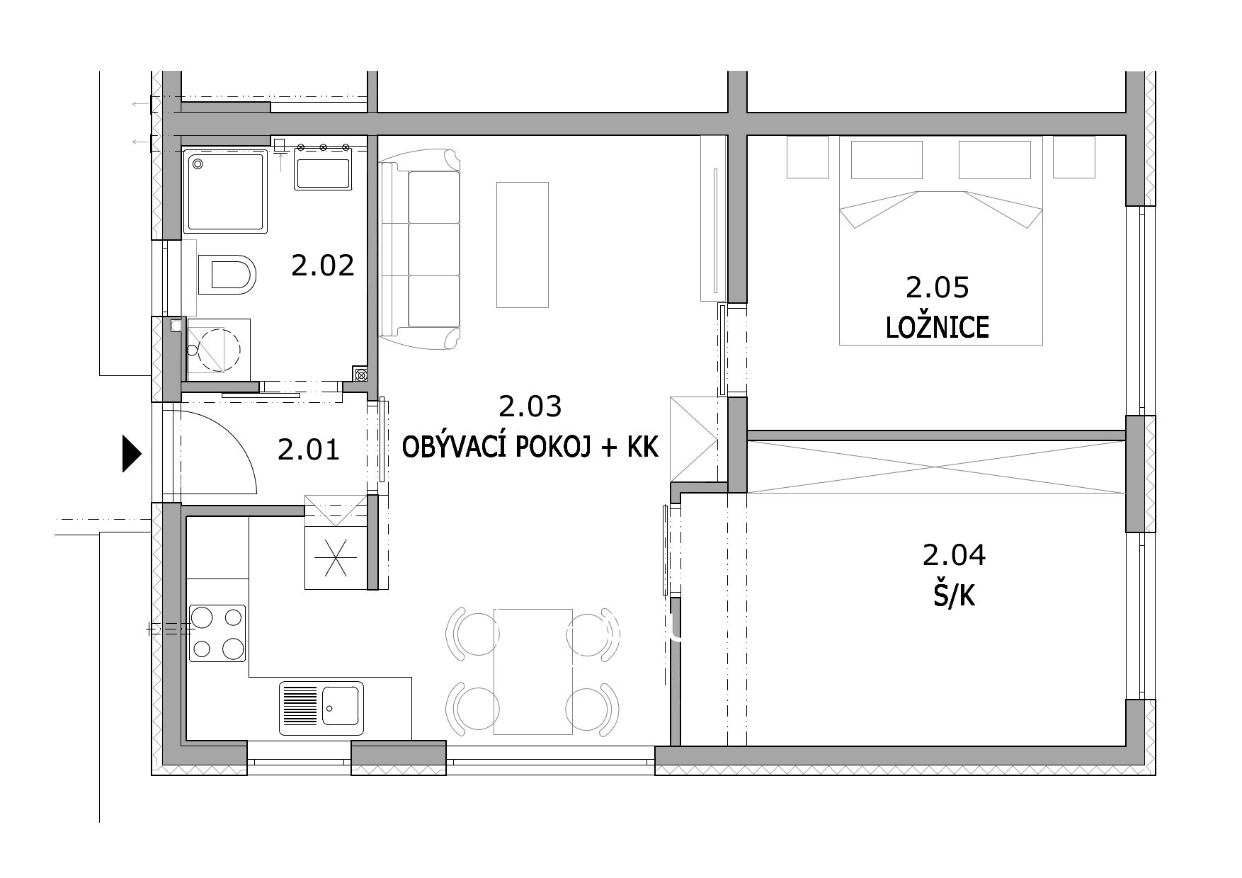
Dispozice bytu je praktická, na vnitřní užitné ploše cca 50m2 se nachází byt 3+kk, který je vhodné zařídit drobným nábytkem typu Ikea a vestavěnými skříněmi na míru třeba až ke stropu - světlá výška místností 2,7m
- vstupní předsíň cca 2m2
- koupelna cca 4m2 (sprchový kout, umyvadlo, závěsné WC, plynový kotel, místo pro pračku)
- obývací pokoj cca 22m2 s kuchyňským koutem 2 okna
- samostatný pokoj cca 12m2 okno na jih
- samostatný pokojíček cca 11,5m2 okno na jih
- uzamykatelná komora cca 5,5m2 u parkovacích míst
Orientace oken je také praktická, pokoje mají okna na jih, obývací pokoj s kk má 2 okna buď na východ nebo na západ, koupelna je s oknem na sever, vstup do bytu od severu. Okna na 3 světové strany zajistí dobrou větratelnost bytu. Předpokládá se, že v obytných místnostech budou instalovány prosklené posuvné dveře, které zajistí lepší využitelnost prostoru.
Velkou výhodou je blízkost přírody, k objevování je toho tu opravdu hodně na výběr - jen kousek od domu jsou vstupy do lesa navazujícího na oblast Přírodní rezervace Klapice, za ní na Národní přírodní památku Černá rokle a Přírodní rezervaci Staňkovka. Dále Přírodní rezervace Radotínské údolí a přírodní rezervace Radotínské skály a další... Lesy lze z Radotína po cestách jít až např. na Karlštejn.
V Radotíně najdeme kompletní stále se vylepšující občanskou vybavenost, řadu obchodů - Billa, Albert, Penny Market. Dále zdravotní středisko, školky, ZŠ, ZUŠ, gymnázium, sportovní halu, nový krytý plavecký bazén a přírodní vyhledávaný biotop, za řekou golfové hřiště, různá sportoviště, restaurace atd….
Dopravní obslužnost výborná – nedaleko domu zastávky BUSy 248, 309, 313, pod kopcem zastávka BUS 244 na metro B
Na metro se z Radotína jezdí nejvíce příměstským vlakem PID, metro B Smíchovské nádraží cca 9min, metro C Hlavní nádraží cca 16min.
Z bytu z Radotína je rychlé napojení autem na dálniční okruh buď Radotínským údolím u Lochkova, nebo přes Třebotov na Ořechu.
Byty jsou ve fází dokončovacích stavebních prací, staví menší stavební firma a developer s desítkami let zkušeností ve výstavbě bydlení.
Byty budou k nastěhování cca od července 2026.
Bližší informace u Ing. Romany Moravcové
Pomocí naší hypoteční kalkulačky si můžete udělat orientační představu o výši měsíčních splátek hypotéky. O vše ostatní se pak postaráme my ve spolupráci s našimi obchodními partnery.
39 273 Kč
* Odhadovaná měsíční splátka vychází z výše úvěru Kč s pevnou úrokovou sazbou % po celou dobu trvání úvěru.
Prodáváte nemovitost a potřebujete zjistit její reálnou hodnotu?
Uživatel serveru RealityMIX.cz (dále jen „Server“) dostupného na internetové adrese (URL) https://www.realitymix.cz, který provozuje společnost DALTEN media s.r.o., se sídlem Na Harfě 916/9a, Praha 9, 190 00, IČO: 271 35 306 (dále jen „Správce“) jako provozovateli tohoto Serveru uděluje svůj výslovný souhlas v souladu s ustanovením § 5 zákona č. 101/2000 Sb. O ochraně osobních údajů a o změně některých zákonů, v platném znění (dále jen „zákon o ochraně osobních údajů“), se zpracováním uživatelem poskytnutých osobních údajů a dalších dat.
Uživatel poskytuje Správci osobní údaje v rozsahu: jméno, příjmení, e-mailová adresa, telefonický kontakt a další data, a to z důvodu projeveného zájmu o nemovitost, kde prostřednictvím služby Serveru Správce osloví Uživatel inzerenta uvedeného v detailu
nemovitosti - GAUDÍ, s.r.o. (IČ 25117645) se zájmem o jeho služby.
Uživatel tyto osobní údaje poskytuje dobrovolně a bere na vědomí, že součástí služeb Správce, které Správce Uživateli poskytuje, je vyhledání všech Uživateli vyhovujících (dle parametrů - cena, typ nemovitosti, lokalita atd.) nemovitostí. Správce za tímto účelem provozuje aplikace Hlídací pes a newsletter. Tyto služby je možné z každého zaslaného emailu odhlásit. Souhlas se zpracováním osobních údajů Uživatel poskytuje Správci na dobu neurčitou s tím, že svůj udělený souhlas může Uživatel kdykoliv na drese správce info@realitymix.cz odvolat. Správce garantuje Uživateli i další práva uvedené v ustanovení §11 a §21 zákoba č. 101/200 Sb. Ve znění pozdějších předpisů.
Více informací o zpracování údajů získáte zde (realitymix.cz/zasady-ochrany-osobnich-udaju)