Představujeme Vám exkluzivní byt 3+kk, umístěný v jedenáctém patře panelové budovy s referenčním číslem na ulici Běhounkova, v oblíbené části Prahy Stodůlky.
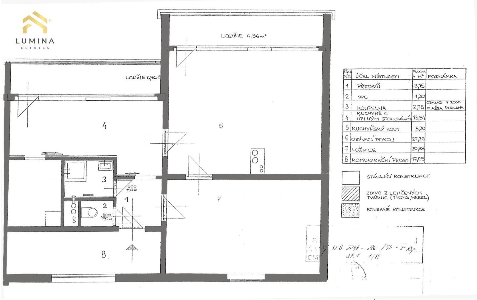
Tento byt, o celkové užitné ploše 91 m², zahrnuje životní prostor 76 m² a je doplněný o dva balkony o velikosti 14,92 m, které jsou opatřeny sítěmi proti holubům, s krásným výhledem na Prahu. Chodba vedoucí od výtahu je pod bezpečnostními dveřmi uzavřena pro dva byty, tzv. komunikační prostor o výměře 17 m2 a komoru náležící k bytové jednotce o výměře 5 m².
V přízemí domu se nachází recepce a zajišťuje pohodlný a bezpečný chod celého objektu spojeno s ochranou. Dům prošel kompletní revitalizací – nové vstupy, schránky, okna, zateplená fasáda, modernizované výtahy a zateplení střechy. Budova se nachází v lokalitě s veřejným vodovodem a kanalizací a vytápění je zajištěno centrálně. Disponuje 4 výtahy: dva osobní a dva jsou nákladové.
S umístěním v jedenáctém patře si budete moci vychutnávat panoramatický výhled na jihovýchod, což přináší bytu mnoho denního světla a útulnou atmosféru. Byt je ve stavu označeném jako velmi dobrý, což znamená, že je ihned připraven k nastěhování a dalšímu využívání. V bytě je již instalovaná moderní kuchyň s elektrickým sporákem. Tato nabídka je zajímavá pro ty, kteří hledají komfort městského bydlení spolu s výborným dopravním spojením a infrastrukturou.
Tento byt splňuje potřeby moderního bydlení. Navíc, stát se majitelem tohoto bytu je velmi jednoduché, jelikož je k dispozici s osobním vlastnictvím. Celková kupní cena je stanovena na 10 550 000 Kč.Možnost financování hypotékou .
Byt se nachází v části města s dobrou dostupností městské hromadné dopravy, což zajišťuje snadný přístup do různých částí Prahy. Parkování je možné přímo na ulici. Dostupnost 5 min.metro Hůrka, 10 min. Centrální park a Prokopské údolí. Tato lokalita nabízí vše potřebné pro pohodlné bydlení od obchodů, přes školy, zdravotnická zařízení, až po zelené parky a relaxační zóny.
Nechejte se očarovat tímto nádherným domovem, který čeká, až mu dáte osobní dotek a stane se vaším vysněným bydlením. Pro více informací nebo pro domluvení prohlídky tohoto bytu neváhejte kontaktovat makléřku Zuzku.
Pomocí naší hypoteční kalkulačky si můžete udělat orientační představu o výši měsíčních splátek hypotéky. O vše ostatní se pak postaráme my ve spolupráci s našimi obchodními partnery.
42 714 Kč
* Odhadovaná měsíční splátka vychází z výše úvěru Kč s pevnou úrokovou sazbou % po celou dobu trvání úvěru.
Prodáváte nemovitost a potřebujete zjistit její reálnou hodnotu?
Uživatel serveru RealityMIX.cz (dále jen „Server“) dostupného na internetové adrese (URL) https://www.realitymix.cz, který provozuje společnost DALTEN media s.r.o., se sídlem Na Harfě 916/9a, Praha 9, 190 00, IČO: 271 35 306 (dále jen „Správce“) jako provozovateli tohoto Serveru uděluje svůj výslovný souhlas v souladu s ustanovením § 5 zákona č. 101/2000 Sb. O ochraně osobních údajů a o změně některých zákonů, v platném znění (dále jen „zákon o ochraně osobních údajů“), se zpracováním uživatelem poskytnutých osobních údajů a dalších dat.
Uživatel poskytuje Správci osobní údaje v rozsahu: jméno, příjmení, e-mailová adresa, telefonický kontakt a další data, a to z důvodu projeveného zájmu o nemovitost, kde prostřednictvím služby Serveru Správce osloví Uživatel inzerenta uvedeného v detailu
nemovitosti - LUMINA ESTATES (IČ 23686880) se zájmem o jeho služby.
Uživatel tyto osobní údaje poskytuje dobrovolně a bere na vědomí, že součástí služeb Správce, které Správce Uživateli poskytuje, je vyhledání všech Uživateli vyhovujících (dle parametrů - cena, typ nemovitosti, lokalita atd.) nemovitostí. Správce za tímto účelem provozuje aplikace Hlídací pes a newsletter. Tyto služby je možné z každého zaslaného emailu odhlásit. Souhlas se zpracováním osobních údajů Uživatel poskytuje Správci na dobu neurčitou s tím, že svůj udělený souhlas může Uživatel kdykoliv na drese správce info@realitymix.cz odvolat. Správce garantuje Uživateli i další práva uvedené v ustanovení §11 a §21 zákoba č. 101/200 Sb. Ve znění pozdějších předpisů.
Více informací o zpracování údajů získáte zde (realitymix.cz/zasady-ochrany-osobnich-udaju)