Ve výhradním zastoupení majitele nabízíme ke koupi jedinečný mezonetový byt 3+kk o podlahové ploše 92,5 m². Nachází se v 6. a 7. nadzemním podlaží velmi dobře udržovaného činžovního domu s výtahem, který vede až do sklepního patra. Velkou výhodou domu je výborně fungující společenství vlastníků, které pracuje efektivně bez externí správcovské firmy. Díky tomu jsou provozní náklady domu dlouhodobě nižší a péče o budovu je na velmi dobré úrovni. Zděný zrekonstuovaný uzamykatelný sklep poskytuje praktický úložný prostor.
Dispozice bytu:
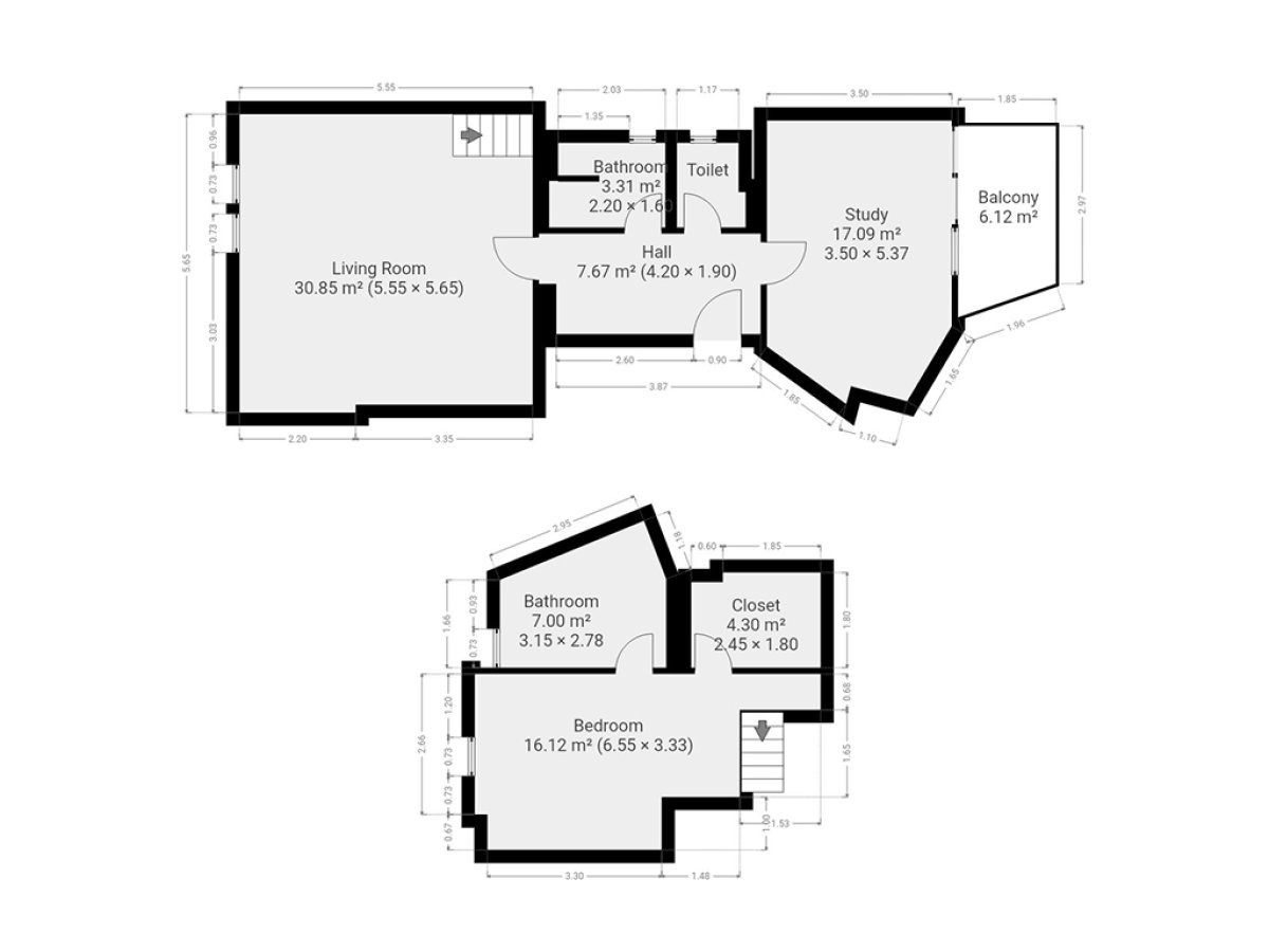
Celková výměra jednotky: 98,5 m² (92,5 m² byt + 6 m² lodžie) + sklepní kóje
1. podlaží:
Předsíň: 8 m²
Ložnice: 17 m²
Obývací pokoj s kuchyňským koutem: 33 m²
Koupelna: 4 m²
WC: 2 m²
Lodžie: 6 m²
2. podlaží:
Galerie/ložnice: 18 m²
Koupelna s WC: 6 m²
Šatna/komora: 4,5 m²
Vybavení:
Byt se prodává částečně vybavený. Součástí je nadstandardní kuchyňská linka se zabudovanými spotřebiči (indukční varná deska, elektrická trouba, mikrovlnná trouba, myčka, lednice a digestoř). V bytě dále zůstává mimo jiného jídelní stůl a židle, křeslo, rozkládací kožená sedačka, skříně, pracovní stůl, konferenční stolek, pračka, manželská postel a vestavěné úložné prvky na míru s integrovaným LED osvětlením. Centrální ovladač vytápění umožňuje pohodlné nastavení teploty z jednoho místa.
Lokalita:
Dům je situován vedle tramvajové zastávky Palouček, která zajišťuje perfektní dopravní dostupnost do centra města. Stanice metra Pražského povstání (C) je vzdálena pouze 2 minuty jízdy tramvají, stanice metra Karlovo náměstí (B) 10 minut. Za 10 minut pěšky se dostanete i na metro C Vyšehrad.
V blízkém okolí je veškerá občanská vybavenost – kavárny, restaurace, potraviny, školky, školy, dětská hřiště, fitness centrum, kadeřnictví, obchody a také oblíbené pražské parky Folimanka a Jezerka.
Byt je aktuálně pronajatý prověřeným nájemníkům, kteří zde žijí 2 roky. Mají platnou nájemní smlouvu na dobu určitou do 31.3.2026.
PENB není vyhotoven.
Ráda vás nemovitostí provedu osobně a zodpovím všechny vaše dotazy.
Tereza Lev
Certifikovaná realitní makléřka
Cena:
13 395 000 Kč
Poznámka:
Včetně provize, právního servisu, advokátní úschovy
Pomocí naší hypoteční kalkulačky si můžete udělat orientační představu o výši měsíčních splátek hypotéky. O vše ostatní se pak postaráme my ve spolupráci s našimi obchodními partnery.
54 233 Kč
* Odhadovaná měsíční splátka vychází z výše úvěru Kč s pevnou úrokovou sazbou % po celou dobu trvání úvěru.
Prodáváte nemovitost a potřebujete zjistit její reálnou hodnotu?
Uživatel serveru RealityMIX.cz (dále jen „Server“) dostupného na internetové adrese (URL) https://www.realitymix.cz, který provozuje společnost DALTEN media s.r.o., se sídlem Na Harfě 916/9a, Praha 9, 190 00, IČO: 271 35 306 (dále jen „Správce“) jako provozovateli tohoto Serveru uděluje svůj výslovný souhlas v souladu s ustanovením § 5 zákona č. 101/2000 Sb. O ochraně osobních údajů a o změně některých zákonů, v platném znění (dále jen „zákon o ochraně osobních údajů“), se zpracováním uživatelem poskytnutých osobních údajů a dalších dat.
Uživatel poskytuje Správci osobní údaje v rozsahu: jméno, příjmení, e-mailová adresa, telefonický kontakt a další data, a to z důvodu projeveného zájmu o nemovitost, kde prostřednictvím služby Serveru Správce osloví Uživatel inzerenta uvedeného v detailu
nemovitosti - Ideální nájemce (IČ 29300631) se zájmem o jeho služby.
Uživatel tyto osobní údaje poskytuje dobrovolně a bere na vědomí, že součástí služeb Správce, které Správce Uživateli poskytuje, je vyhledání všech Uživateli vyhovujících (dle parametrů - cena, typ nemovitosti, lokalita atd.) nemovitostí. Správce za tímto účelem provozuje aplikace Hlídací pes a newsletter. Tyto služby je možné z každého zaslaného emailu odhlásit. Souhlas se zpracováním osobních údajů Uživatel poskytuje Správci na dobu neurčitou s tím, že svůj udělený souhlas může Uživatel kdykoliv na drese správce info@realitymix.cz odvolat. Správce garantuje Uživateli i další práva uvedené v ustanovení §11 a §21 zákoba č. 101/200 Sb. Ve znění pozdějších předpisů.
Více informací o zpracování údajů získáte zde (realitymix.cz/zasady-ochrany-osobnich-udaju)