Prodej bytu 3kk + pracovna, 77,8 m2 vč. lodžie a sklepní kóje, Praha 4 - Háje, ul. Emilie Hyblerové
Prodej bytu v OV - krásný, kompletně zrekonstruovaný byt 3kk + pracovna, 69,3 m2 + lodžie 7 m2 + sklepní kóje 1,5 m2 + sklad 9,9 m2, Praha 4 - Háje, ulice Emilie Hyblerové, 3.NP ve zrekonstruovaném a kvalitně zatepleném panelovém domě s prostorným novým výtahem. Dům má vlastní kamerový systém a vstup do domu je přes bezpečnostní čip. Orientace bytu je na slunný jih s pěkným výhledem do zeleně a blízkého okolí (obývací pokoj s kuchyňským koutem + lodžie se zasklenou posuvnou zástěnou) a na sever do pěkného zeleného prostranství se vzrostlými stromy (2 neprůchozí ložnice).
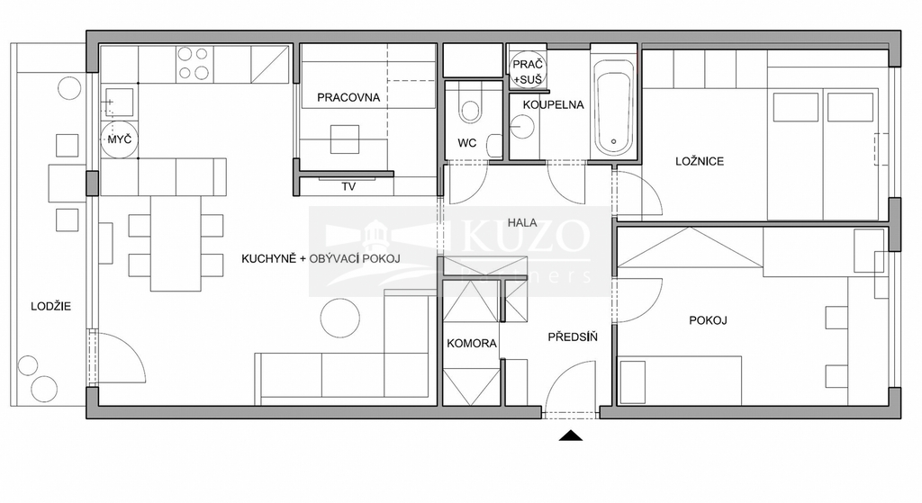
Byt sestává ze vstupní chodby (8,3 m2), prostorného obývacího pokoje s kuchyňským koutem (31,8 m2), 2 neprůchozích pokojů (12,5 m2 a 11,6 m2), koupelny (3,7 m2), WC (1,1 m2), komory (2,4 m2) a lodžie (7 m2). Byt prošel pečlivou, nákladnou, promyšlenou rekonstrukcí, která v sobě spojuje moderní styl, funkčnost i příjemnou domácí atmosféru. Majitelé věnovali pozornost každému detailu. Díky tomu vzniklo i mnoho úložných řešení. V části obývacího pokoje vznikla elegantní vestavěná místnost, kterou lze využít jako pracovnu nebo ložnici. Na základě tohoto chytrého řešení se z bytu stalo pomyslné 4+kk - se dvěma samostatnými dětskými pokoji a útulnou ložnicí/pracovnou pro rodiče. Každý člen rodiny má tak dostatek místa pro své soukromí, a zároveň je tak i dostatek otevřeného prostoru pro společné chvíle. Velkou devízou bytu je také možnost využívat skladový prostor 9,9 m2 s denním světlem a otevíracím oknem v posledním patře domu, který mají majitelé pronajatý od SVJ na dobu neurčitou.
Byt se nabízí částečně vybavený. Zůstane moderní kuchyňská linka s indukční varnou deskou a el. troubou, digestoř, lednice s mrazákem a myčka. Z nábytku pak veškerý vestavěný nábytek. Ostatní vybaveni je na dohodě. V koupelně je vana se sprchovou zástěnou a umývadlo. WC s menším umývadlem je zvlášť. Na podlaze je dřevěná plovoucí podlaha, koberce v ložnicích a dlažba. Topení je ÚT. Parkování je možné na ulici. K bytu náleží sklepní kóje 1,5 m2, nacházející se v suterénu domu a prostorná kolárna. Rozvody internetu jsou vedeny optickým kabelem.
Dům se nachází v klidné lokalitě plné zeleně. V blízkosti je Hostivařská přehrada s přírodním parkem Hostivař - Záběhlice a lesoparkem Hostivař, které vybízejí k relaxu i sportovním aktivitám. 300 m od domu je pak Centrální park i napojení na cyklotrasy A21 a A22, které vedou až do Braníka a napojují se na vyhlášenou trasu A2. V docházkové vzdálenosti je Metro C - Háje (cca 350 m od domu) včetně mnoha autobusových linek nebo cca 50 m od domu je zastávka busu „Poliklinika Háje“. V okolí je mnoho dětských hřišť a sportovišť, mateřské a základní školy, i střední škola. Veškerá občanská vybavenost je v místě včetně OC Háje se supermarketem Albert, drogerií Rossmann a s řadou dalších obchodů a služeb.
Měsíční náklady jsou pro 2 osoby 2.661 Kč + 2.425 Kč fond oprav + el. energie.
Byt bude volný ke konci prosince 2025 - prohlídky jsou možné ihned.
Pomocí naší hypoteční kalkulačky si můžete udělat orientační představu o výši měsíčních splátek hypotéky. O vše ostatní se pak postaráme my ve spolupráci s našimi obchodními partnery.
40 082 Kč
* Odhadovaná měsíční splátka vychází z výše úvěru Kč s pevnou úrokovou sazbou % po celou dobu trvání úvěru.
Prodáváte nemovitost a potřebujete zjistit její reálnou hodnotu?
Uživatel serveru RealityMIX.cz (dále jen „Server“) dostupného na internetové adrese (URL) https://www.realitymix.cz, který provozuje společnost DALTEN media s.r.o., se sídlem Na Harfě 916/9a, Praha 9, 190 00, IČO: 271 35 306 (dále jen „Správce“) jako provozovateli tohoto Serveru uděluje svůj výslovný souhlas v souladu s ustanovením § 5 zákona č. 101/2000 Sb. O ochraně osobních údajů a o změně některých zákonů, v platném znění (dále jen „zákon o ochraně osobních údajů“), se zpracováním uživatelem poskytnutých osobních údajů a dalších dat.
Uživatel poskytuje Správci osobní údaje v rozsahu: jméno, příjmení, e-mailová adresa, telefonický kontakt a další data, a to z důvodu projeveného zájmu o nemovitost, kde prostřednictvím služby Serveru Správce osloví Uživatel inzerenta uvedeného v detailu
nemovitosti - KUZO Partners s.r.o. (IČ 27602974) se zájmem o jeho služby.
Uživatel tyto osobní údaje poskytuje dobrovolně a bere na vědomí, že součástí služeb Správce, které Správce Uživateli poskytuje, je vyhledání všech Uživateli vyhovujících (dle parametrů - cena, typ nemovitosti, lokalita atd.) nemovitostí. Správce za tímto účelem provozuje aplikace Hlídací pes a newsletter. Tyto služby je možné z každého zaslaného emailu odhlásit. Souhlas se zpracováním osobních údajů Uživatel poskytuje Správci na dobu neurčitou s tím, že svůj udělený souhlas může Uživatel kdykoliv na drese správce info@realitymix.cz odvolat. Správce garantuje Uživateli i další práva uvedené v ustanovení §11 a §21 zákoba č. 101/200 Sb. Ve znění pozdějších předpisů.
Více informací o zpracování údajů získáte zde (realitymix.cz/zasady-ochrany-osobnich-udaju)