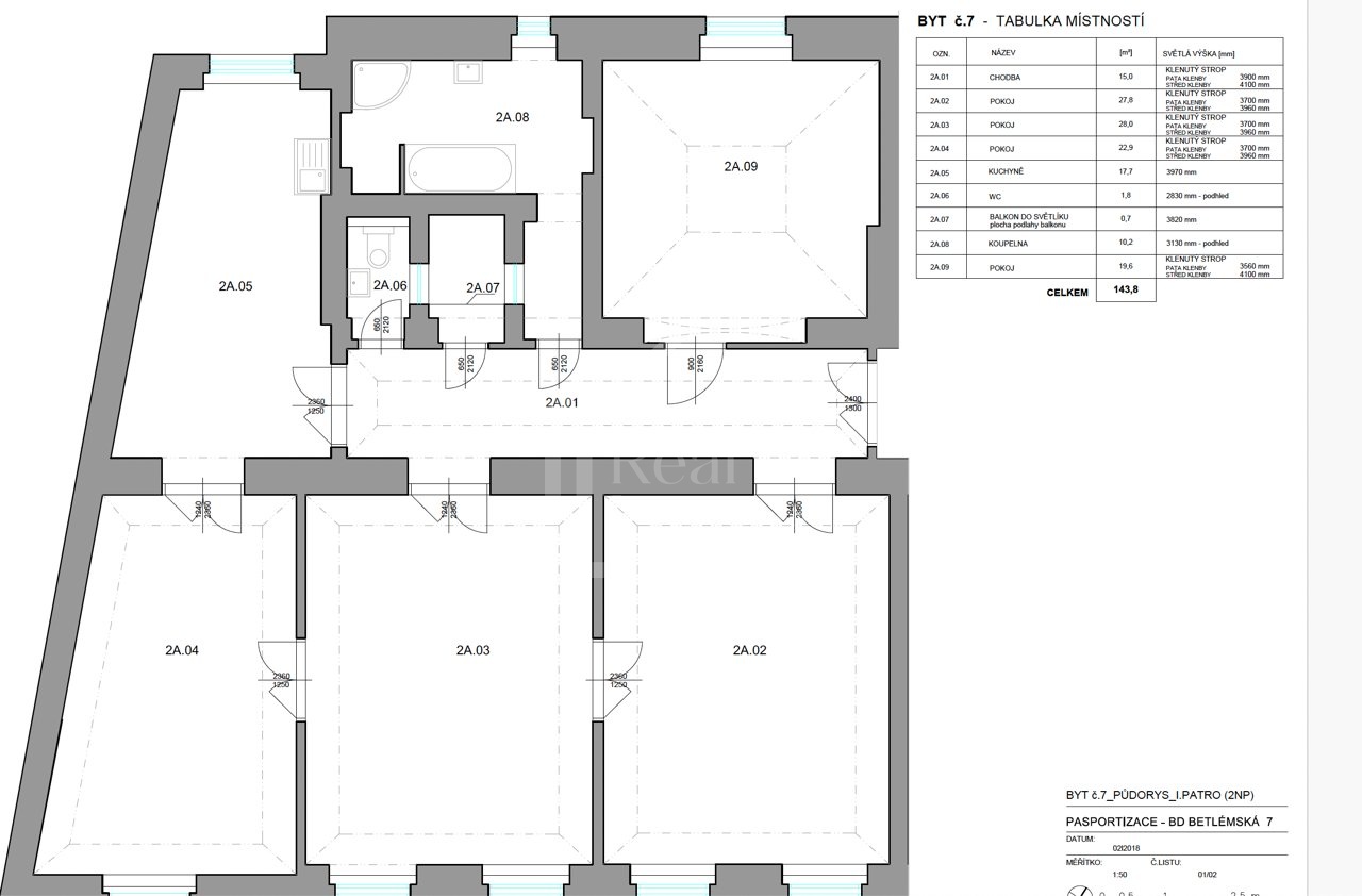
Nabízíme k prodeji velkorysý byt o dispozici 4+1 a celkové ploše 144 m², situovaný ve 2. NP udržovaného historického domu v prestižní Betlémské ulici. Budova aktuálně prochází finální fází kompletní revitalizace (již dokončeno: nová okna, fasáda, rozvody elektřiny a plynu, kamerový systém a nový vnitroblok; následuje renovace společných prostor).
Interiér bytu definuje centrální chodba, která zajišťuje komfortní vstup do jednotlivých místností. Dispozice zahrnuje tři prostorné ložnice, reprezentativní obývací pokoj, plně vybavenou kuchyni z masivu, koupelnu s vanou i sprchovým koutem, samostatnou toaletu a praktickou komoru. Výjimečnou atmosféru a vzdušnost prostoru dodávají stropy vysoké přes 4 metry a nádherná, citlivě repasovaná okna.
Nemovitost je ve velmi dobrém stavu po částečné rekonstrukci (broušené parkety, nový plynový kotel). Byt je nabízen jako částečně zařízený včetně vestavěných skříní na míru. K bytu je možné využívat sklep o velikosti cca 6 m2.
Dům se nachází v klidné jednosměrné ulici jen pár kroků od nábřeží a historických památek Prahy 1. Parkování je možné v rezidenčních zónách přímo před domem, případně lze individuálně zajistit dlouhodobé stání v garážích Národního divadla.
Financování hypotečním úvěrem je možné a rádi Vám zajistíme nejvýhodnější podmínky na trhu.
Pomocí naší hypoteční kalkulačky si můžete udělat orientační představu o výši měsíčních splátek hypotéky. O vše ostatní se pak postaráme my ve spolupráci s našimi obchodními partnery.
108 506 Kč
* Odhadovaná měsíční splátka vychází z výše úvěru Kč s pevnou úrokovou sazbou % po celou dobu trvání úvěru.
Prodáváte nemovitost a potřebujete zjistit její reálnou hodnotu?
Uživatel serveru RealityMIX.cz (dále jen „Server“) dostupného na internetové adrese (URL) https://www.realitymix.cz, který provozuje společnost DALTEN media s.r.o., se sídlem Na Harfě 916/9a, Praha 9, 190 00, IČO: 271 35 306 (dále jen „Správce“) jako provozovateli tohoto Serveru uděluje svůj výslovný souhlas v souladu s ustanovením § 5 zákona č. 101/2000 Sb. O ochraně osobních údajů a o změně některých zákonů, v platném znění (dále jen „zákon o ochraně osobních údajů“), se zpracováním uživatelem poskytnutých osobních údajů a dalších dat.
Uživatel poskytuje Správci osobní údaje v rozsahu: jméno, příjmení, e-mailová adresa, telefonický kontakt a další data, a to z důvodu projeveného zájmu o nemovitost, kde prostřednictvím služby Serveru Správce osloví Uživatel inzerenta uvedeného v detailu
nemovitosti - RealLocate s.r.o. (IČ 13988158) se zájmem o jeho služby.
Uživatel tyto osobní údaje poskytuje dobrovolně a bere na vědomí, že součástí služeb Správce, které Správce Uživateli poskytuje, je vyhledání všech Uživateli vyhovujících (dle parametrů - cena, typ nemovitosti, lokalita atd.) nemovitostí. Správce za tímto účelem provozuje aplikace Hlídací pes a newsletter. Tyto služby je možné z každého zaslaného emailu odhlásit. Souhlas se zpracováním osobních údajů Uživatel poskytuje Správci na dobu neurčitou s tím, že svůj udělený souhlas může Uživatel kdykoliv na drese správce info@realitymix.cz odvolat. Správce garantuje Uživateli i další práva uvedené v ustanovení §11 a §21 zákoba č. 101/200 Sb. Ve znění pozdějších předpisů.
Více informací o zpracování údajů získáte zde (realitymix.cz/zasady-ochrany-osobnich-udaju)