Ve výhradním zastoupení majitele nabízíme ke koupi prostorný byt 4+1 s podlahovou plochou 89 m², ke kterému přísluší zasklená lodžie o výměře 7 m2 a sklepní kóje o výměře 3 m2. Byt je situován v 7. nadzemním podlaží panelového domu a nabízí krásný výhled ze zasklené lodžie. Velkou výhodou bytu jsou 4 neprůchozí pokoje se vstupem z předsíně.
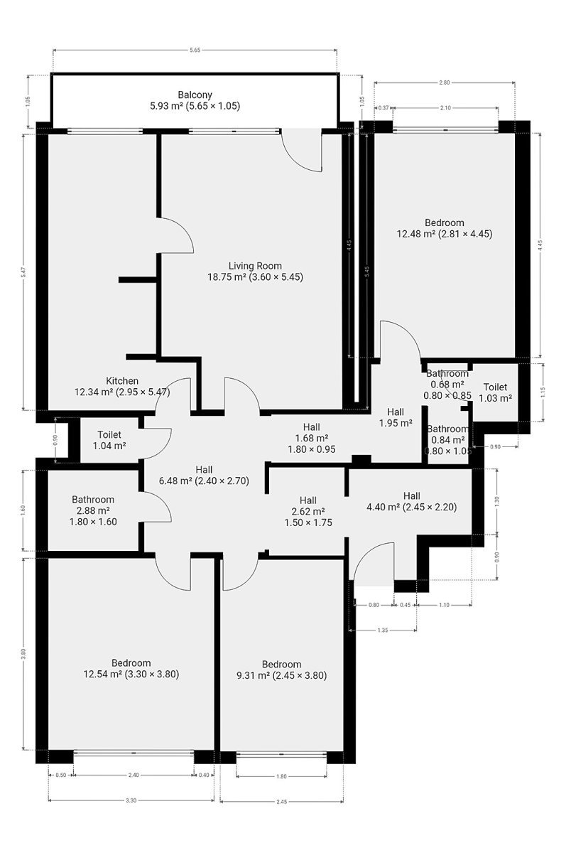
Výměry místností a příslušenství:
• Kuchyně: 12,5 m²
• Obývací pokoj: 19 m²
• Ložnice 1: 12,5 m2
• Ložnice 2: 12,5 m2
• Ložnice 3: 9 m2
• Koupelna: 3 m²
• 2x WC: 2x 1 m2
• Předsíň s rozšířenou vstupní halou: 18,5 m2
• Lodžie: 7 m2
• Sklepní kóje: 3 m2
Byt je určen k rekonstrukci a nabízí se nevybavený. Součástí je kuchyňská linka s elektrickým sporákem, troubou, lednicí a digestoří.
Lokalita:
Dům je situován jen 5 minut chůze od stanice metra a autobusové zastávky Luka. Přímým spojením se dostanete za 4 minuty na Zličín nebo za 13 minut na Anděl. Za 13 minut se dostanete také přímým autobusovým spojením na stanici metra Nemocnice Motol.
Nemovitost se nachází v docházkové vzdálenosti oblíbeného Centrálního parku a také nedaleko Prokopského údolí. V okolí domu je kompletní občanská vybavenost – nákupní centrum Luka, Albert, Makro, Billa, základní i mateřská škola, velké množství sportovišť i dětských hřišť, Dům dětí a mládeže a další.
V bytě bydlí nájemníci s platnou smlouvou do 31.5.2026, kterou by rádi prodloužili.
Výhodou této nemovitosti jsou nízké provozní náklady ve výši 5.557 Kč (včetně fondu oprav) + elektřina.
Ráda vás nemovitostí provedu osobně a zodpovím všechny vaše dotazy.
Tereza Lev
Certifikovaná realitní makléřka
Cena:
9 995 000 Kč
Poznámka:
Včetně provize, právního servisu, advokátní úschovy
Pomocí naší hypoteční kalkulačky si můžete udělat orientační představu o výši měsíčních splátek hypotéky. O vše ostatní se pak postaráme my ve spolupráci s našimi obchodními partnery.
40 467 Kč
* Odhadovaná měsíční splátka vychází z výše úvěru Kč s pevnou úrokovou sazbou % po celou dobu trvání úvěru.
Prodáváte nemovitost a potřebujete zjistit její reálnou hodnotu?
Uživatel serveru RealityMIX.cz (dále jen „Server“) dostupného na internetové adrese (URL) https://www.realitymix.cz, který provozuje společnost DALTEN media s.r.o., se sídlem Na Harfě 916/9a, Praha 9, 190 00, IČO: 271 35 306 (dále jen „Správce“) jako provozovateli tohoto Serveru uděluje svůj výslovný souhlas v souladu s ustanovením § 5 zákona č. 101/2000 Sb. O ochraně osobních údajů a o změně některých zákonů, v platném znění (dále jen „zákon o ochraně osobních údajů“), se zpracováním uživatelem poskytnutých osobních údajů a dalších dat.
Uživatel poskytuje Správci osobní údaje v rozsahu: jméno, příjmení, e-mailová adresa, telefonický kontakt a další data, a to z důvodu projeveného zájmu o nemovitost, kde prostřednictvím služby Serveru Správce osloví Uživatel inzerenta uvedeného v detailu
nemovitosti - Ideální nájemce (IČ 29300631) se zájmem o jeho služby.
Uživatel tyto osobní údaje poskytuje dobrovolně a bere na vědomí, že součástí služeb Správce, které Správce Uživateli poskytuje, je vyhledání všech Uživateli vyhovujících (dle parametrů - cena, typ nemovitosti, lokalita atd.) nemovitostí. Správce za tímto účelem provozuje aplikace Hlídací pes a newsletter. Tyto služby je možné z každého zaslaného emailu odhlásit. Souhlas se zpracováním osobních údajů Uživatel poskytuje Správci na dobu neurčitou s tím, že svůj udělený souhlas může Uživatel kdykoliv na drese správce info@realitymix.cz odvolat. Správce garantuje Uživateli i další práva uvedené v ustanovení §11 a §21 zákoba č. 101/200 Sb. Ve znění pozdějších předpisů.
Více informací o zpracování údajů získáte zde (realitymix.cz/zasady-ochrany-osobnich-udaju)