Prostorný rodinný mezonet v posledním patře s výhledy a potenciálem.
Přímo od majitele nabízím k prodeji prostorný mezonetový byt 5+1 v posledním patře domu, ideální pro rodinu, která hledá klid, soukromí a možnost vytvořit si bydlení přesně podle vlastních představ. Byt se nachází v klidné části Prahy 5 – Stodůlky, jen pár minut chůze od metra Hůrka a v bezprostřední blízkosti zeleně.
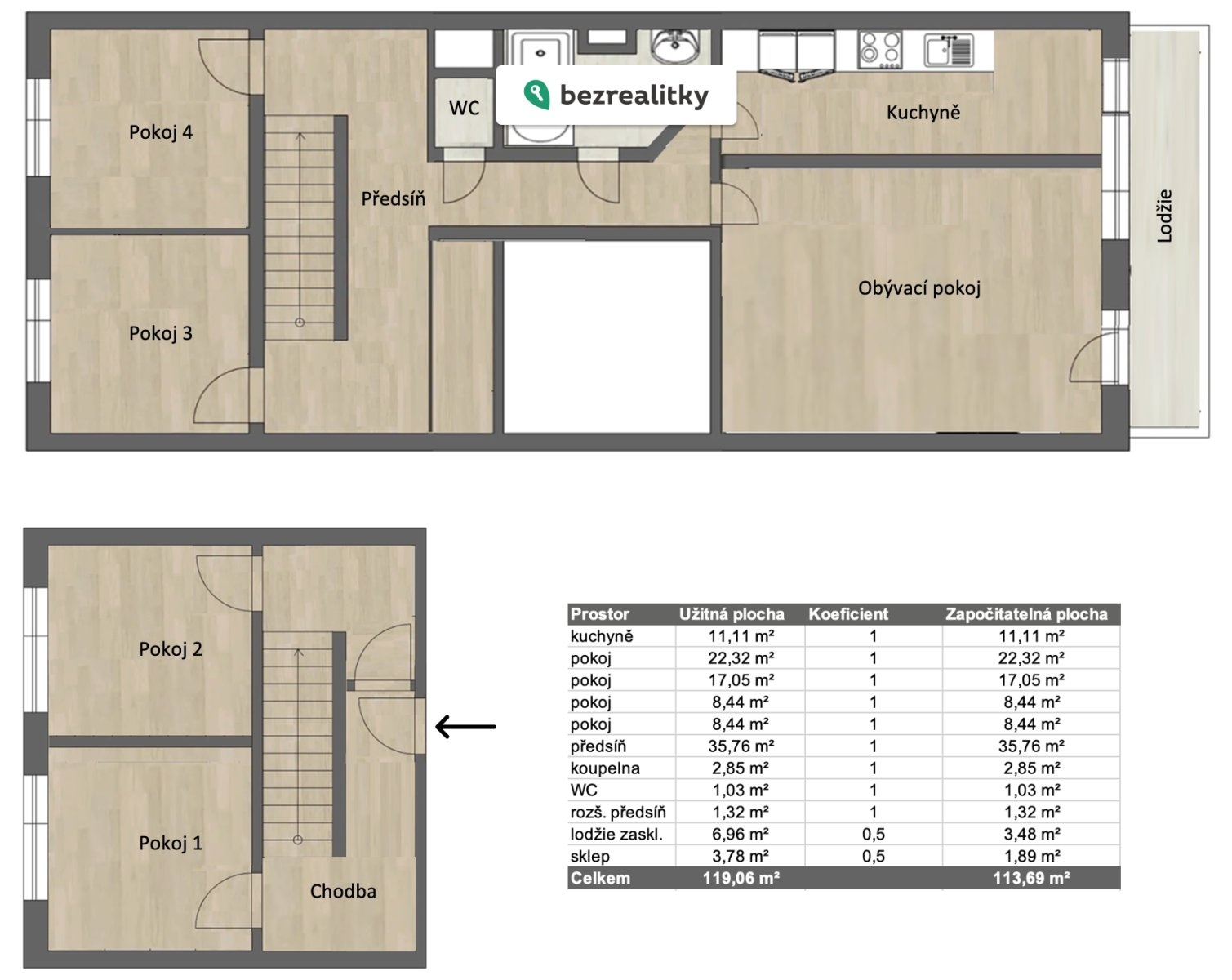
Byt o celkové podlahové ploše 119 m² je rozložen do dvou podlaží, což poskytuje dostatek prostoru i soukromí pro větší rodinu. Dominantou bytu je světlý obývací pokoj s výstupem na lodžii o velikosti 7 m², odkud se otevírají ničím nerušené výhledy do okolí.
Dispozice nabízí celkem pět obytných místností, samostatnou kuchyni, koupelnu, oddělené WC a dostatek úložných prostor včetně vestavěných skříní. Součástí bytu je také sklepní kóje o velikosti 3,78 m².
Byt je udržovaný a ihned obyvatelný, zároveň však představuje výbornou příležitost k rekonstrukci, díky které lze naplno využít jeho prostorový potenciál a vytvořit moderní rodinné bydlení přesně podle vlastního vkusu. Šikovný investor bude případně schopen i vybudovat sociální zázemí ve spodním patře a rozdělit bytovou jednotku na dvě.
Pro lepší představu o možnostech budoucí podoby bytu jsou součástí inzerátu také vizualizace možného stavu po rekonstrukci.
Dům prošel v posledních letech rozsáhlou modernizací – nové rozvody, moderní výtahy, zateplená střecha, rekonstruované balkony a fasáda z ulice Dominova. Vnitroblok je aktuálně připravován k zateplení. Umístění v posledním patře zajišťuje klidné bydlení bez rušivých vlivů shora.
Lokalita nabízí kompletní občanskou vybavenost – školy, školky, obchody, sportoviště i rychlou dostupnost MHD. Byt je v osobním vlastnictví a připraven k převodu.
Proč právě tento byt
✔️ Mezonetový byt 5+1 o ploše 119 m²
✔️ Poslední patro – klid, soukromí a výhledy
✔️ Lodžie 7 m² + sklepní kóje 3,78 m²
✔️ Výborná dostupnost metra Hůrka
✔️ Dům po rozsáhlé modernizaci
✔️ Skvělý základ pro rekonstrukci podle vlastních představ
Ideální volba pro ty, kteří hledají prostor, klid a dlouhodobou hodnotu v jedné z nejžádanějších částí Prahy 5. Tato nemovitost je určena výhradně přímým zájemcům o koupi. Na inzerát můžete také reagovat přímo na webu Bezrealitky.
Pomocí naší hypoteční kalkulačky si můžete udělat orientační představu o výši měsíčních splátek hypotéky. O vše ostatní se pak postaráme my ve spolupráci s našimi obchodními partnery.
47 573 Kč
* Odhadovaná měsíční splátka vychází z výše úvěru Kč s pevnou úrokovou sazbou % po celou dobu trvání úvěru.
Prodáváte nemovitost a potřebujete zjistit její reálnou hodnotu?
* Umístění na mapě je na základě GPS informací dodaných realitní kanceláří.
* Pozice na mapě je pouze orientační.
Souhlas se zpracováním osobních údajů
Uživatel serveru RealityMIX.cz (dále jen „Server“) dostupného na internetové adrese (URL) https://www.realitymix.cz, který provozuje společnost DALTEN media s.r.o., se sídlem Na Harfě 916/9a, Praha 9, 190 00, IČO: 271 35 306 (dále jen „Správce“) jako provozovateli tohoto Serveru uděluje svůj výslovný souhlas v souladu s ustanovením § 5 zákona č. 101/2000 Sb. O ochraně osobních údajů a o změně některých zákonů, v platném znění (dále jen „zákon o ochraně osobních údajů“), se zpracováním uživatelem poskytnutých osobních údajů a dalších dat.
Uživatel poskytuje Správci osobní údaje v rozsahu: jméno, příjmení, e-mailová adresa, telefonický kontakt a další data, a to z důvodu projeveného zájmu o nemovitost, kde prostřednictvím služby Serveru Správce osloví Uživatel inzerenta uvedeného v detailu
nemovitosti - Bezrealitky s.r.o. (IČ 08063168) se zájmem o jeho služby.
Uživatel tyto osobní údaje poskytuje dobrovolně a bere na vědomí, že součástí služeb Správce, které Správce Uživateli poskytuje, je vyhledání všech Uživateli vyhovujících (dle parametrů - cena, typ nemovitosti, lokalita atd.) nemovitostí. Správce za tímto účelem provozuje aplikace Hlídací pes a newsletter. Tyto služby je možné z každého zaslaného emailu odhlásit. Souhlas se zpracováním osobních údajů Uživatel poskytuje Správci na dobu neurčitou s tím, že svůj udělený souhlas může Uživatel kdykoliv na drese správce info@realitymix.cz odvolat. Správce garantuje Uživateli i další práva uvedené v ustanovení §11 a §21 zákoba č. 101/200 Sb. Ve znění pozdějších předpisů.
Více informací o zpracování údajů získáte zde (realitymix.cz/zasady-ochrany-osobnich-udaju)