Představte si večer na vlastní střešní terase s výhledem přes pražské střechy, sklenku vína v ruce a klid, který byste v centru Prahy nečekali. Přesně to nabízí tento jedinečný mezonetový byt v srdci Nuslí.
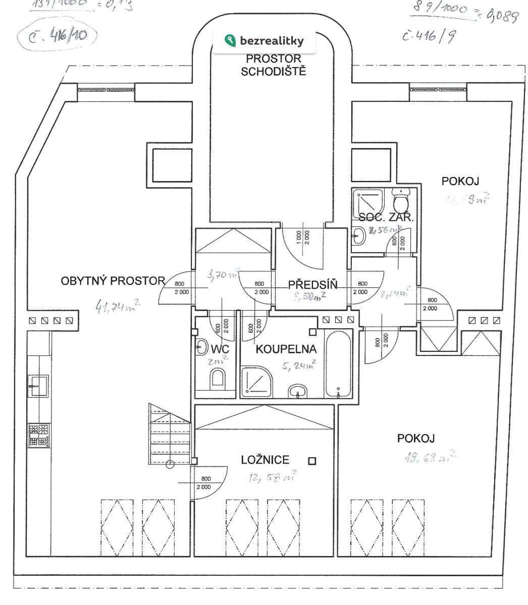
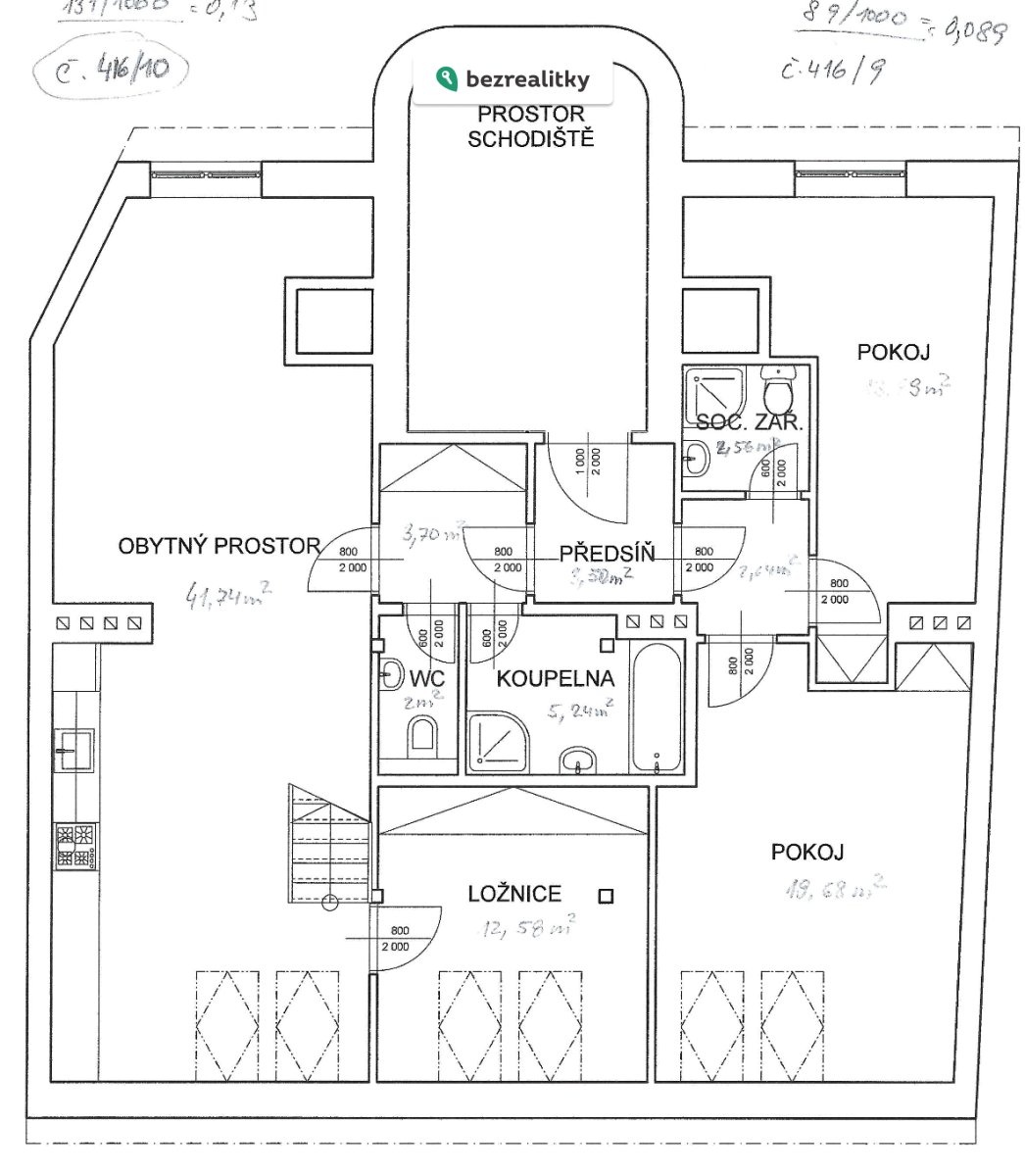
Prostorný soubor 2 bytových jednotek o celkové využitelné ploše 123 m² (+ terasa 14 m² + sklep 8 m²) se rozkládá ve 4. a 5. NP (podkroví) cihlového domu z roku 1925 na adrese Boleslavova 416/40, Praha 4. Dům je bez výtahu. Byt tvoří dvě stavebně propojené jednotky — 3+kk (84 m² využitelné plochy) a 1+1 (39 m²) — které lze užívat společně jako velký rodinný byt i odděleně. Byt je aktuálně pronajatý. Je připraven k okamžitému bydlení nebo případné rekonstrukci dle vlastních představ. Ideální jako rodinné bydlení, dvougenerační byt, nebo investice s pronájmem menší jednotky.
BYT 3+kk — jednotka 416/10 (využitelná plocha 84 m², mezonet):
K bytu patří střešní terasa o výměře 14 m², jižně orientovaná, s výhledem přes střechy Nuslí a okolní zeleň — absolutní unikát tohoto bytu. Vstupní chodbou s hexagonální dlažbou vejdete do hlavního obytného prostoru s kuchyňským koutem. Dřevěné trámy, střešní okna, dřevěné schodiště vedoucí do horního patra a světlá výška stropu až 4,5 metru dodávají prostoru jedinečný podkrovní charakter. Na obytný prostor navazuje ložnice s vestavěnou šatnou. Koupelna s vanou i sprchovým koutem a samostatné WC doplňují dispozici. Z obývacího pokoje vede dřevěné schodiště do horní úrovně — podkrovního pokoje s prosklenými francouzskými dveřmi, které vedou přímo na terasu. V horním patře se nacházejí také dodatečné úložné prostory. Součástí je sklep v suterénu domu (8 m²). Byt prošel částečnou rekonstrukcí v roce 2017.
BYT 1+1 — jednotka 416/9 (podlahová plocha 39 m²):
Kompletně zrekonstruovaný v roce 2017 — nová moderní kuchyňská linka s vestavnými spotřebiči, troubou, varnou deskou a pračkou. Kuchyň a pokoj, vlastní koupelna s WC a sprchovým koutem, nové laminátové podlahy a kompletní nové rozvody.
Vytápění a ohřev TUV zajišťuje společný plynový kotel pro obě jednotky, deskové radiátory.
Prodej přímo od majitele — bez provize, bez realitní kanceláře. Prosím, realitní kanceláře nevolejte.
LOKALITA:
Nusle patří k nejžádanějším rezidenčním čtvrtím Prahy 4 — širší centrum, zděná zástavba. Nejbližší tramvajová zastávka Náměstí Bratří Synků je cca 100 m od domu s návazností na metro trasy C, A i B. Do centra Prahy veřejnou dopravou max. 15 minut. V docházkové vzdálenosti park Jezerka (3,5 ha), Folimanka, školy, školky, obchody, restaurace a OC Arkády Pankrác (5 min. tramvají). Obrovskou výhodou je plánovaná stanice metra D Náměstí Bratří Synků — prakticky za rohem domu — která po dokončení výrazně zvýší hodnotu nemovitosti i komfort dopravy.
Neváhejte a domluvte si prohlídku — mezonetový byt s vlastní terasou se v Nuslích objevuje jen výjimečně. Byt je vhodný jako rodinné bydlení, dvougenerační byt, investice s pronájmem menší jednotky, nebo kombinace bydlení a podnikání. Tato nemovitost je určena výhradně přímým zájemcům o koupi. Na inzerát můžete také reagovat přímo na webu Bezrealitky.
Pomocí naší hypoteční kalkulačky si můžete udělat orientační představu o výši měsíčních splátek hypotéky. O vše ostatní se pak postaráme my ve spolupráci s našimi obchodními partnery.
68 181 Kč
* Odhadovaná měsíční splátka vychází z výše úvěru Kč s pevnou úrokovou sazbou % po celou dobu trvání úvěru.
Prodáváte nemovitost a potřebujete zjistit její reálnou hodnotu?
* Umístění na mapě je na základě GPS informací dodaných realitní kanceláří.
* Pozice na mapě je pouze orientační.
Souhlas se zpracováním osobních údajů
Uživatel serveru RealityMIX.cz (dále jen „Server“) dostupného na internetové adrese (URL) https://www.realitymix.cz, který provozuje společnost DALTEN media s.r.o., se sídlem Na Harfě 916/9a, Praha 9, 190 00, IČO: 271 35 306 (dále jen „Správce“) jako provozovateli tohoto Serveru uděluje svůj výslovný souhlas v souladu s ustanovením § 5 zákona č. 101/2000 Sb. O ochraně osobních údajů a o změně některých zákonů, v platném znění (dále jen „zákon o ochraně osobních údajů“), se zpracováním uživatelem poskytnutých osobních údajů a dalších dat.
Uživatel poskytuje Správci osobní údaje v rozsahu: jméno, příjmení, e-mailová adresa, telefonický kontakt a další data, a to z důvodu projeveného zájmu o nemovitost, kde prostřednictvím služby Serveru Správce osloví Uživatel inzerenta uvedeného v detailu
nemovitosti - Bezrealitky s.r.o. (IČ 08063168) se zájmem o jeho služby.
Uživatel tyto osobní údaje poskytuje dobrovolně a bere na vědomí, že součástí služeb Správce, které Správce Uživateli poskytuje, je vyhledání všech Uživateli vyhovujících (dle parametrů - cena, typ nemovitosti, lokalita atd.) nemovitostí. Správce za tímto účelem provozuje aplikace Hlídací pes a newsletter. Tyto služby je možné z každého zaslaného emailu odhlásit. Souhlas se zpracováním osobních údajů Uživatel poskytuje Správci na dobu neurčitou s tím, že svůj udělený souhlas může Uživatel kdykoliv na drese správce info@realitymix.cz odvolat. Správce garantuje Uživateli i další práva uvedené v ustanovení §11 a §21 zákoba č. 101/200 Sb. Ve znění pozdějších předpisů.
Více informací o zpracování údajů získáte zde (realitymix.cz/zasady-ochrany-osobnich-udaju)