Prodej dvougeneračního domu 9+2 s garáží v Praze 9 - Vinoř.
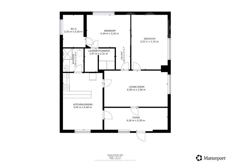
Dům byl kolaudován v roce 1999 a jeho celková zastavěná plocha činí 145 m2. V 1NP (přízemí) je vstupní chodba, kuchyň s jídelnou, obývací pokoj, dvě ložnice, koupelna se sprchovým koutem a šatna. Ve 2. NP (první patro) se nachází kuchyňský kout spojený s obývací pokojem a terasou, dvě ložnice, pracovna, koupelna s vanou a toaletou a druhá samostatná toaleta. Ve 3. NP (druhé patro) jsou dvě samostatné ložnice. Celkový součet užitných ploch místností činí 301 m2.
Dům je postaven z cihel a není zateplen. Jako střešní krytina je použita betonová taška Bramac. Vytápění je řešeno plynovým kotlem, ohřev vody plynovým bojlerem. Na dvoře a pozemku o rozloze 340 m2 se nachází garáž pro dvě auta o rozloze 37 m2. Vedle domu je dlážděné nádvoří a kolem domu pruhy zeleně. Nemovitost je napojena na veřejnou kanalizační síť a vodovodní řad, taktéž jsou zavedeny přípojky elektřiny a plynu. Měsíční zálohové platby na energie činí v současné době 8 tis. plyn, 2 tis. elektřina.
V blízkosti najdeme základní i mateřskou školu, v docházkové vzdálenosti pak základní služby občanské vybavenosti. Dům se nachází v atraktivní lokalitě s výbornou dostupností pomocí MHD do Prahy i do Brandýsa nad Labem. Je vhodný pro vícegenerační bydlení početné rodiny, nebo i provozování drobného podnikání. Průkaz energetické náročnosti budovy není v tuto chvíli k dispozici, proto je nemovitost zařazena v kategorii G.
Pro bližší informace a prohlídku, mě neváhejte kontaktovat.
Pomocí naší hypoteční kalkulačky si můžete udělat orientační představu o výši měsíčních splátek hypotéky. O vše ostatní se pak postaráme my ve spolupráci s našimi obchodními partnery.
86 845 Kč
* Odhadovaná měsíční splátka vychází z výše úvěru Kč s pevnou úrokovou sazbou % po celou dobu trvání úvěru.
Uživatel serveru RealityMIX.cz (dále jen „Server“) dostupného na internetové adrese (URL) https://www.realitymix.cz, který provozuje společnost DALTEN media s.r.o., se sídlem Na Harfě 916/9a, Praha 9, 190 00, IČO: 271 35 306 (dále jen „Správce“) jako provozovateli tohoto Serveru uděluje svůj výslovný souhlas v souladu s ustanovením § 5 zákona č. 101/2000 Sb. O ochraně osobních údajů a o změně některých zákonů, v platném znění (dále jen „zákon o ochraně osobních údajů“), se zpracováním uživatelem poskytnutých osobních údajů a dalších dat.
Uživatel poskytuje Správci osobní údaje v rozsahu: jméno, příjmení, e-mailová adresa, telefonický kontakt a další data, a to z důvodu projeveného zájmu o nemovitost, kde prostřednictvím služby Serveru Správce osloví Uživatel inzerenta uvedeného v detailu
nemovitosti - Bidli reality, a.s. (IČ 06790763) se zájmem o jeho služby. Tato společnost je součástí seskupení/sítě/franšízového modelu realitních kanceláří, jejich seznam můžete zobrazit kliknutím na tento odkaz.
Hypocentrum modré pyramidy - Praha (IČ ) , Hypocentrum modré pyramidy - Brno (IČ ) , Hypocentrum Modré pyramidy - Hradec Králové (IČ ) , Hypocentrum Modré pyramidy - České Budějovice (IČ ) , Hypocentrum Modré pyramidy - Pardubice (IČ ) , Hypocentrum Modré pyramidy - Plzeň (IČ ) , Hypocentrum Modré pyramidy - Ústí nad Labem (IČ ) , Hypocentrum Modré pyramidy - Ostrava (IČ ) , Hypocentrum Modré pyramidy - Olomouc (IČ ) , Bidli reality, a.s. (IČ 06790763)
Uživatel tyto osobní údaje poskytuje dobrovolně a bere na vědomí, že součástí služeb Správce, které Správce Uživateli poskytuje, je vyhledání všech Uživateli vyhovujících (dle parametrů - cena, typ nemovitosti, lokalita atd.) nemovitostí. Správce za tímto účelem provozuje aplikace Hlídací pes a newsletter. Tyto služby je možné z každého zaslaného emailu odhlásit. Souhlas se zpracováním osobních údajů Uživatel poskytuje Správci na dobu neurčitou s tím, že svůj udělený souhlas může Uživatel kdykoliv na drese správce info@realitymix.cz odvolat. Správce garantuje Uživateli i další práva uvedené v ustanovení §11 a §21 zákoba č. 101/200 Sb. Ve znění pozdějších předpisů.
Více informací o zpracování údajů získáte zde (realitymix.cz/zasady-ochrany-osobnich-udaju)