Nabízíme prodej multifunkční haly. Vzhledem k tomu, že hala stojí na pronajatém pozemku je počítáno s tím, že si nový vlastník halu přesune na vlastní pozemek.
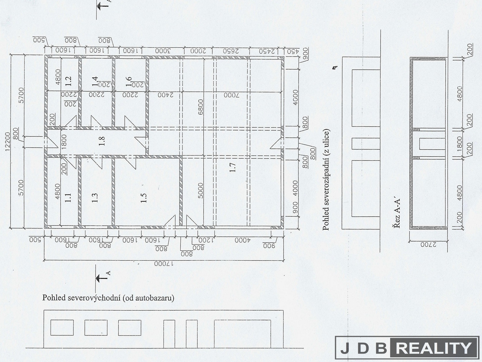
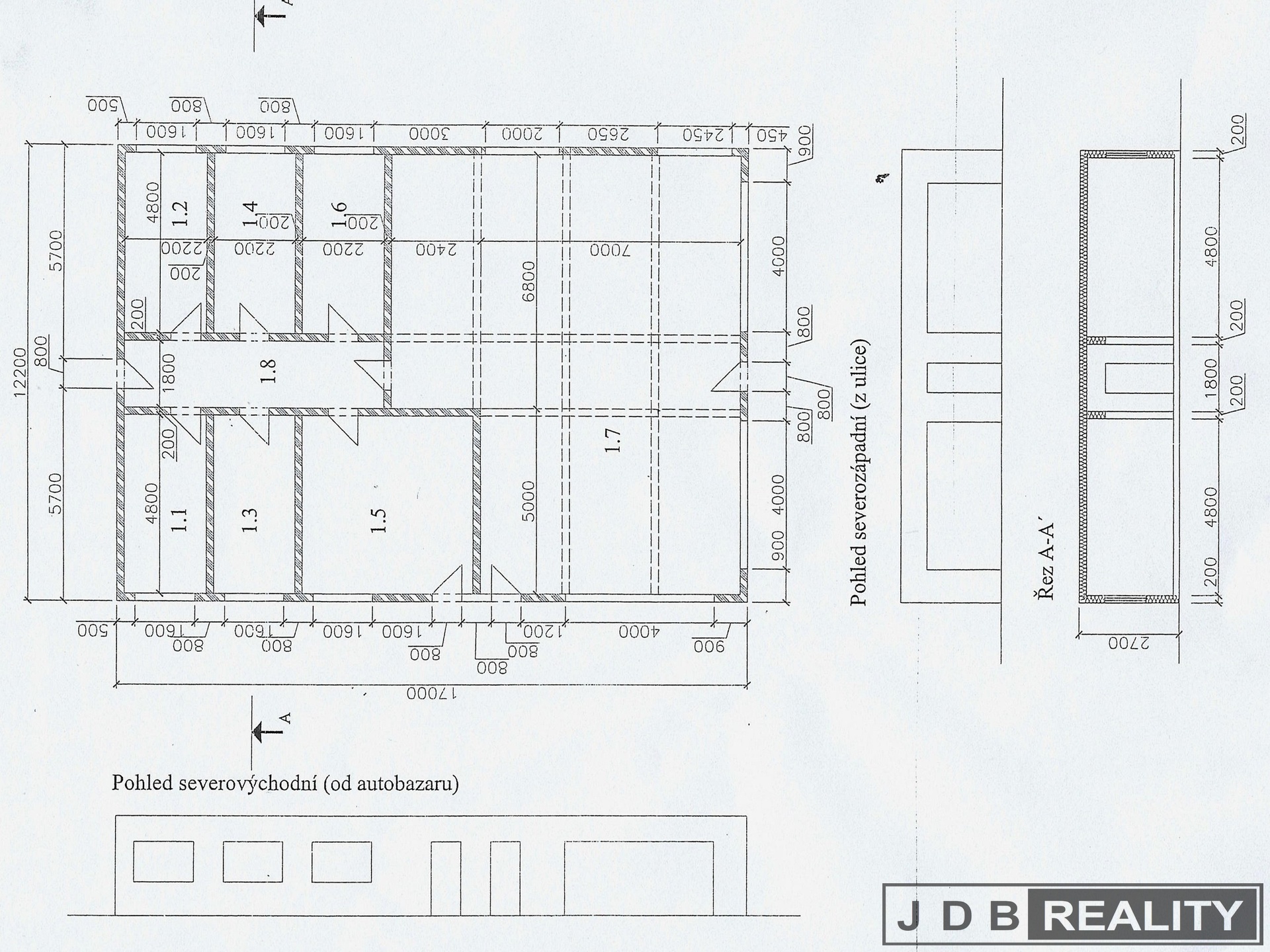
Jedná se o zateplenou ocelovou halu, která je opláštěná panely Kingspan o zastavěné ploše 275 m2 a rozměrech zhruba 12,5 x 22 m se dvěma vjezdy o šířce 3,5 m a výšce 3,5 m, umožňující snadnou nakládku a vykládku materiálu nebo zboží. Sedlové zastřešení haly je provedeno z FeZn plechu, hala je opatřena okapy pro odvod dešťové vody a vnějším osvětlením. Po obvodu haly je dostatečné množství oken, takže ve vnitřních prostorách je dostatek denního světla. Prostory jsou vytápěny kotlem na tuhá paliva, který je umístěn v samostatné místnosti a je napojen na velké množství radiátorů, které jsou rozmístěny po celém obvodu haly. Zateplený strop ve výšce 4,1m je opatřen dostatečným množstvím osvětlení.
V případě zájmu je možné budoucímu vlastníkovi dále přenechat objekt prodejny, který je vystavěn z Unimo buněk a tvoří jej vzorková prodejna, kancelář a zázemí pro zaměstnance. Prodejna se zázemím tvoří celek o velikosti zhruba 200 m2, a nachází se vedle haly.
Po dohodě a v případě zájmu, jsme schopni pro nového vlastníka také zajistit demontáž celého objektu. Následnou montáž si už zajišťuje nový vlastník.
Pozemek, na kterém je momentálně hala umístěna, není možné odkoupit, ani si jej dále pronajmout.
Cena je uvedena bez DPH.
V případě zájmu o bližší informace kontaktujte makléře.
Pomocí naší hypoteční kalkulačky si můžete udělat orientační představu o výši měsíčních splátek hypotéky. O vše ostatní se pak postaráme my ve spolupráci s našimi obchodními partnery.
2 834 Kč
* Odhadovaná měsíční splátka vychází z výše úvěru Kč s pevnou úrokovou sazbou % po celou dobu trvání úvěru.
Uživatel serveru RealityMIX.cz (dále jen „Server“) dostupného na internetové adrese (URL) https://www.realitymix.cz, který provozuje společnost DALTEN media s.r.o., se sídlem Na Harfě 916/9a, Praha 9, 190 00, IČO: 271 35 306 (dále jen „Správce“) jako provozovateli tohoto Serveru uděluje svůj výslovný souhlas v souladu s ustanovením § 5 zákona č. 101/2000 Sb. O ochraně osobních údajů a o změně některých zákonů, v platném znění (dále jen „zákon o ochraně osobních údajů“), se zpracováním uživatelem poskytnutých osobních údajů a dalších dat.
Uživatel poskytuje Správci osobní údaje v rozsahu: jméno, příjmení, e-mailová adresa, telefonický kontakt a další data, a to z důvodu projeveného zájmu o nemovitost, kde prostřednictvím služby Serveru Správce osloví Uživatel inzerenta uvedeného v detailu
nemovitosti - JDB REALITY (IČ 07659709) se zájmem o jeho služby.
Uživatel tyto osobní údaje poskytuje dobrovolně a bere na vědomí, že součástí služeb Správce, které Správce Uživateli poskytuje, je vyhledání všech Uživateli vyhovujících (dle parametrů - cena, typ nemovitosti, lokalita atd.) nemovitostí. Správce za tímto účelem provozuje aplikace Hlídací pes a newsletter. Tyto služby je možné z každého zaslaného emailu odhlásit. Souhlas se zpracováním osobních údajů Uživatel poskytuje Správci na dobu neurčitou s tím, že svůj udělený souhlas může Uživatel kdykoliv na drese správce info@realitymix.cz odvolat. Správce garantuje Uživateli i další práva uvedené v ustanovení §11 a §21 zákoba č. 101/200 Sb. Ve znění pozdějších předpisů.
Více informací o zpracování údajů získáte zde (realitymix.cz/zasady-ochrany-osobnich-udaju)