Prodej hezkého, moderního bytu 3+kk 83,6 m² s balkonem a sklepní kójí v ulici Kotlaska, Praha 8 – Li
Hledáte prosvětlený a moderní byt ihned k nastěhování v klidné části Libně, nedaleko zeleně, ale s výbornou dostupností do centra? Nabízíme atraktivní byt 3+kk z roku 2021 v moderní rezidenční budově na Kotlasce.
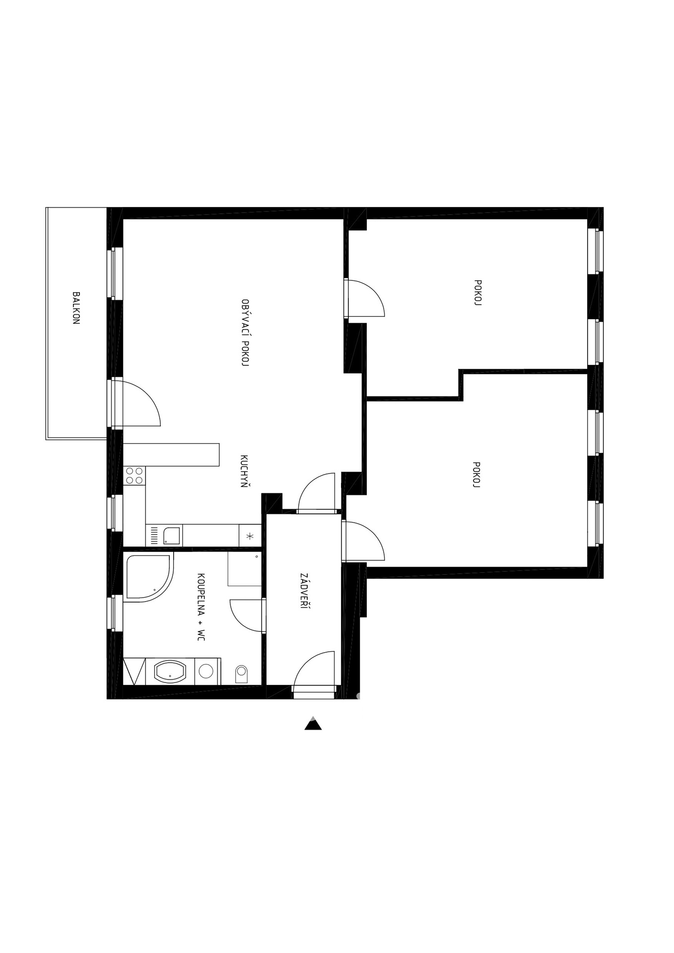
Byt – dispozice a stav
• Dispozice 3+kk (2 ložnice + obývací pokoj s kuchyňským koutem)
• Balkon pro ranní kávu nebo večerní relaxaci
• Sklepní kóje pro úložné prostory
• Koupelna s vanou i sprchovým koutem
• Moderní, světlý interiér s velkými okny
• Stáří bytu pouze 5 let – byt je součástí nové nástavby horních pater
• 5.patro
Celková plocha jednotky: 83,6 m²
Předsíň: 6,6 m²
Pokoj s kuchyňským koutem: 31,2 m²
Ložnice: 17,4 m²
Pokoj: 19,1 m²
Koupelna: 8,4 m²
WC: 0,9 m²
Balkon: 7 m²
Sklep: 2.58m2
Byt je vzdušný a světlý, je prakticky řešený a nabízí příjemné bydlení pro rodinu, pár nebo jednotlivce, kteří hledají kvalitu a pohodlí.
Okolí a volný čas – ideální pro aktivní život. Lokalita Kotlaska v Libni je skvělou kombinací klidu a bohatých možností pro sport i relaxaci. Přímo v okolí ulice (5 minut chůze) se nacházejí tenisové kurty a volejbalové hřiště. Jen pár kroků odtud je park a další zelené plochy (včetně Thomayerových sadů s Libeňským zámkem a Balabenky), kde si můžete užít procházky, běhání, pikniky nebo klidné odpoledne s dětmi. Naproti domu je malé dětské hřiště.
V těsné blízkosti protéká Vltava a říčka Rokytka s významnými cyklostezkami – především páteřní Cyklotrasou A2 (Vltavská pravobřežní) a Cyklotrasou A26 (Rokytka). Ideální místo pro cyklistiku, in-line bruslení, venkovní cvičení i příjemné večerní procházky podél vody. Celá oblast je bohatá na zeleň a nabízí skvělé zázemí pro aktivní i odpočinkový životní styl.
Další výhody lokality
• Kompletní občanská vybavenost do 5–10 minut pěšky (obchody, školy, školky, restaurace, zdravotní péče)
• Výborná dopravní dostupnost – metro Palmovka 7 minut chůze, tramvajová, autobusová a trolejbusová zastávka do 5 minut • Klidná rezidenční ulice v dynamicky se rozvíjející čtvrti Libeň
Pomocí naší hypoteční kalkulačky si můžete udělat orientační představu o výši měsíčních splátek hypotéky. O vše ostatní se pak postaráme my ve spolupráci s našimi obchodními partnery.
46 520 Kč
* Odhadovaná měsíční splátka vychází z výše úvěru Kč s pevnou úrokovou sazbou % po celou dobu trvání úvěru.
Prodáváte nemovitost a potřebujete zjistit její reálnou hodnotu?
Uživatel serveru RealityMIX.cz (dále jen „Server“) dostupného na internetové adrese (URL) https://www.realitymix.cz, který provozuje společnost DALTEN media s.r.o., se sídlem Na Harfě 916/9a, Praha 9, 190 00, IČO: 271 35 306 (dále jen „Správce“) jako provozovateli tohoto Serveru uděluje svůj výslovný souhlas v souladu s ustanovením § 5 zákona č. 101/2000 Sb. O ochraně osobních údajů a o změně některých zákonů, v platném znění (dále jen „zákon o ochraně osobních údajů“), se zpracováním uživatelem poskytnutých osobních údajů a dalších dat.
Uživatel poskytuje Správci osobní údaje v rozsahu: jméno, příjmení, e-mailová adresa, telefonický kontakt a další data, a to z důvodu projeveného zájmu o nemovitost, kde prostřednictvím služby Serveru Správce osloví Uživatel inzerenta uvedeného v detailu
nemovitosti - Moovido s.r.o. (IČ 07006721) se zájmem o jeho služby.
Uživatel tyto osobní údaje poskytuje dobrovolně a bere na vědomí, že součástí služeb Správce, které Správce Uživateli poskytuje, je vyhledání všech Uživateli vyhovujících (dle parametrů - cena, typ nemovitosti, lokalita atd.) nemovitostí. Správce za tímto účelem provozuje aplikace Hlídací pes a newsletter. Tyto služby je možné z každého zaslaného emailu odhlásit. Souhlas se zpracováním osobních údajů Uživatel poskytuje Správci na dobu neurčitou s tím, že svůj udělený souhlas může Uživatel kdykoliv na drese správce info@realitymix.cz odvolat. Správce garantuje Uživateli i další práva uvedené v ustanovení §11 a §21 zákoba č. 101/200 Sb. Ve znění pozdějších předpisů.
Více informací o zpracování údajů získáte zde (realitymix.cz/zasady-ochrany-osobnich-udaju)