© 1999–2026 DALTEN media s.r.o.
Borského, Praha 5, Hlubočepy
9 990 000 KčBorského, Praha 5, Hlubočepy
| Cena: | 9 990 000 Kč |
| Poznámka: | Cena je uvedena včetně provize RK |
| Hypotéka: | od 40 447 Kč/měsíc |
| Datum k nastěhování: | 01.02.2025 |
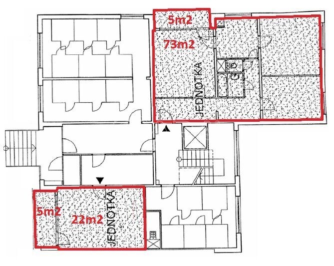
| Dispozice/podlahová plocha: | 4+1/95 m² |
| Číslo zakázky: | REALITYMIX-18422 |
Pomocí naší hypoteční kalkulačky si můžete udělat orientační představu o výši měsíčních splátek hypotéky. O vše ostatní se pak postaráme my ve spolupráci s našimi obchodními partnery.