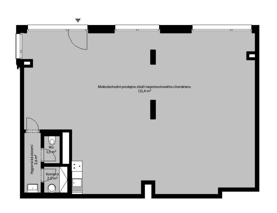
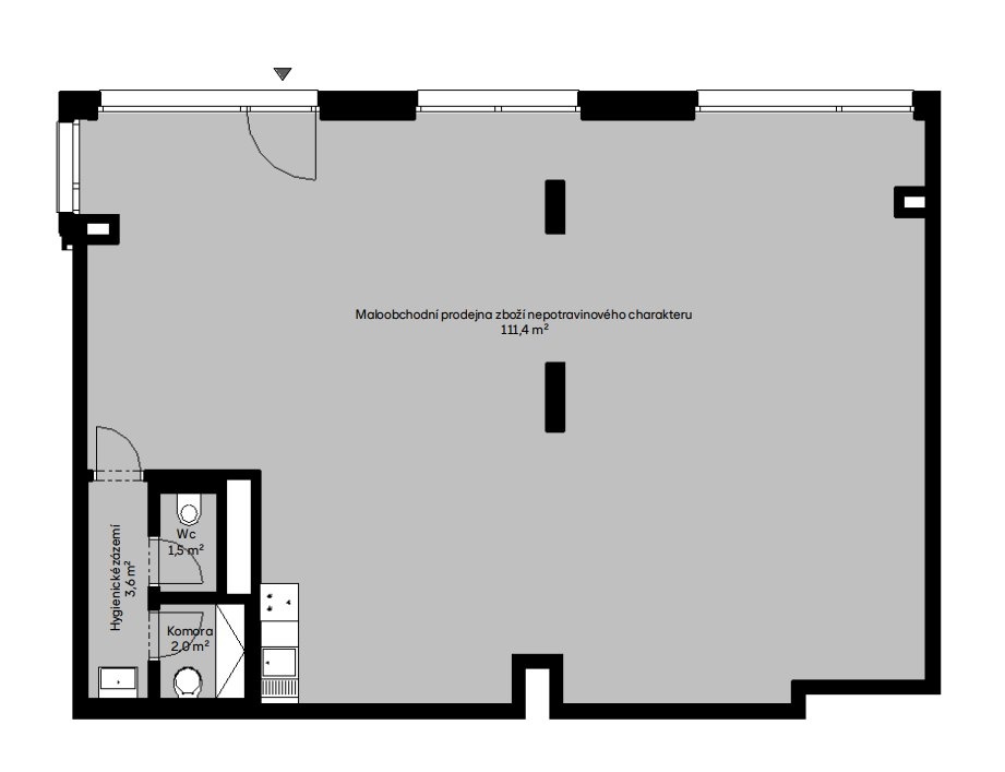
Nabízíme k prodeji moderní komerční prostor v právě dokončovaném projektu Modřanský cukrovar, jedné z atraktivních a rychle se rozvíjejících lokalit podél pražské Vltavy. Prostor je předáván v kolaudačním minimu, připravený k finálnímu doladění dle potřeb vašeho podnikání. Vhodný jako prodejna nepotravinového charakteru, showroom, klientské centrum či jiný typ obchodního provozu.
Modřany procházejí dynamickou transformací – lokalita se mění v moderní městskou čtvrť s vysokou poptávkou po službách a občanské vybavenosti. Nově budované rezidenční projekty přinášejí tisíce nových obyvatel, což vytváří stabilní zákaznickou základnu a silný potenciál pro dlouhodobě prosperující podnikání.
Investiční příležitost s růstovým potenciálem
Komerční prostor v Modřanském cukrovaru představuje bezpečné a perspektivní uložení kapitálu. Oblast prokazatelně roste v hodnotě díky:
Prostor se nachází v přízemí novostavby.
Nabízí: velké výkladce orientované do frekventované pěší zóny,
možnost dispozičního přizpůsobení podle účelu využití,
moderní technologie a energetickou efektivitu.
Pomocí naší hypoteční kalkulačky si můžete udělat orientační představu o výši měsíčních splátek hypotéky. O vše ostatní se pak postaráme my ve spolupráci s našimi obchodními partnery.
50 609 Kč
* Odhadovaná měsíční splátka vychází z výše úvěru Kč s pevnou úrokovou sazbou % po celou dobu trvání úvěru.
Uživatel serveru RealityMIX.cz (dále jen „Server“) dostupného na internetové adrese (URL) https://www.realitymix.cz, který provozuje společnost DALTEN media s.r.o., se sídlem Na Harfě 916/9a, Praha 9, 190 00, IČO: 271 35 306 (dále jen „Správce“) jako provozovateli tohoto Serveru uděluje svůj výslovný souhlas v souladu s ustanovením § 5 zákona č. 101/2000 Sb. O ochraně osobních údajů a o změně některých zákonů, v platném znění (dále jen „zákon o ochraně osobních údajů“), se zpracováním uživatelem poskytnutých osobních údajů a dalších dat.
Uživatel poskytuje Správci osobní údaje v rozsahu: jméno, příjmení, e-mailová adresa, telefonický kontakt a další data, a to z důvodu projeveného zájmu o nemovitost, kde prostřednictvím služby Serveru Správce osloví Uživatel inzerenta uvedeného v detailu
nemovitosti - Skanska Residential a.s. (IČ 02445344) se zájmem o jeho služby.
Uživatel tyto osobní údaje poskytuje dobrovolně a bere na vědomí, že součástí služeb Správce, které Správce Uživateli poskytuje, je vyhledání všech Uživateli vyhovujících (dle parametrů - cena, typ nemovitosti, lokalita atd.) nemovitostí. Správce za tímto účelem provozuje aplikace Hlídací pes a newsletter. Tyto služby je možné z každého zaslaného emailu odhlásit. Souhlas se zpracováním osobních údajů Uživatel poskytuje Správci na dobu neurčitou s tím, že svůj udělený souhlas může Uživatel kdykoliv na drese správce info@realitymix.cz odvolat. Správce garantuje Uživateli i další práva uvedené v ustanovení §11 a §21 zákoba č. 101/200 Sb. Ve znění pozdějších předpisů.
Více informací o zpracování údajů získáte zde (realitymix.cz/zasady-ochrany-osobnich-udaju)