Prodej kancelářské budovy 616 m², Praha 4, Nusle - ihned k využití, parkování + garáže
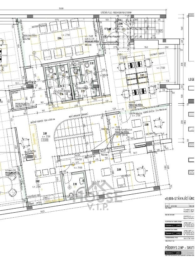
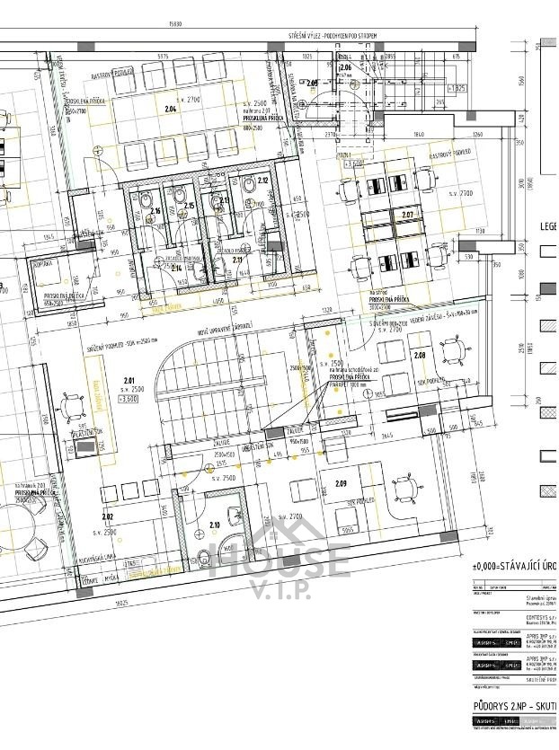
K prodeji nabízíme reprezentativní administrativní budovu o celkové užitné ploše 616 m², situovanou v atraktivní lokalitě Praha 4 - Nusle.
Nemovitost je ve velmi dobrém technickém stavu a připravena k okamžitému využití bez nutnosti dalších investic.
Budova disponuje dvěma nadzemními podlažími a nabízí celkem 20 kanceláří, které lze flexibilně využít jako samostatné kanceláře, open space nebo kombinaci obojího. Díky dispozici a velikosti je vhodná pro sídlo firmy, coworkingové centrum nebo kombinaci administrativy a podnikání.
Součástí objektu je recepce, zasedací místnost, kuchyňka a kompletní sociální zázemí. V suterénu se nachází jídelna a další zázemí pro zaměstnance.
Budova je vybavena klimatizací, strukturovanou kabeláží a zabezpečovacím systémem s napojením na bezpečnostní systém PCO. Vytápění je řešeno centrálním dálkovým topením.
K nemovitosti náleží celkem 5 parkovacích stání na vlastním pozemku a 2 garáže, což zajišťuje dostatečné zázemí pro zaměstnance i návštěvy.
Lokalita nabízí výbornou dopravní dostupnost jak autem, tak MHD, a zároveň kompletní občanskou vybavenost v okolí.
Nemovitost je vhodná jak pro vlastní využití, tak jako investice k pronájmu.
Budova je nabízena formou převodu 100 % akcií účelově založené akciové společnosti.
Pro více informací nebo domluvení prohlídky nás neváhejte kontaktovat.
Pomocí naší hypoteční kalkulačky si můžete udělat orientační představu o výši měsíčních splátek hypotéky. O vše ostatní se pak postaráme my ve spolupráci s našimi obchodními partnery.
198 347 Kč
* Odhadovaná měsíční splátka vychází z výše úvěru Kč s pevnou úrokovou sazbou % po celou dobu trvání úvěru.
Uživatel serveru RealityMIX.cz (dále jen „Server“) dostupného na internetové adrese (URL) https://www.realitymix.cz, který provozuje společnost DALTEN media s.r.o., se sídlem Na Harfě 916/9a, Praha 9, 190 00, IČO: 271 35 306 (dále jen „Správce“) jako provozovateli tohoto Serveru uděluje svůj výslovný souhlas v souladu s ustanovením § 5 zákona č. 101/2000 Sb. O ochraně osobních údajů a o změně některých zákonů, v platném znění (dále jen „zákon o ochraně osobních údajů“), se zpracováním uživatelem poskytnutých osobních údajů a dalších dat.
Uživatel poskytuje Správci osobní údaje v rozsahu: jméno, příjmení, e-mailová adresa, telefonický kontakt a další data, a to z důvodu projeveného zájmu o nemovitost, kde prostřednictvím služby Serveru Správce osloví Uživatel inzerenta uvedeného v detailu
nemovitosti - House ViP, s.r.o. (IČ 06880754) se zájmem o jeho služby.
Uživatel tyto osobní údaje poskytuje dobrovolně a bere na vědomí, že součástí služeb Správce, které Správce Uživateli poskytuje, je vyhledání všech Uživateli vyhovujících (dle parametrů - cena, typ nemovitosti, lokalita atd.) nemovitostí. Správce za tímto účelem provozuje aplikace Hlídací pes a newsletter. Tyto služby je možné z každého zaslaného emailu odhlásit. Souhlas se zpracováním osobních údajů Uživatel poskytuje Správci na dobu neurčitou s tím, že svůj udělený souhlas může Uživatel kdykoliv na drese správce info@realitymix.cz odvolat. Správce garantuje Uživateli i další práva uvedené v ustanovení §11 a §21 zákoba č. 101/200 Sb. Ve znění pozdějších předpisů.
Více informací o zpracování údajů získáte zde (realitymix.cz/zasady-ochrany-osobnich-udaju)