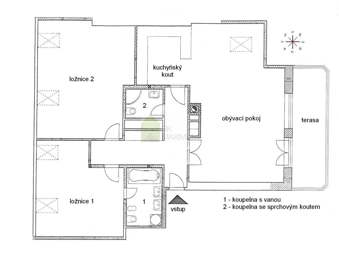
Exkluzívně nabízíme k prodeji krásný světlý byt s velkou SZ orientovanou terasou a nádherným výhledem na Prahu. Poslední 6. NP cihlového výborně udržovaného činžovního domu s výtahem na prestižní adrese v Praze 4 - Podolí. Byt o dispozici 3+kk (s možností změny na 4+kk), plocha bytu 137 m2 + terasa 13m2 + sklep) , rok výstavby 2003, výborný technický stav. K dispozici jsou prostorný obývací pokoj s kuchyňským a jídelním koutem, dvě velké ložnice s vestavěnými skříněmi, jedna koupelna se 2 umyvadly, vanou, bidetem a toaletou, druhá koupelna se sprchovým koutem a toaletou a předsíň s vestavěnými skříněmi. V obývacím pokoji je klimatizační jednotka. Přesnější dispozici bytu vidíte na plánku. Terasa byla nově obložena v r. 2025, sklep je zděný, velký a velmi dobře zabezpečený. Bezproblémové parkování v blízkém okolí, modrá zóna. Výborná dopravní dostupnost do centra tramvají, příp. 5 min busem na metro C. V místě je veškerá občanská vybavenost, v těsné blízkosti vltavské nábřeží s cyklostezkou, hřišti, loděnicí, plaveckým stadionem a dalšími možnostmi sportovního vyžití. Velice příjemné bydlení jak pro pár, tak pro rodinu s dětmi. Makléřka telefonicky sdělí doplňující informace. Prohlídky možné od 1.3.2026, nastěhování po 1.6.2026.
Pomocí naší hypoteční kalkulačky si můžete udělat orientační představu o výši měsíčních splátek hypotéky. O vše ostatní se pak postaráme my ve spolupráci s našimi obchodními partnery.
101 218 Kč
* Odhadovaná měsíční splátka vychází z výše úvěru Kč s pevnou úrokovou sazbou % po celou dobu trvání úvěru.
Prodáváte nemovitost a potřebujete zjistit její reálnou hodnotu?
Uživatel serveru RealityMIX.cz (dále jen „Server“) dostupného na internetové adrese (URL) https://www.realitymix.cz, který provozuje společnost DALTEN media s.r.o., se sídlem Na Harfě 916/9a, Praha 9, 190 00, IČO: 271 35 306 (dále jen „Správce“) jako provozovateli tohoto Serveru uděluje svůj výslovný souhlas v souladu s ustanovením § 5 zákona č. 101/2000 Sb. O ochraně osobních údajů a o změně některých zákonů, v platném znění (dále jen „zákon o ochraně osobních údajů“), se zpracováním uživatelem poskytnutých osobních údajů a dalších dat.
Uživatel poskytuje Správci osobní údaje v rozsahu: jméno, příjmení, e-mailová adresa, telefonický kontakt a další data, a to z důvodu projeveného zájmu o nemovitost, kde prostřednictvím služby Serveru Správce osloví Uživatel inzerenta uvedeného v detailu
nemovitosti - RK Maximum (IČ 28436539) se zájmem o jeho služby.
Uživatel tyto osobní údaje poskytuje dobrovolně a bere na vědomí, že součástí služeb Správce, které Správce Uživateli poskytuje, je vyhledání všech Uživateli vyhovujících (dle parametrů - cena, typ nemovitosti, lokalita atd.) nemovitostí. Správce za tímto účelem provozuje aplikace Hlídací pes a newsletter. Tyto služby je možné z každého zaslaného emailu odhlásit. Souhlas se zpracováním osobních údajů Uživatel poskytuje Správci na dobu neurčitou s tím, že svůj udělený souhlas může Uživatel kdykoliv na drese správce info@realitymix.cz odvolat. Správce garantuje Uživateli i další práva uvedené v ustanovení §11 a §21 zákoba č. 101/200 Sb. Ve znění pozdějších předpisů.
Více informací o zpracování údajů získáte zde (realitymix.cz/zasady-ochrany-osobnich-udaju)