Prodej luxusního mobilního domu 32 m² – ideální pro glamping / investici / rekreaci / bydlení
Prodej 2× luxusní mobilní dům (mobilheim)
Nabízíme k prodeji dva moderní prémiové mobilní domy (mobilheimy), 32 m² ve stejném stylu, vhodné pro bydlení, glamping, pronájem, rekreační bydlení nebo investiční projekt. Domy jsou komfortně vybavené a navržené pro celoroční využití – stačí připravit místo, napojení a můžete fungovat.
Oba mobilheimy mají panoramatickou střechu (pro maximální světlo a „wow efekt“), podlahové vytápění, klimatizaci, elektrické závěsy a moderní ovládání prvků domu. Vstup je řešený otevíráním zámku na kód nebo kartu. U jednoho domu je navíc u vybraného okna místo závěsu instalované projekční plátno – ideální na večerní promítání.
Součástí je kompletní zázemí: ložnice, koupelna se sprchou a WC, obytný prostor, připravené rozvody a elektroinstalace. Jeden z domů má navíc balkon, který výrazně zvyšuje atraktivitu pro pronájem.
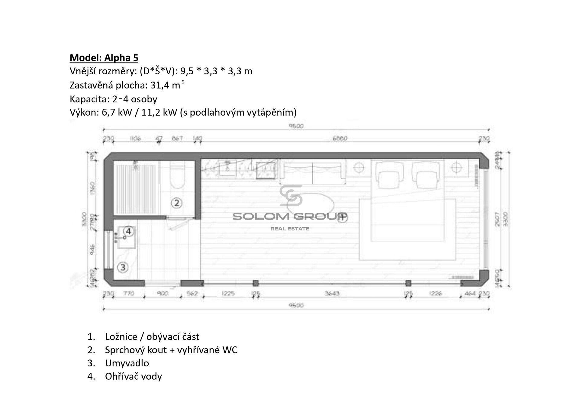
Základní parametry
2× mobilní dům, kapacita celkem dle typu (1 dům pro 2–4 osoby, 1 dům pro 2 osoby)
Rozměry cca 9–9,5 m délka × 3,3 m šířka, plocha cca 30–32 m² / kus
Hmotnost cca 7–8 tun / kus
Balkon u jednoho z domů
Panoramatická střecha
Podlahové vytápění
Klimatizace
Vařívané WC
Elektrické závěsy
Vstupní zámek na kód nebo kartu
U jednoho domu projekční plátno místo závěsu u okna
Kompletní elektro 220 V + proudový chránič
Připravené rozvody vody a odpadu, koupelna (sprcha, WC, umyvadlo)
* přeprava na standardním návěsu (šířka ≥ 3 m) instalace pomocí jeřábu (doporučeno ≥ 25 t)
* připraveno na napojení vody/kanalizace/elektřiny
* nabízíme možnost pomoci s logistikou a instalací dle domluvy
Cena je uvedena za kus. Zvýhodněná cena při koupi obou domů.
Záruka 2 roky na konstrukce a 1 rok na elektrospotřebiče.
Pomocí naší hypoteční kalkulačky si můžete udělat orientační představu o výši měsíčních splátek hypotéky. O vše ostatní se pak postaráme my ve spolupráci s našimi obchodními partnery.
4 858 Kč
* Odhadovaná měsíční splátka vychází z výše úvěru Kč s pevnou úrokovou sazbou % po celou dobu trvání úvěru.
Uživatel serveru RealityMIX.cz (dále jen „Server“) dostupného na internetové adrese (URL) https://www.realitymix.cz, který provozuje společnost DALTEN media s.r.o., se sídlem Na Harfě 916/9a, Praha 9, 190 00, IČO: 271 35 306 (dále jen „Správce“) jako provozovateli tohoto Serveru uděluje svůj výslovný souhlas v souladu s ustanovením § 5 zákona č. 101/2000 Sb. O ochraně osobních údajů a o změně některých zákonů, v platném znění (dále jen „zákon o ochraně osobních údajů“), se zpracováním uživatelem poskytnutých osobních údajů a dalších dat.
Uživatel poskytuje Správci osobní údaje v rozsahu: jméno, příjmení, e-mailová adresa, telefonický kontakt a další data, a to z důvodu projeveného zájmu o nemovitost, kde prostřednictvím služby Serveru Správce osloví Uživatel inzerenta uvedeného v detailu
nemovitosti - Solom group s.r.o. (IČ 07026919) se zájmem o jeho služby.
Uživatel tyto osobní údaje poskytuje dobrovolně a bere na vědomí, že součástí služeb Správce, které Správce Uživateli poskytuje, je vyhledání všech Uživateli vyhovujících (dle parametrů - cena, typ nemovitosti, lokalita atd.) nemovitostí. Správce za tímto účelem provozuje aplikace Hlídací pes a newsletter. Tyto služby je možné z každého zaslaného emailu odhlásit. Souhlas se zpracováním osobních údajů Uživatel poskytuje Správci na dobu neurčitou s tím, že svůj udělený souhlas může Uživatel kdykoliv na drese správce info@realitymix.cz odvolat. Správce garantuje Uživateli i další práva uvedené v ustanovení §11 a §21 zákoba č. 101/200 Sb. Ve znění pozdějších předpisů.
Více informací o zpracování údajů získáte zde (realitymix.cz/zasady-ochrany-osobnich-udaju)