Představte si ráno s kávou na lodžii, klidné bydlení v moderním domě a prostor, který přirozeně propojuje komfort, světlo a funkčnost. Právě takový pocit nabízí tento byt v oblíbené lokalitě Praha - Letňany.
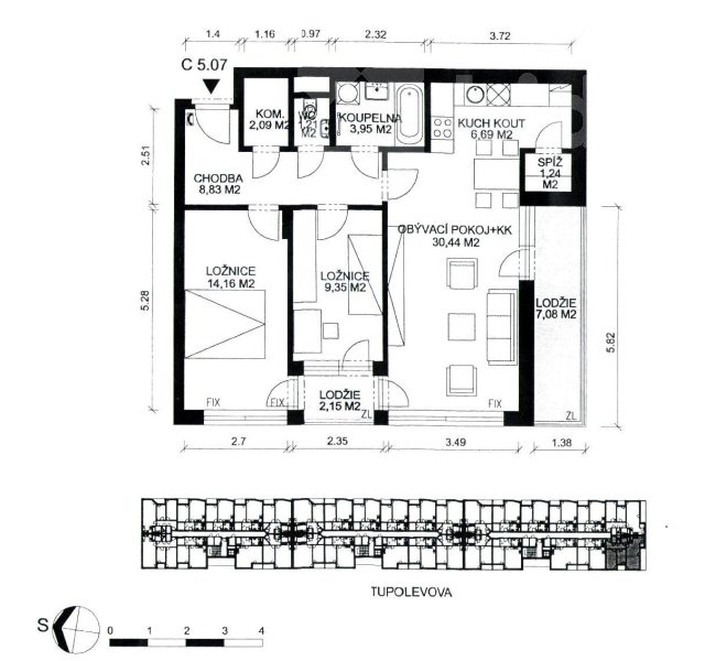
Nabízíme k prodeji světlý a velmi příjemný byt o dispozici 3+kk a celkové ploše 76,83 m², který se nachází v moderní novostavbě z roku 2019 na adrese Tupolevova, Praha 9 - Letňany.
Dominantou bytu je prostorný obývací pokoj s kuchyňským koutem a jídelní částí, který tvoří přirozené centrum celého bytu. Díky velkým oknům a přístupu na lodžii je prostor krásně prosvětlený a působí velmi vzdušně.
Kuchyňská linka je řešena v moderním designu s důrazem na praktičnost a každodenní komfort. Dispozice bytu nabízí dva samostatné pokoje, ideální jako ložnice a dětský pokoj nebo pracovna.
Velkým benefitem jsou dvě lodžie, které rozšiřují obytný prostor a poskytují ideální místo pro relaxaci - ať už ráno u kávy nebo večer po práci.
Součástí prodeje je také garážové stání v domě, což zajišťuje maximální pohodlí a bezpečné parkování bez kompromisů.
Byt je ve velmi dobrém stavu s drobnými kosmetickými úpravami po předchozím nájemci, které lze snadno přizpůsobit dle vlastních představ.
Lokalita Letňany nabízí kompletní občanskou vybavenost - školy, školky, obchody, restaurace i výbornou dopravní dostupnost do centra Prahy.
V dané kategorii novostaveb a lokalitě se jedná o velmi zajímavou nabídku, která spojuje moderní bydlení, praktičnost a dlouhodobou hodnotu.
Tento byt nabízí kombinaci komfortu, prostoru a příjemné atmosféry, kterou je nejlepší zažít osobně.
✔ novostavba z roku 2019
✔ dispozice 3+kk, 76,83 m²
✔ 2 lodžie
✔ garážové stání v domě
✔ praktické dispoziční řešení
✔ světlý a vzdušný interiér
✔ výborná dostupnost do centra
✔ ideální pro vlastní bydlení i investici
Pro více informací nebo sjednání prohlídky mě neváhejte kontaktovat.
Pomocí naší hypoteční kalkulačky si můžete udělat orientační představu o výši měsíčních splátek hypotéky. O vše ostatní se pak postaráme my ve spolupráci s našimi obchodními partnery.
49 536 Kč
* Odhadovaná měsíční splátka vychází z výše úvěru Kč s pevnou úrokovou sazbou % po celou dobu trvání úvěru.
Prodáváte nemovitost a potřebujete zjistit její reálnou hodnotu?
Uživatel serveru RealityMIX.cz (dále jen „Server“) dostupného na internetové adrese (URL) https://www.realitymix.cz, který provozuje společnost DALTEN media s.r.o., se sídlem Na Harfě 916/9a, Praha 9, 190 00, IČO: 271 35 306 (dále jen „Správce“) jako provozovateli tohoto Serveru uděluje svůj výslovný souhlas v souladu s ustanovením § 5 zákona č. 101/2000 Sb. O ochraně osobních údajů a o změně některých zákonů, v platném znění (dále jen „zákon o ochraně osobních údajů“), se zpracováním uživatelem poskytnutých osobních údajů a dalších dat.
Uživatel poskytuje Správci osobní údaje v rozsahu: jméno, příjmení, e-mailová adresa, telefonický kontakt a další data, a to z důvodu projeveného zájmu o nemovitost, kde prostřednictvím služby Serveru Správce osloví Uživatel inzerenta uvedeného v detailu
nemovitosti - Bidli reality, a.s. (IČ 06790763) se zájmem o jeho služby. Tato společnost je součástí seskupení/sítě/franšízového modelu realitních kanceláří, jejich seznam můžete zobrazit kliknutím na tento odkaz.
Hypocentrum modré pyramidy - Praha (IČ ) , Hypocentrum modré pyramidy - Brno (IČ ) , Hypocentrum Modré pyramidy - Hradec Králové (IČ ) , Hypocentrum Modré pyramidy - České Budějovice (IČ ) , Hypocentrum Modré pyramidy - Pardubice (IČ ) , Hypocentrum Modré pyramidy - Plzeň (IČ ) , Hypocentrum Modré pyramidy - Ústí nad Labem (IČ ) , Hypocentrum Modré pyramidy - Ostrava (IČ ) , Hypocentrum Modré pyramidy - Olomouc (IČ ) , Bidli reality, a.s. (IČ 06790763)
Uživatel tyto osobní údaje poskytuje dobrovolně a bere na vědomí, že součástí služeb Správce, které Správce Uživateli poskytuje, je vyhledání všech Uživateli vyhovujících (dle parametrů - cena, typ nemovitosti, lokalita atd.) nemovitostí. Správce za tímto účelem provozuje aplikace Hlídací pes a newsletter. Tyto služby je možné z každého zaslaného emailu odhlásit. Souhlas se zpracováním osobních údajů Uživatel poskytuje Správci na dobu neurčitou s tím, že svůj udělený souhlas může Uživatel kdykoliv na drese správce info@realitymix.cz odvolat. Správce garantuje Uživateli i další práva uvedené v ustanovení §11 a §21 zákoba č. 101/200 Sb. Ve znění pozdějších předpisů.
Více informací o zpracování údajů získáte zde (realitymix.cz/zasady-ochrany-osobnich-udaju)