Prodej nového podkrovního bytu 3+kk s terasou, Praha 7 - Holešovice
Hledáte na výjimečném místě, výjimečný podkrovní byt? Velký, atypicky řešený, s terasou do vnitrobloku? Jste kreativní, upřednostníte, aby finální řešení interiéru bylo bez kompromisů jen podle Vašich představ a preferencí? Chtěli byste sami určit výběr podlah, či rozhodnout o designu a barvě kuchyňské linky? Přitom rozhodně nemáte chuť podstoupit vleklé procesy povolení stavby a jejího základního řešení? Zkrátka najít téměř vše hotové, jen si užít závěrečný výběr zařízení? V tom případě jste právě otevřeli správný inzerát.
Co vše Vám můžeme nabídnout?
✔ Novostavbu podkrovního bytu z roku 2021 v osobním vlastnictví
✔ 3+kk s francouzskými okny a dvěma vstupy na terasu před dokončením
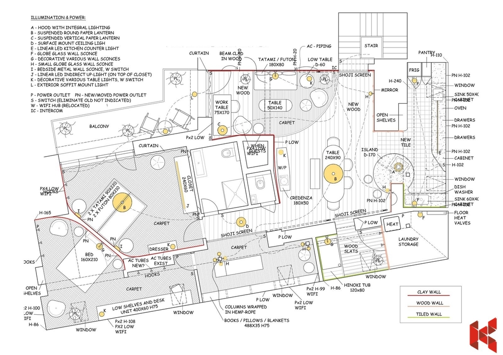
✔ Zajímavou, netypickou dispozici s užitnou plochou 119,8 m²
✔ Terasu - dalších 11 m² s jihozápadní orientací do vnitrobloku
✔ Celkovou plochu 130,8 m2
✔ 7. a 8. podlaží, výtah
✔ Orientaci převážně na jih se světlem po celý den
✔ Ticho, klid a soukromí
✔ Prestižní pražskou adresu v historické části vyhledávané lokality Holešovic
✔ Provizi, právní servis, bezpečné úschovy a veškeré poplatky zahrnuté v ceně
✔ Možnost financováni hypotékou
Co je bytě již hotové:
✔ Omítnuté zdi, sádrokartonové stropy, většina příček
✔ Zateplení
✔ Zádveří s točitými schody do bytu
✔ Terasa se zábradlím, izolací a elektrickými žaluziemi
✔ Kompletní příprava pro instalaci kuchyňské linky
✔ Koupelna s umývadlem, WC a sprchovým koutem
✔ Druhé samostatné WC
✔ Elektroinstalace, kabelové rozvody, příprava pro klimatizaci
✔ Rozvody vody, odpady
✔ Elektroměr, plynoměr
✔ Kondenzační plynový kotel a ohřev vody – v provozu
✔ Podlahy včetně vytápění
Co je potřeba dokončit?
✔ Krytiny podlah
✔ Instalace kuchyňské linky
✔ Některé příčky – lze rozhodnout o velikosti některých místností
✔ Finální povrch terasy, markýzu
✔ Klimatizační jednotky
✔ Dveře, zárubně
✔ Odhadovaná cena k dokončení je cca 1 mil. Kč, v časovém horizontu pár měsíců.
Znáte dobře lokalitu a zajímavosti v blízkosti? Celá Praha 7 v posledních letech zaznamenává obrovskou změnu v kultuře života. Kromě níže zmíněných zajímavostí bude v brzké době dokončena modernizace Výstaviště. V plánu je také unikátní projekt Vltavské filharmonie. Tento projekt, který kromě nádherné architektury zásadně změní i veřejný prostor, budete mít cca 400 m od domu, což jistě zvýší cenu této nemovitosti.
Pár příkladů z okolí :
✔ Nejkrásnější a největší pražský park Stromovka – 800 m
✔ Veletržní palác a Národní Galerie - 200 m
✔ Výstaviště - 720 m
✔ Letná, stadion Sparta - 1,2 km
✔ Kino OKO - 160 m
✔ Nákupní centrum Stromovka - 420 m
✔ Zastávka tramvají 1,6,8,17,25,26 Strossmayerovo nám. - 80 m
✔ Metro C-Vltavská - 500 m
✔ Metro B-Nám. Republiky - 2 zastávky tramvají
✔ Hradčany - 2,5 km
✔ ZŠ s výbornou reputací 240 m
✔ Lékaři, obchody, restaurace, kavárny, kultura a vše ostatní - na dosah
Vše se do inzerátu nevejde. Přijďte se přesvědčit, srdečně zveme na prohlídku.
Prodávající si vyhrazují právo vybrat kupujícího na základě jím zvolených kritérií.
Cena:
17 990 000 Kč
Poznámka:
vč. provize, právního servisu, bezpečné úschovy a všech poplatků
Pomocí naší hypoteční kalkulačky si můžete udělat orientační představu o výši měsíčních splátek hypotéky. O vše ostatní se pak postaráme my ve spolupráci s našimi obchodními partnery.
72 837 Kč
* Odhadovaná měsíční splátka vychází z výše úvěru Kč s pevnou úrokovou sazbou % po celou dobu trvání úvěru.
Prodáváte nemovitost a potřebujete zjistit její reálnou hodnotu?
Uživatel serveru RealityMIX.cz (dále jen „Server“) dostupného na internetové adrese (URL) https://www.realitymix.cz, který provozuje společnost DALTEN media s.r.o., se sídlem Na Harfě 916/9a, Praha 9, 190 00, IČO: 271 35 306 (dále jen „Správce“) jako provozovateli tohoto Serveru uděluje svůj výslovný souhlas v souladu s ustanovením § 5 zákona č. 101/2000 Sb. O ochraně osobních údajů a o změně některých zákonů, v platném znění (dále jen „zákon o ochraně osobních údajů“), se zpracováním uživatelem poskytnutých osobních údajů a dalších dat.
Uživatel poskytuje Správci osobní údaje v rozsahu: jméno, příjmení, e-mailová adresa, telefonický kontakt a další data, a to z důvodu projeveného zájmu o nemovitost, kde prostřednictvím služby Serveru Správce osloví Uživatel inzerenta uvedeného v detailu
nemovitosti - Realitní kancelář KOTULA s.r.o. (IČ 24251925) se zájmem o jeho služby.
Uživatel tyto osobní údaje poskytuje dobrovolně a bere na vědomí, že součástí služeb Správce, které Správce Uživateli poskytuje, je vyhledání všech Uživateli vyhovujících (dle parametrů - cena, typ nemovitosti, lokalita atd.) nemovitostí. Správce za tímto účelem provozuje aplikace Hlídací pes a newsletter. Tyto služby je možné z každého zaslaného emailu odhlásit. Souhlas se zpracováním osobních údajů Uživatel poskytuje Správci na dobu neurčitou s tím, že svůj udělený souhlas může Uživatel kdykoliv na drese správce info@realitymix.cz odvolat. Správce garantuje Uživateli i další práva uvedené v ustanovení §11 a §21 zákoba č. 101/200 Sb. Ve znění pozdějších předpisů.
Více informací o zpracování údajů získáte zde (realitymix.cz/zasady-ochrany-osobnich-udaju)