Prodej pěkného bytu 4+kk, plocha 145m2, Tolstého, Praha 10 - Vršovice, osobní vlastnictví, mezonet.
Nabízíme k prodeji zajímavý byt 4+kk s podlahovou plochou 145m2, situovaný v atraktivní lokalitě Vršovic - Praha 10, ulice Tolstého.
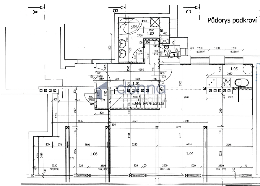
Tento dvouúrovňový byt je umístěný ve 4. podkrovním patře s mezonetem, v cihlovém domě bez výtahu a nabízí zajímavé bydlení v klidném udržovaném domě pouze se šestnácti bytovými jednotkami.
Spodní patro tvoří vstupní chodba s šatní skříní, světlá členitá ložnice, koupelna s vanou a dvěma umyvadly a samostatná toaleta. Hlavní obytnou plochou je velký otevřený prostor propojující obývací pokoj s jídelní částí, prakticky navržen je i oddělený kuchyňský kout s moderní kuchyňskou linkou a spotřebiči nabízející dostatek místa pro kulinářské umění. Z této části také vedou schody do horního patra.
Horní mezonetové patro nabízí 2 samostatné pokoje se střešními okny dodávající přirozené prosvětlení.
Dispozice bytu nabízí praktické rozdělení jednotlivých zón i příjemnou míru soukromí. Zajímavost mu dodávají dřevěné trámy, zkosené stěny nebránící pohybu a dobře vyřešené osvětlení celého prostoru. Celoroční pohodlí - topení a ohřev vody zajišťuje vlastní elektrokotel s radiátory.
Osobní vlastnictví.
Měsíční náklady: 2 800 Kč včetně fondu oprav.
Zálohy na elektřinu: 6 000 Kč.
Bonus: příjem z pronájmu společných prostor.
Vršovice patří mezi dlouhodobě velmi vyhledávanou lokalitu nabízející kombinaci městského života a zeleně. Samozřejmostí je veškerá občanská vybavenost - obchody, restaurace, školy a dalších služby, což činí život v této lokalitě velmi pohodlným. Skvělá dostupnost městské dopravy (MHD) zajišťuje rychlé spojení s centrem města.
V případě zájmu o prohlídku nás neváhejte kontaktovat.
Pomocí naší hypoteční kalkulačky si můžete udělat orientační představu o výši měsíčních splátek hypotéky. O vše ostatní se pak postaráme my ve spolupráci s našimi obchodními partnery.
82 594 Kč
* Odhadovaná měsíční splátka vychází z výše úvěru Kč s pevnou úrokovou sazbou % po celou dobu trvání úvěru.
Prodáváte nemovitost a potřebujete zjistit její reálnou hodnotu?
Uživatel serveru RealityMIX.cz (dále jen „Server“) dostupného na internetové adrese (URL) https://www.realitymix.cz, který provozuje společnost DALTEN media s.r.o., se sídlem Na Harfě 916/9a, Praha 9, 190 00, IČO: 271 35 306 (dále jen „Správce“) jako provozovateli tohoto Serveru uděluje svůj výslovný souhlas v souladu s ustanovením § 5 zákona č. 101/2000 Sb. O ochraně osobních údajů a o změně některých zákonů, v platném znění (dále jen „zákon o ochraně osobních údajů“), se zpracováním uživatelem poskytnutých osobních údajů a dalších dat.
Uživatel poskytuje Správci osobní údaje v rozsahu: jméno, příjmení, e-mailová adresa, telefonický kontakt a další data, a to z důvodu projeveného zájmu o nemovitost, kde prostřednictvím služby Serveru Správce osloví Uživatel inzerenta uvedeného v detailu
nemovitosti - Realitní kancelář Donna s.r.o. (IČ 02518546) se zájmem o jeho služby.
Uživatel tyto osobní údaje poskytuje dobrovolně a bere na vědomí, že součástí služeb Správce, které Správce Uživateli poskytuje, je vyhledání všech Uživateli vyhovujících (dle parametrů - cena, typ nemovitosti, lokalita atd.) nemovitostí. Správce za tímto účelem provozuje aplikace Hlídací pes a newsletter. Tyto služby je možné z každého zaslaného emailu odhlásit. Souhlas se zpracováním osobních údajů Uživatel poskytuje Správci na dobu neurčitou s tím, že svůj udělený souhlas může Uživatel kdykoliv na drese správce info@realitymix.cz odvolat. Správce garantuje Uživateli i další práva uvedené v ustanovení §11 a §21 zákoba č. 101/200 Sb. Ve znění pozdějších předpisů.
Více informací o zpracování údajů získáte zde (realitymix.cz/zasady-ochrany-osobnich-udaju)