Prodej řadového rodinného domu 221 m2 + pozemek 229 m2, Praha 4 Krč
Exkluzivně nabízíme prodej dvougeneračního třípodlažního řadového rodinného domu Praha 4 Krč, ulice Perlitová.
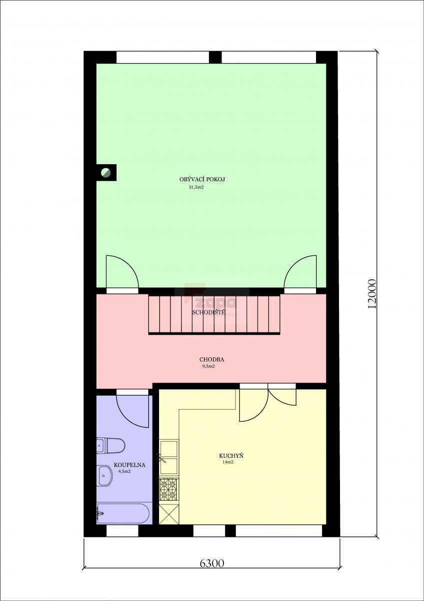
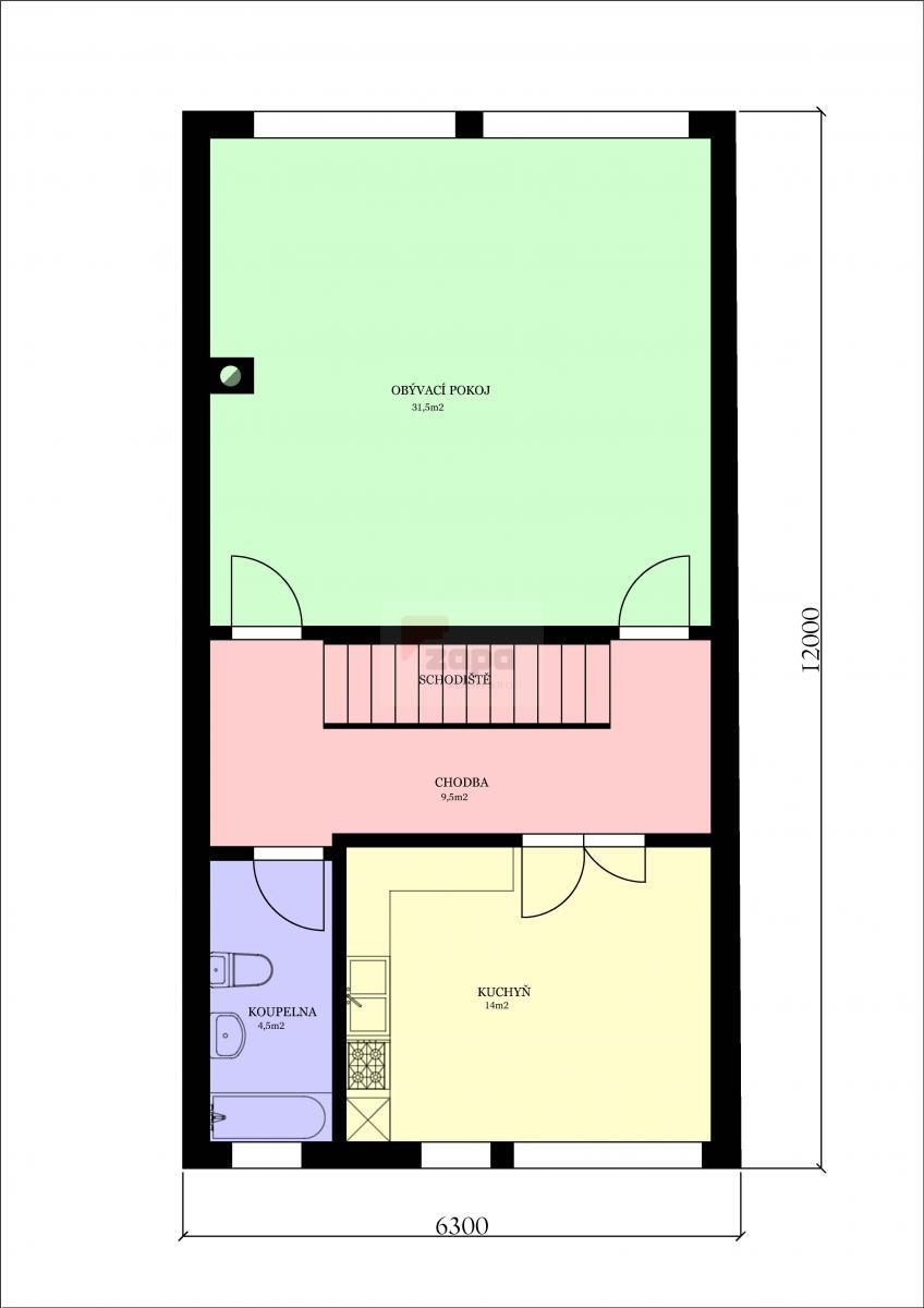
Podlahová plocha domu činí 221 m2, plocha rovinatého pozemku 229 m2.
V prvním podlaží je k dispozici bytová jednotka 1+kk s terasou a vstupem na zahradu, garáž a technická místnost.
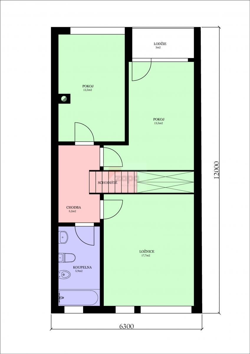
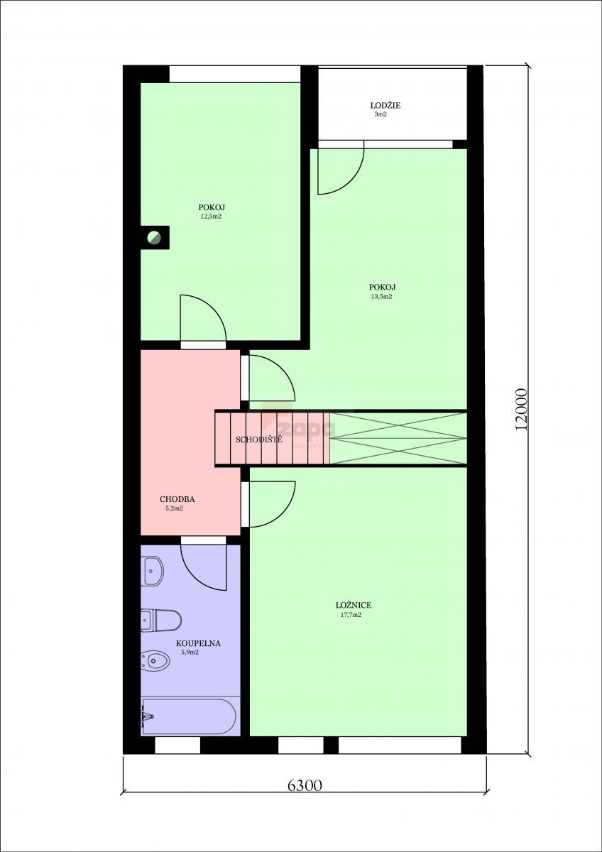
Druhé a třetí podlaží tvoří bytová jednotka 4+1 se dvěma koupelnami a lodžií.
Terasa a zahrada jsou orientovány na jihovýchod, do klidné zeleně, vstup do domu na severozápad.
Dům, kolaudovaný v roce 1992, prošel částečnou rekonstrukcí - nové rozvody vody, nová eurookna.
Topení a ohřev vody zajišťuje plynový etážový kotel.
Třída energetické náročnosti budovy je C - úsporná.
Ulice Perlitová je jednosměrná, velmi klidná.
Nemovitost je v blízkosti metra Pankrác a Budějovická, těsně vedla sportovního areálu SK Oaza.
V okolí je veškerá občanská vybavenost - školy, školka, poliklinika, obchody.
Dům je možné využít jak k bydlení, tak i k podnikání.
Prohlídky jsou možné ihned, cena je včetně provize.
Koupi lze financovat prostřednictvím hypotečního úvěru, který Vám pomůžeme vyřídit.
Pomocí naší hypoteční kalkulačky si můžete udělat orientační představu o výši měsíčních splátek hypotéky. O vše ostatní se pak postaráme my ve spolupráci s našimi obchodními partnery.
96 967 Kč
* Odhadovaná měsíční splátka vychází z výše úvěru Kč s pevnou úrokovou sazbou % po celou dobu trvání úvěru.
Uživatel serveru RealityMIX.cz (dále jen „Server“) dostupného na internetové adrese (URL) https://www.realitymix.cz, který provozuje společnost DALTEN media s.r.o., se sídlem Na Harfě 916/9a, Praha 9, 190 00, IČO: 271 35 306 (dále jen „Správce“) jako provozovateli tohoto Serveru uděluje svůj výslovný souhlas v souladu s ustanovením § 5 zákona č. 101/2000 Sb. O ochraně osobních údajů a o změně některých zákonů, v platném znění (dále jen „zákon o ochraně osobních údajů“), se zpracováním uživatelem poskytnutých osobních údajů a dalších dat.
Uživatel poskytuje Správci osobní údaje v rozsahu: jméno, příjmení, e-mailová adresa, telefonický kontakt a další data, a to z důvodu projeveného zájmu o nemovitost, kde prostřednictvím služby Serveru Správce osloví Uživatel inzerenta uvedeného v detailu
nemovitosti - ZAPA reality, s.r.o. (IČ 26757656) se zájmem o jeho služby.
Uživatel tyto osobní údaje poskytuje dobrovolně a bere na vědomí, že součástí služeb Správce, které Správce Uživateli poskytuje, je vyhledání všech Uživateli vyhovujících (dle parametrů - cena, typ nemovitosti, lokalita atd.) nemovitostí. Správce za tímto účelem provozuje aplikace Hlídací pes a newsletter. Tyto služby je možné z každého zaslaného emailu odhlásit. Souhlas se zpracováním osobních údajů Uživatel poskytuje Správci na dobu neurčitou s tím, že svůj udělený souhlas může Uživatel kdykoliv na drese správce info@realitymix.cz odvolat. Správce garantuje Uživateli i další práva uvedené v ustanovení §11 a §21 zákoba č. 101/200 Sb. Ve znění pozdějších předpisů.
Více informací o zpracování údajů získáte zde (realitymix.cz/zasady-ochrany-osobnich-udaju)