Prodej RD 6+1, podlahová plocha 137 m2, Praha 10 - Hostivař, pozemek 303 m2
Nabízíme k prodeji útulný rodinný dům o dispozici 6+1 a podlahové ploše 137 m and sup2;, situovaný v žádané lokalitě Praha 10 Hostivař. Celková výměra pozemku činí 303 m and sup2;.
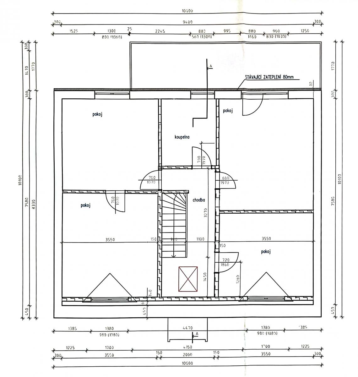
Dům je dvoupodlažní. V roce 2001 prošel kompletní rekonstrukcí včetně nástavby horního patra. Přízemí je zděné (cihla), zatímco přístavba do zahrady a horní podlaží jsou postaveny z Ytongu. Nemovitost je zateplena polystyrenem (8 cm), střecha je izolována minerální vatou (2× 8 cm). Střešní krytina směrem do ulice je betonová taška, do zahrady plechová.
Okna i vstupní dveře jsou plastová, elektroinstalace v mědi, rozvody vody a odpadu v plastu. Vytápění zajišťuje elektrokotel (2× 4 kW), ohřev vody bojler Dražice o objemu 160 l řízený HDO. Podlahy tvoří kombinace plovoucích podlah v obytných místnostech a dlažby v ostatních částech domu. Kuchyňská linka byla instalována v roce 2022.
Dispozice domu:
Přízemí: obývací pokoj, kuchyně, pokoj, chodba s předsíní, prostor pod schody, koupelna s vanou, samostatné WC, komora, technická místnost a malý sklep pod koupelnou.
Patro: čtyři pokoje, koupelna se sprchovým koutem a WC, z jedné ložnice vstup na terasu/balkon.
Na pozemku se nachází dílna/sklad (7 m and sup2;) a parkovací přístřešek pro automobil. Předzahrádka má 54 m and sup2;, zahrada za domem 141 m and sup2;.
Dům vyžaduje částečné úpravy, zejména dokončení finální vrstvy fasády, kde došlo k nevhodnému použití štuku pod barvou, který se místy odlupuje. Zábradlí balkonu majitelé právě vyměňují.
Velkou výhodou je výborná dopravní dostupnost autobusová zastávka je přibližně 2 minuty chůze od domu, stanice metra A Skalka je dostupná do 6 minut.
S financováním vám rádi pomůžeme, hypoteční úvěr zajistíme zdarma. Pro více informací či domluvení prohlídky nás neváhejte kontaktovat.
Pomocí naší hypoteční kalkulačky si můžete udělat orientační představu o výši měsíčních splátek hypotéky. O vše ostatní se pak postaráme my ve spolupráci s našimi obchodními partnery.
58 302 Kč
* Odhadovaná měsíční splátka vychází z výše úvěru Kč s pevnou úrokovou sazbou % po celou dobu trvání úvěru.
Uživatel serveru RealityMIX.cz (dále jen „Server“) dostupného na internetové adrese (URL) https://www.realitymix.cz, který provozuje společnost DALTEN media s.r.o., se sídlem Na Harfě 916/9a, Praha 9, 190 00, IČO: 271 35 306 (dále jen „Správce“) jako provozovateli tohoto Serveru uděluje svůj výslovný souhlas v souladu s ustanovením § 5 zákona č. 101/2000 Sb. O ochraně osobních údajů a o změně některých zákonů, v platném znění (dále jen „zákon o ochraně osobních údajů“), se zpracováním uživatelem poskytnutých osobních údajů a dalších dat.
Uživatel poskytuje Správci osobní údaje v rozsahu: jméno, příjmení, e-mailová adresa, telefonický kontakt a další data, a to z důvodu projeveného zájmu o nemovitost, kde prostřednictvím služby Serveru Správce osloví Uživatel inzerenta uvedeného v detailu
nemovitosti - QARA s.r.o. (IČ 01740113) se zájmem o jeho služby. Tato společnost je součástí seskupení/sítě/franšízového modelu realitních kanceláří, jejich seznam můžete zobrazit kliknutím na tento odkaz.
QARA s.r.o. Ostrava (IČ 01740113) , QARA s.r.o. Brno (IČ 01740113) , QARA s.r.o. (IČ 01740113)
Uživatel tyto osobní údaje poskytuje dobrovolně a bere na vědomí, že součástí služeb Správce, které Správce Uživateli poskytuje, je vyhledání všech Uživateli vyhovujících (dle parametrů - cena, typ nemovitosti, lokalita atd.) nemovitostí. Správce za tímto účelem provozuje aplikace Hlídací pes a newsletter. Tyto služby je možné z každého zaslaného emailu odhlásit. Souhlas se zpracováním osobních údajů Uživatel poskytuje Správci na dobu neurčitou s tím, že svůj udělený souhlas může Uživatel kdykoliv na drese správce info@realitymix.cz odvolat. Správce garantuje Uživateli i další práva uvedené v ustanovení §11 a §21 zákoba č. 101/200 Sb. Ve znění pozdějších předpisů.
Více informací o zpracování údajů získáte zde (realitymix.cz/zasady-ochrany-osobnich-udaju)