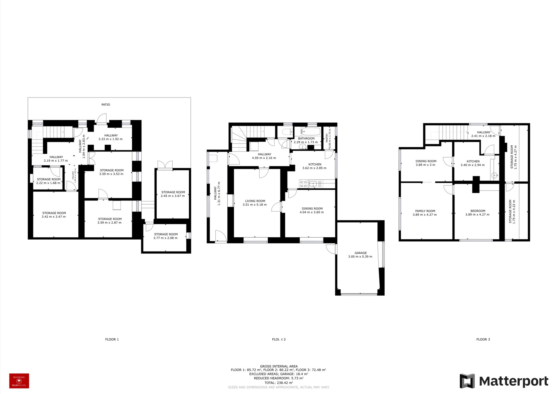
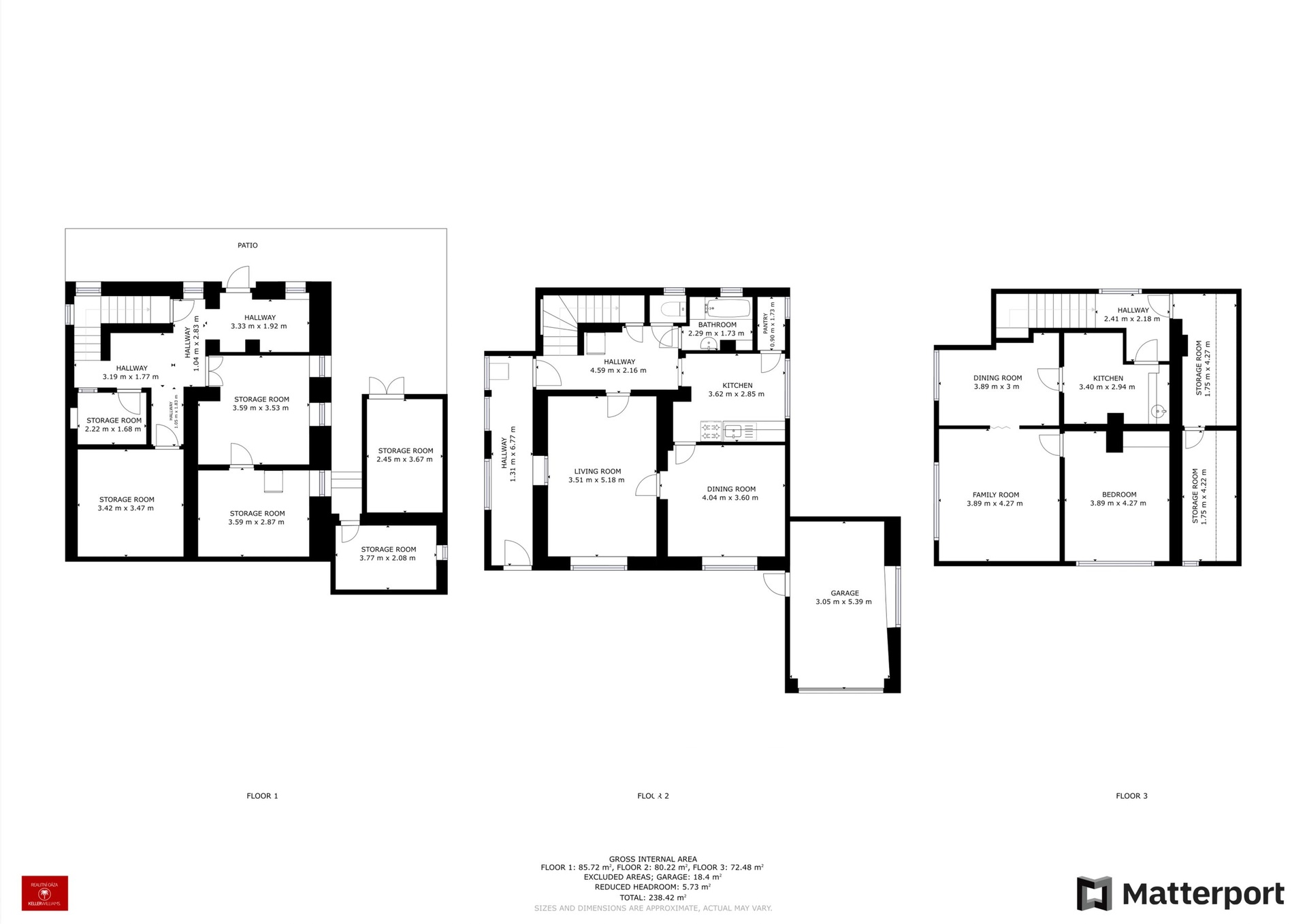
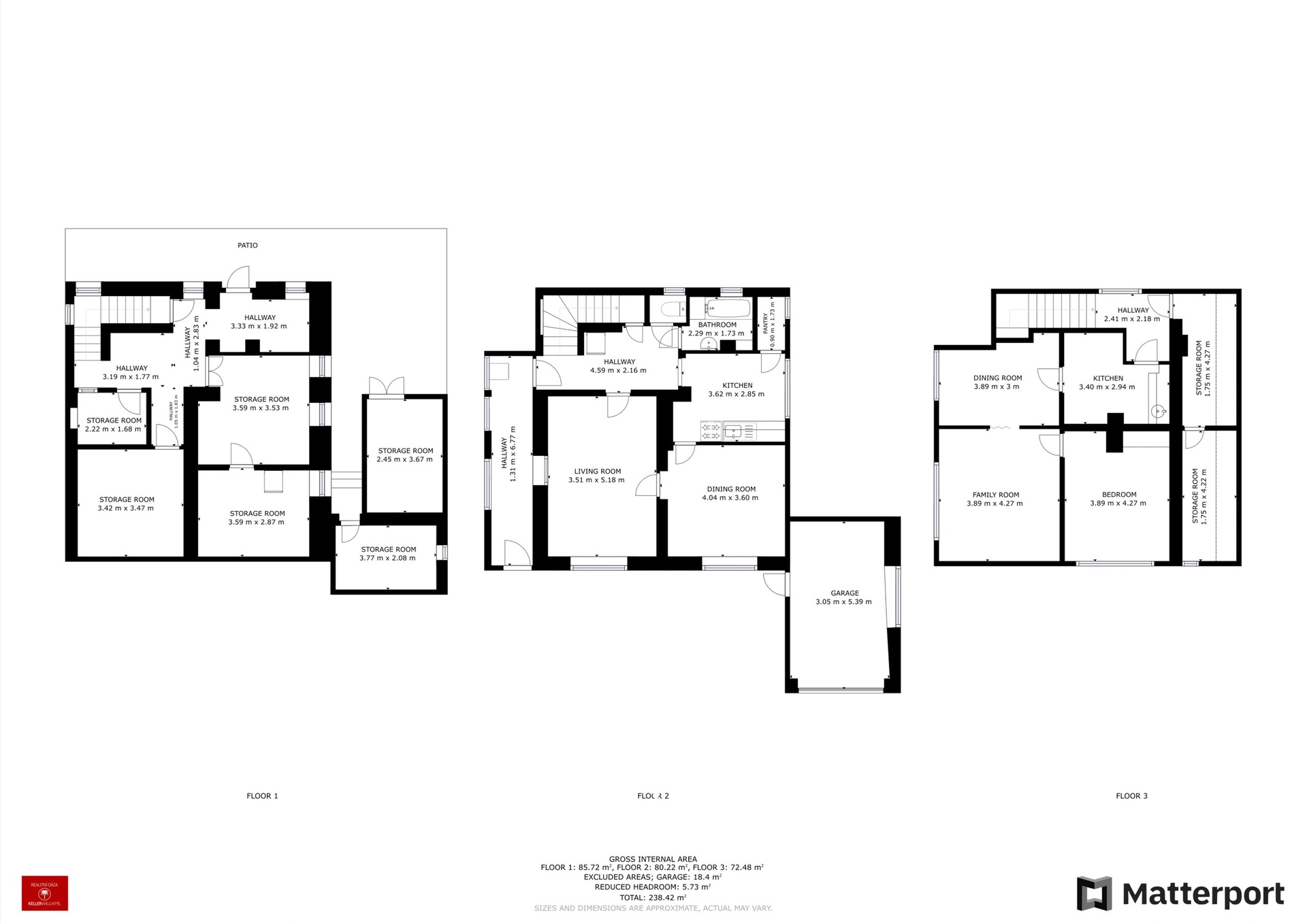
Nabízíme Vám jedinečnou příležitost ke koupi prostorného rodinného domu v klidné lokalitě Prahy Stodůlek. Tento cihlový dům s pozemkem o rozloze 791 m² nabízí svým novým majitelům nejen skvělý potenciál pro rekonstrukci, ale také pohodlí a prostor pro celou rodinu. RD má celkovou plochu cca 238 m², z toho obytnou cca 153 m² (1.NP + 2. NP), garáž a suterén domu, kde se nachází dílna a skladovací prostory cca 85 m². Nemovitost je vytápěna elektrickým kotlem a kotlem na tuhá paliva.
Dům je dispozičně řešen jako 5+1+kk. V dolním patře se nachází dvě obytné místnosti, kuchyně, koupelna a samostatné wc. V horním patře potom dvě obytné místnosti, kuchyňský kout a menší podlouhlý prostor, např. na šatnu apod. Objekt také zahrnuje sklepy, dílnu, garáž a zahradní stavbu, což poskytuje dostatek úložného prostoru pro řešení každodenních potřeb.
Na pozemku se nachází i studna, která je napojena na dům, ale dlouhodobě se používá na zalévání zahrady. Okolní zahrada nabízí možnost relaxace a odpočinku v soukromí. Veškerá občanská vybavenost v dosahu.
Toto místo je ideálním domovem pro ty, kteří hledají kombinaci klidu a pohodlí v blízkosti metropole. Nechte se unést pohodou a atmosférou tohoto domu!
CENA JE K JEDNÁNÍ
S financováním hypotečním úvěrem Vám rádi pomůžeme.
Pokud se Vám na tomto serveru nezobrazuje virtuální prohlídka, zašlu Vám ji na e-mail.
Cena:
19 990 000 Kč
Poznámka:
včetně provize, včetně právního servisu, cena k jednání
Pomocí naší hypoteční kalkulačky si můžete udělat orientační představu o výši měsíčních splátek hypotéky. O vše ostatní se pak postaráme my ve spolupráci s našimi obchodními partnery.
80 934 Kč
* Odhadovaná měsíční splátka vychází z výše úvěru Kč s pevnou úrokovou sazbou % po celou dobu trvání úvěru.
Uživatel serveru RealityMIX.cz (dále jen „Server“) dostupného na internetové adrese (URL) https://www.realitymix.cz, který provozuje společnost DALTEN media s.r.o., se sídlem Na Harfě 916/9a, Praha 9, 190 00, IČO: 271 35 306 (dále jen „Správce“) jako provozovateli tohoto Serveru uděluje svůj výslovný souhlas v souladu s ustanovením § 5 zákona č. 101/2000 Sb. O ochraně osobních údajů a o změně některých zákonů, v platném znění (dále jen „zákon o ochraně osobních údajů“), se zpracováním uživatelem poskytnutých osobních údajů a dalších dat.
Uživatel poskytuje Správci osobní údaje v rozsahu: jméno, příjmení, e-mailová adresa, telefonický kontakt a další data, a to z důvodu projeveného zájmu o nemovitost, kde prostřednictvím služby Serveru Správce osloví Uživatel inzerenta uvedeného v detailu
nemovitosti - Keller Williams Czech Republic (IČ 07796340) se zájmem o jeho služby. Tato společnost je součástí seskupení/sítě/franšízového modelu realitních kanceláří, jejich seznam můžete zobrazit kliknutím na tento odkaz.
Keller Williams Czech Republic (IČ 07796340) , Nemovito by Keller Williams (IČ 10826971) , Keller Williams Czech Republic (IČ 07796340) , Keller Williams - centrála (IČ 06521924)
Uživatel tyto osobní údaje poskytuje dobrovolně a bere na vědomí, že součástí služeb Správce, které Správce Uživateli poskytuje, je vyhledání všech Uživateli vyhovujících (dle parametrů - cena, typ nemovitosti, lokalita atd.) nemovitostí. Správce za tímto účelem provozuje aplikace Hlídací pes a newsletter. Tyto služby je možné z každého zaslaného emailu odhlásit. Souhlas se zpracováním osobních údajů Uživatel poskytuje Správci na dobu neurčitou s tím, že svůj udělený souhlas může Uživatel kdykoliv na drese správce info@realitymix.cz odvolat. Správce garantuje Uživateli i další práva uvedené v ustanovení §11 a §21 zákoba č. 101/200 Sb. Ve znění pozdějších předpisů.
Více informací o zpracování údajů získáte zde (realitymix.cz/zasady-ochrany-osobnich-udaju)