Hledáte dům v Praze, který si můžete upravit přesně podle svých představ a zároveň nabízí možnost kombinace bydlení a podnikání? Právě jste ho našli.
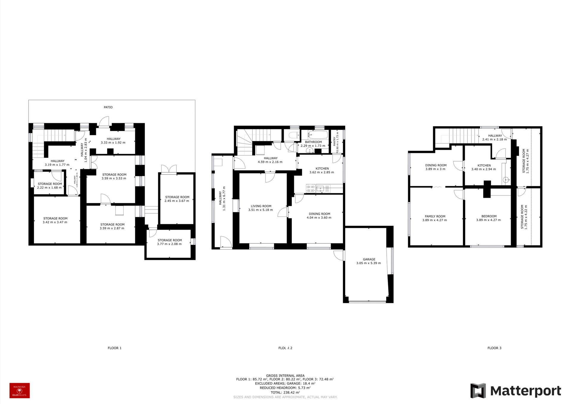
Nabízíme k prodeji rodinný dům v klidné části Prahy – Stodůlky, na pozemku o velikosti 791 m². Dům má celkovou plochu cca 238 m², z toho obytná část činí cca 153 m² (1. a 2. NP) a dalších cca 85 m² tvoří suterén, dílna a garáž.
Dispozice 5+1+kk nabízí flexibilní využití – ideální pro větší rodinu, dvougenerační bydlení nebo propojení bydlení s podnikáním. V přízemí najdete dvě místnosti, kuchyni, koupelnu a samostatné WC. V patře jsou další dvě místnosti, kuchyňský kout a prostor vhodný například jako pracovna nebo šatna.
Dům je určen k rekonstrukci, což dává novému majiteli možnost vytvořit si bydlení přesně na míru bez kompromisů.
K dispozici jsou také sklepy, dílna, garáž a zahradní stavba – ideální pro skladování, hobby nebo podnikání. Na pozemku se nachází studna (aktuálně využívaná pro zalévání zahrady).
Velkou výhodou je klidná lokalita s kompletní občanskou vybaveností a rychlou dostupností do centra Prahy.
Nemovitostí s takovým potenciálem v této lokalitě není mnoho – doporučujeme prohlídku.
V inzerátu jsou použity i vizualizace.
PENB se zpracovává, prozatím uvádíme G.
S financováním hypotečním úvěrem Vám rádi pomůžeme.
Pokud se vám na tomto serveru nezobrazuje virtuální prohlídka, ráda vám ji zašlu e-mailem.
Pomocí naší hypoteční kalkulačky si můžete udělat orientační představu o výši měsíčních splátek hypotéky. O vše ostatní se pak postaráme my ve spolupráci s našimi obchodními partnery.
64 779 Kč
* Odhadovaná měsíční splátka vychází z výše úvěru Kč s pevnou úrokovou sazbou % po celou dobu trvání úvěru.
Uživatel serveru RealityMIX.cz (dále jen „Server“) dostupného na internetové adrese (URL) https://www.realitymix.cz, který provozuje společnost DALTEN media s.r.o., se sídlem Na Harfě 916/9a, Praha 9, 190 00, IČO: 271 35 306 (dále jen „Správce“) jako provozovateli tohoto Serveru uděluje svůj výslovný souhlas v souladu s ustanovením § 5 zákona č. 101/2000 Sb. O ochraně osobních údajů a o změně některých zákonů, v platném znění (dále jen „zákon o ochraně osobních údajů“), se zpracováním uživatelem poskytnutých osobních údajů a dalších dat.
Uživatel poskytuje Správci osobní údaje v rozsahu: jméno, příjmení, e-mailová adresa, telefonický kontakt a další data, a to z důvodu projeveného zájmu o nemovitost, kde prostřednictvím služby Serveru Správce osloví Uživatel inzerenta uvedeného v detailu
nemovitosti - Keller Williams Czech Republic (IČ 07796340) se zájmem o jeho služby. Tato společnost je součástí seskupení/sítě/franšízového modelu realitních kanceláří, jejich seznam můžete zobrazit kliknutím na tento odkaz.
Keller Williams Czech Republic (IČ 07796340) , Nemovito by Keller Williams (IČ 10826971) , Keller Williams Czech Republic (IČ 07796340) , Keller Williams - centrála (IČ 06521924)
Uživatel tyto osobní údaje poskytuje dobrovolně a bere na vědomí, že součástí služeb Správce, které Správce Uživateli poskytuje, je vyhledání všech Uživateli vyhovujících (dle parametrů - cena, typ nemovitosti, lokalita atd.) nemovitostí. Správce za tímto účelem provozuje aplikace Hlídací pes a newsletter. Tyto služby je možné z každého zaslaného emailu odhlásit. Souhlas se zpracováním osobních údajů Uživatel poskytuje Správci na dobu neurčitou s tím, že svůj udělený souhlas může Uživatel kdykoliv na drese správce info@realitymix.cz odvolat. Správce garantuje Uživateli i další práva uvedené v ustanovení §11 a §21 zákoba č. 101/200 Sb. Ve znění pozdějších předpisů.
Více informací o zpracování údajů získáte zde (realitymix.cz/zasady-ochrany-osobnich-udaju)