Ve výhradním zastoupení majitelů Vám nabízím zprostředkování prodeje atraktivního rodinného domu s garáží a zahradou z roku 2008, který je ve velmi dobrém technickém stavu.
Řadová stavba trojdomu byla realizována s důrazem na zpracování, kvalitní materiály a nadčasový design exteriéru.
Nemovitost se nachází ve vyhledávané městské části Praha – Březiněves v ulici Na plužině.
✅ Klíčové informace k nemovitosti:
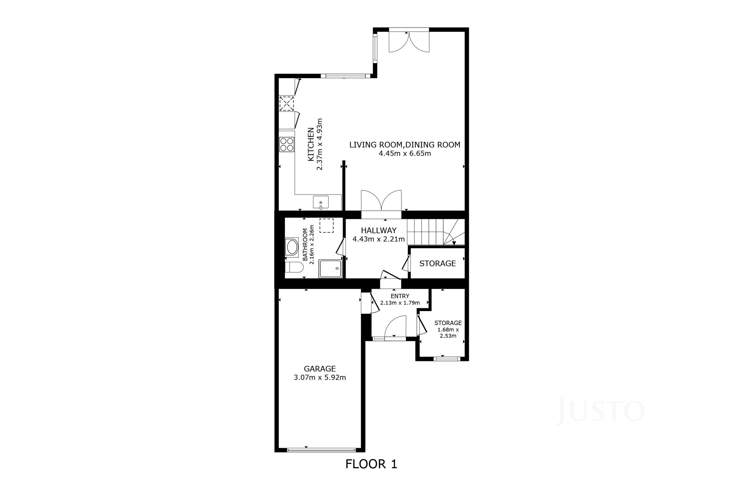
- dispozice 5+kk s velmi praktickým půdorysem
- celková podlahová plocha domu 158,5 m²
- celková plocha pozemku 229 m²
- zahrada 83 m²
- pozemek před domem 48 m² s možností parkování
- v 1. NP se nachází (79,5 m²)
o prostorný obývací pokoj s kuchyňským koutem
o garáž s dálkově ovládanými vraty
o koupelna, chodba, šatna a úložný prostor pod schody
o zahrada
- jižní orientace obývací části a kuchyně
- severojižní orientace celé nemovitosti
- ve 2. nadzemním podlaží se nachází (79 m²)
o čtyři pokoje
o koupelna
o sklopné schody na půdu s velkým úložným prostorem
- nemovitost je bez právních vad
- způsob vytápění plynovým kotlem
- všechna okna jsou opatřena předokenními elektrický ovládanými roletami
- zděná cihlová konstrukce z porothermu
- dům je připraven k okamžitému nastěhování bez nutnosti dalších investic
✅ Klíčové informace k lokalitě:
- mimořádně klidná lokalita v řadové zástavbě
- vynikající občanská vybavenost a dopravní dostupnost
o sportovní a dětská hřiště, koupaliště, tenisové kurty
o potraviny, restaurace, NC Březiněves, Billa
o knihovna, úřad městské části, lékárna
- autobusová zastávka Březiněves je vzdálena 550 m od budovy
- přímá návaznost na Ládví, Ďáblice a Letňany
- ke kvalitě bydlení přispívá i blízkost Bořanovického háje, který je ideální k relaxaci a aktivnímu odpočinku
✅ Důležité informace k prodeji:
- zájemce nehradí provizi RK!
- majitelé si vyhrazují právo výběru nejvýhodnější nabídky v případě více zájemců
- možnost zprostředkování atraktivního financování
- k nemovitosti je kompletní technická dokumentace a revizní zprávy z roku 2026
Pomocí naší hypoteční kalkulačky si můžete udělat orientační představu o výši měsíčních splátek hypotéky. O vše ostatní se pak postaráme my ve spolupráci s našimi obchodními partnery.
60 690 Kč
* Odhadovaná měsíční splátka vychází z výše úvěru Kč s pevnou úrokovou sazbou % po celou dobu trvání úvěru.
Uživatel serveru RealityMIX.cz (dále jen „Server“) dostupného na internetové adrese (URL) https://www.realitymix.cz, který provozuje společnost DALTEN media s.r.o., se sídlem Na Harfě 916/9a, Praha 9, 190 00, IČO: 271 35 306 (dále jen „Správce“) jako provozovateli tohoto Serveru uděluje svůj výslovný souhlas v souladu s ustanovením § 5 zákona č. 101/2000 Sb. O ochraně osobních údajů a o změně některých zákonů, v platném znění (dále jen „zákon o ochraně osobních údajů“), se zpracováním uživatelem poskytnutých osobních údajů a dalších dat.
Uživatel poskytuje Správci osobní údaje v rozsahu: jméno, příjmení, e-mailová adresa, telefonický kontakt a další data, a to z důvodu projeveného zájmu o nemovitost, kde prostřednictvím služby Serveru Správce osloví Uživatel inzerenta uvedeného v detailu
nemovitosti - JUSTO Česká republika (IČ 04419995) se zájmem o jeho služby.
Uživatel tyto osobní údaje poskytuje dobrovolně a bere na vědomí, že součástí služeb Správce, které Správce Uživateli poskytuje, je vyhledání všech Uživateli vyhovujících (dle parametrů - cena, typ nemovitosti, lokalita atd.) nemovitostí. Správce za tímto účelem provozuje aplikace Hlídací pes a newsletter. Tyto služby je možné z každého zaslaného emailu odhlásit. Souhlas se zpracováním osobních údajů Uživatel poskytuje Správci na dobu neurčitou s tím, že svůj udělený souhlas může Uživatel kdykoliv na drese správce info@realitymix.cz odvolat. Správce garantuje Uživateli i další práva uvedené v ustanovení §11 a §21 zákoba č. 101/200 Sb. Ve znění pozdějších předpisů.
Více informací o zpracování údajů získáte zde (realitymix.cz/zasady-ochrany-osobnich-udaju)