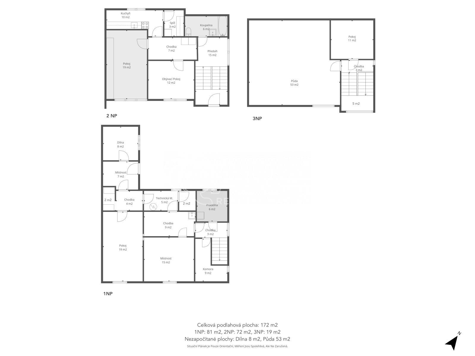
Prodej rodinného domu 233 m2 s pozemkem 401 m2, Praha 6, Suchdol
Nabízíme k prodeji rodinný dům o velkorysé užitné ploše 233 m2, v žádané a klidné lokalitě Praha 6, Suchdol. Dům se nachází ulici Stžná, v těsné blízkosti veškeré občanské vybavenosti.
Dům je postaven na vlastním pozemku o výměře 401 m2, je kompletně oplocen. Je napojen na veškeré inženýrské sítě ( plyn, elektřina, obecní vodovod a veřejná kanalizace). Na pozemku dále naleznete garáž s výjezdem přímo na ulici.
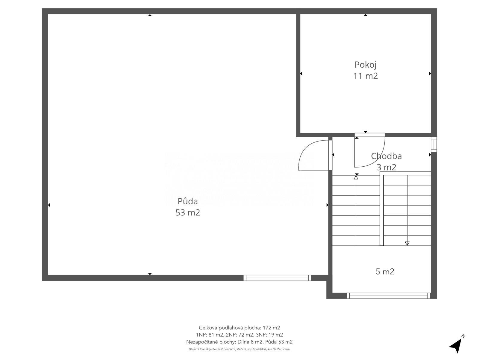
Nemovitost je celkově dobrém udržovaném stavu. Přesto je nutná kompletní rekonstrukce celého domu. V poslední patře se nachází prostorná půda a bylo v plánu dostavba posledního patra. K tomuto záměru existuje kompletní stavební dokumentace.
V blízkosti domu a v pěším dosahu se nachází mateřská škola, základní škola, obchody s potravinami, zdravotnické zařízení, lékárna, restaurace, plavecký bazén, komunitní zahrada a sportovní zařízení.
Výborné dopravní spojení do centra Prahy zajišťují různé autobusové linky s konečnou u stanice metra trasy A - Dejvická, V budoucnu se plánuje propojení Suchdola tramvajovou tratí.
Nemovitost není zatížena žádným omezením vlastnického práva, je možné ji financovat hypotečním úvěrem, který který vám rádi a zdarma pomůžeme zařídit.
Tato nemovitost představuje velmi dobrý investiční záměr jak pro investory, tak i pro příjemné bydlení rodiny s dětmi..
Velmi rád vás touto nemovitostí osobně provedu na prohlídce. Neváhejte mne kontaktovat.
Pomocí naší hypoteční kalkulačky si můžete udělat orientační představu o výši měsíčních splátek hypotéky. O vše ostatní se pak postaráme my ve spolupráci s našimi obchodními partnery.
66 804 Kč
* Odhadovaná měsíční splátka vychází z výše úvěru Kč s pevnou úrokovou sazbou % po celou dobu trvání úvěru.
Uživatel serveru RealityMIX.cz (dále jen „Server“) dostupného na internetové adrese (URL) https://www.realitymix.cz, který provozuje společnost DALTEN media s.r.o., se sídlem Na Harfě 916/9a, Praha 9, 190 00, IČO: 271 35 306 (dále jen „Správce“) jako provozovateli tohoto Serveru uděluje svůj výslovný souhlas v souladu s ustanovením § 5 zákona č. 101/2000 Sb. O ochraně osobních údajů a o změně některých zákonů, v platném znění (dále jen „zákon o ochraně osobních údajů“), se zpracováním uživatelem poskytnutých osobních údajů a dalších dat.
Uživatel poskytuje Správci osobní údaje v rozsahu: jméno, příjmení, e-mailová adresa, telefonický kontakt a další data, a to z důvodu projeveného zájmu o nemovitost, kde prostřednictvím služby Serveru Správce osloví Uživatel inzerenta uvedeného v detailu
nemovitosti - QARA s.r.o. (IČ 01740113) se zájmem o jeho služby. Tato společnost je součástí seskupení/sítě/franšízového modelu realitních kanceláří, jejich seznam můžete zobrazit kliknutím na tento odkaz.
QARA s.r.o. Ostrava (IČ 01740113) , QARA s.r.o. Brno (IČ 01740113) , QARA s.r.o. (IČ 01740113)
Uživatel tyto osobní údaje poskytuje dobrovolně a bere na vědomí, že součástí služeb Správce, které Správce Uživateli poskytuje, je vyhledání všech Uživateli vyhovujících (dle parametrů - cena, typ nemovitosti, lokalita atd.) nemovitostí. Správce za tímto účelem provozuje aplikace Hlídací pes a newsletter. Tyto služby je možné z každého zaslaného emailu odhlásit. Souhlas se zpracováním osobních údajů Uživatel poskytuje Správci na dobu neurčitou s tím, že svůj udělený souhlas může Uživatel kdykoliv na drese správce info@realitymix.cz odvolat. Správce garantuje Uživateli i další práva uvedené v ustanovení §11 a §21 zákoba č. 101/200 Sb. Ve znění pozdějších předpisů.
Více informací o zpracování údajů získáte zde (realitymix.cz/zasady-ochrany-osobnich-udaju)