Prodej rodinného domu 5+1 105m2 P4 Modřany Nad Soutokem zahrada 712m2 garáž 33m2 bazén
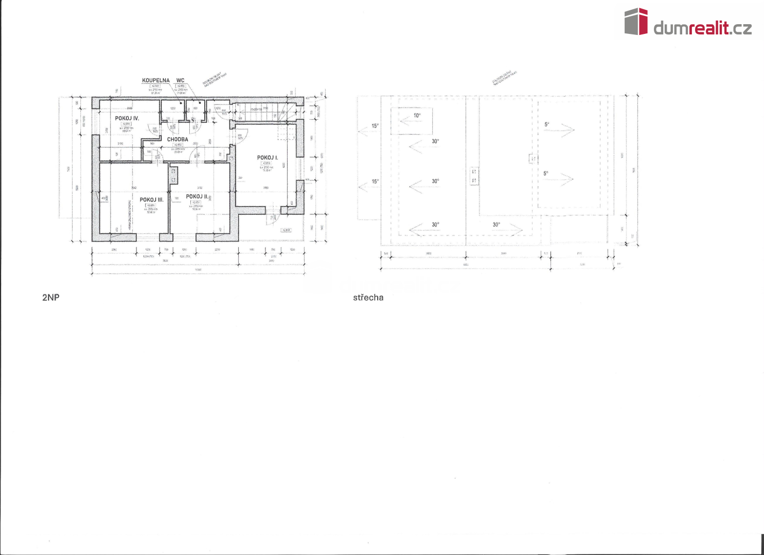
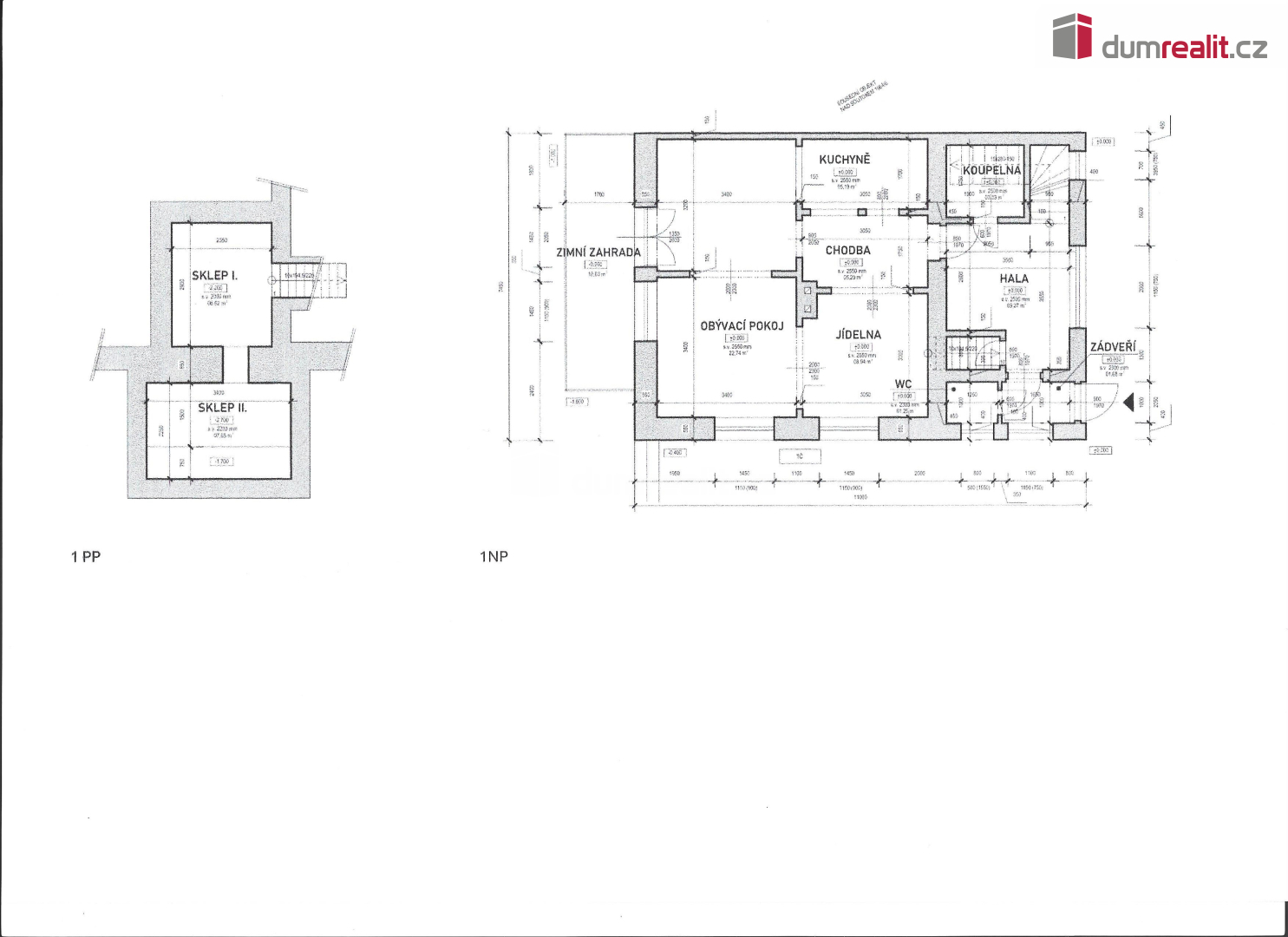
Prodej rodinného domu 5+1, 105m², P4 Modřany, ul. Nad Soutokem, se zahradou 712 m², garáží 33m² a bazénem. Jedná se o polovinu dvojdomu. Dům je částečně podsklepený, v 1PP se nachází dva sklepy, dále v 1NP se nachází zádveří, toaleta, hala (se vstupem do sklepa a 2 NP), koupelna, kuchyň, chodba, jídelna a obývací pokoj (se vstupem do zimní zahrady). Ve 2NP se nachází chodba, koupelna, toaleta, čtyři ložnice (jedna se vstupem na terasu). Okna jsou převážně plastová, zasklená izolačním trojsklem. Na garáži je umístěno 54 fotovoltaických panelů o celkovém výkonu 4 kWp. Jednotka FVE je umístěna v 1 PP. Primárním zdrojem vytápění je tepelné čerpadlo vzduch – voda. Venkovní jednotka TČ je umístěna v 1NP. Vnitřní jednotka TČ je umístěna v podzemním podlaží. Sekundárním zdrojem vytápění je krbová vložka umístěna v 1NP. Ohřev TUV je zajištěn zásobníkem TUV v podzemním podlaží. Zásobník TUV je napojen na rozvody TČ a rovněž na 2x solární panel umístěné na střeše domu. Dům s příjemnou dispozicí je připraven k rekonstrukci. Na pozemku se nachází vrtaná studna, která je určena primárně pro zálivku zahrady, dále krytý bazén a skleník. Pozemek je mírně svažitý s jihozápadní orientací, vzrostlými stromy, keři (např. fíkovník, kiwi apod.) množstvím květin a nabízí klid a výjimečný pohled do okolí. Ulice je tichá, lokalita s množstvím zeleně, kompletní sítí služeb a vynikající dopravní dostupností (mj. nájezd na Pražský okruh). Atraktivní místo, doporučuji osobní prohlídku. Ev. číslo: 651587.
Pomocí naší hypoteční kalkulačky si můžete udělat orientační představu o výši měsíčních splátek hypotéky. O vše ostatní se pak postaráme my ve spolupráci s našimi obchodními partnery.
68 424 Kč
* Odhadovaná měsíční splátka vychází z výše úvěru Kč s pevnou úrokovou sazbou % po celou dobu trvání úvěru.
Uživatel serveru RealityMIX.cz (dále jen „Server“) dostupného na internetové adrese (URL) https://www.realitymix.cz, který provozuje společnost DALTEN media s.r.o., se sídlem Na Harfě 916/9a, Praha 9, 190 00, IČO: 271 35 306 (dále jen „Správce“) jako provozovateli tohoto Serveru uděluje svůj výslovný souhlas v souladu s ustanovením § 5 zákona č. 101/2000 Sb. O ochraně osobních údajů a o změně některých zákonů, v platném znění (dále jen „zákon o ochraně osobních údajů“), se zpracováním uživatelem poskytnutých osobních údajů a dalších dat.
Uživatel poskytuje Správci osobní údaje v rozsahu: jméno, příjmení, e-mailová adresa, telefonický kontakt a další data, a to z důvodu projeveného zájmu o nemovitost, kde prostřednictvím služby Serveru Správce osloví Uživatel inzerenta uvedeného v detailu
nemovitosti - Dumrealit.cz (IČ 00537861) se zájmem o jeho služby. Tato společnost je součástí seskupení/sítě/franšízového modelu realitních kanceláří, jejich seznam můžete zobrazit kliknutím na tento odkaz.
Dumrealit.cz (IČ 00537861) , HOME 4 PEOPLE (IČ 29132886) , Reality 11 (IČ 29132886) , REAL ESTATE CZECH REPUBLIC a.s. (IČ 29132886) , Národní Realitní Holding a.s. (IČ 02918897)
Uživatel tyto osobní údaje poskytuje dobrovolně a bere na vědomí, že součástí služeb Správce, které Správce Uživateli poskytuje, je vyhledání všech Uživateli vyhovujících (dle parametrů - cena, typ nemovitosti, lokalita atd.) nemovitostí. Správce za tímto účelem provozuje aplikace Hlídací pes a newsletter. Tyto služby je možné z každého zaslaného emailu odhlásit. Souhlas se zpracováním osobních údajů Uživatel poskytuje Správci na dobu neurčitou s tím, že svůj udělený souhlas může Uživatel kdykoliv na drese správce info@realitymix.cz odvolat. Správce garantuje Uživateli i další práva uvedené v ustanovení §11 a §21 zákoba č. 101/200 Sb. Ve znění pozdějších předpisů.
Více informací o zpracování údajů získáte zde (realitymix.cz/zasady-ochrany-osobnich-udaju)