© 1999–2026 DALTEN media s.r.o.
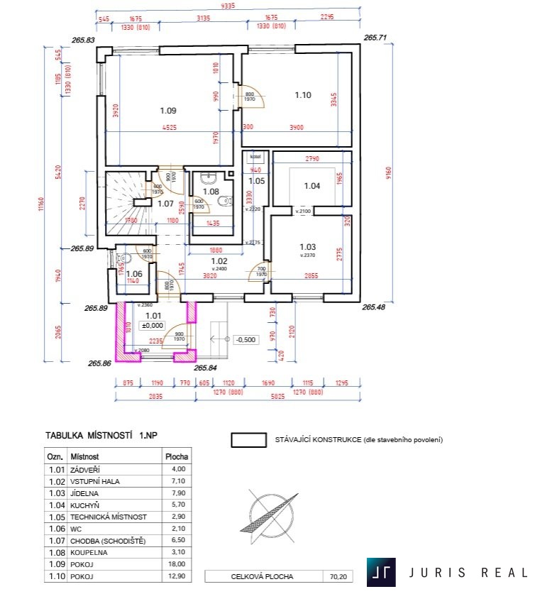
V lipách, Praha-Koloděje, Koloděje
9 990 000 KčV lipách, Praha-Koloděje, Koloděje
| Cena: | 9 990 000 Kč |
| Hypotéka: | od 40 447 Kč/měsíc |
| Číslo zakázky: | REALITYMIX-100997 |
Pomocí naší hypoteční kalkulačky si můžete udělat orientační představu o výši měsíčních splátek hypotéky. O vše ostatní se pak postaráme my ve spolupráci s našimi obchodními partnery.